Jednoiposoban stan na prodaju, Autoput za Zagreb, 94.350€, 51m²


94.350 €
1.850 € / m2
Za ovaj oglas se neko interesovao. Pozovi ranije kako ne bi propustio priliku.
- Stan u zgradi
- Grejanje na struju
- U izgradnji
- Prostorije: terasa
- Opremljenost: klima
- Nije uknjiženo
- Oglas oglašava agencija pod reg. brojem 554
- 1 garažno mesto
- 1 parking mesto
- Zgrada poseduje: lođa
Opis oglasa
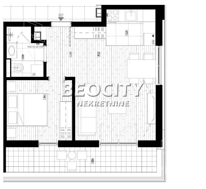
Agencijski ID: 130623, IV/, klima, terasa, nov, ulaz dobar, u izgradnji, fasada nova, garaza, parking. Prodaja stanova u novogradnji – Radiofar, Surčin U ponudi je moderan stambeno-poslovni kompleks u izgradnji, smešten u mirnom i perspektivnom delu naselja Radio Far, u opštini Surčin. Projekat obuhvata tri lamele, pažljivo osmišljene kako bi zadovoljile potrebe kako za stanovanjem, tako i za poslovanjem. Lamela 1 i Lamela 2 projektovane su kao poslovni apartmani, dok je Lamela 3 namenjena isključivo stanovanju. U ponudi su funkcionalni stanovi površine od 28 m² do 64 m², idealni kako za život, tako i kao investicija. Objekat se sastoji od prizemlja, prvog , drugog,treceg sprata, i cetvrtog povučenog sprata, što obezbeđuje moderan izgled i dodatni komfor stanarima. Kompleks se nalazi na izuzetno atraktivnoj lokaciji: • udaljen svega 500 metara od aerodroma • u ulici Svetog Save, iza Autokomerca • u neposrednoj blizini Zagrebačkog autoputa • na samo 5 km od Zemuna i 10 km od centra Beograda • dobro povezan autobuskim linijama gradskog prevoza U neposrednoj blizini nalaze se prodavnice, uključujući market „Sunce“, kao i manji lokalni objekti, što dodatno doprinosi svakodnevnoj praktičnosti. Kupcima su na raspolaganju parking i garažna mesta: • parking mesto: 6.500 € + PDV • garažno mesto: 15.000 € + PDV Cene nekretnina: • poslovni apartmani: 1.850 €/m² + 20% PDV • stanovi: 1.850 €/m² + 10% PDv Ovaj kompleks predstavlja odličnu priliku za sve koji traže kvalitetnu novogradnju na dobro povezanoj lokaciji, sa brzim pristupom gradu, ali i mirnim okruženjem za život. Zavrsetak prve lamele decembar2026,a kraj je jun 2027 više info i rezervaciju stan. Više informacija na: http://www.beocitynekretnine.rs Agencijska provizija 2%. Telefoni: 060... (prikaži broj telefona) • 011... (prikaži broj telefona) . Kontakt van radnog vremena: [email protected]
*Sačuvaj oglas uz belešku i primaj obaveštenja o njihovom pojeftinjenju ili pojavljivanju sličnih
Prikaz stana na mapi
Obeležja kulture u blizini
- Spomenik Nikoli Tesli11 min
- Hangar Starog aerodroma na Novom Beogradu11 min
- Stara osnovna škola14 min

Škole/Fakulteti/Vrtići u blizini
- Osnovna škola (Osnovna škola Gavrilo Princip)8 min
- Srednja škola (Srednja politehnička škola Politehnika)6 min
- Vrtić (Dečiji vrtić Zvrk)8 min
- Fakultet (Visoka tehnička škola strukovnih studija Beograd)9 min

- Bolnica (Kliničko bolnički centar Bežanijska kosa)10 min
- Klinika (Poliklinika Dr Sci. Hadžagić)9 min
- Teretana (Fitness centar Vulkan Gym)9 min
- Prodavnica (Prodavnica Mega Sunce)24 min
- Restoran (Restoran Stari Shanghai)32 min
- Autobuska stanica (Ikarbus)16 min
- Banka (Poštanska štedionica)5 min
- Pošta (Pošta Beograd 124)5 min
Kontakt oglašivača
Za ovaj oglas se neko interesovao. Pozovi ranije kako ne bi propustio priliku.
Krediti OTP banke
Saznaj više
Prikazana rata odnosi se na maksimalni period otplate. Kalkulator je informativnog karaktera.
* Nakon isteka 5 godina, prelazi se na varijabilnu kamatnu stopu





















