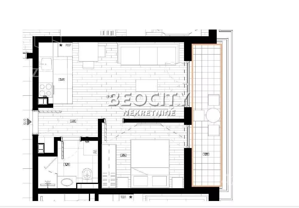
Jednoiposoban stan na prodaju, Autoput za Zagreb, 77.700€, 42m²


77.700 €
1.850 € / m2
- Stan u zgradi
- Grejanje na struju
- U izgradnji
- Prostorije: terasa
- Opremljenost: klima
- Nije uknjiženo
- Oglas oglašava agencija pod reg. brojem 554
- 1 garažno mesto
- 1 parking mesto
- Zgrada poseduje: lođa
Opis oglasa
Agencijski ID: 130599, I/, klima, terasa, nov, ulaz dobar, u izgradnji, fasada nova, garaza, parking. Prodaja stanova u novogradnji – Radiofar, Surčin U ponudi je moderan stambeno-poslovni kompleks u izgradnji, smešten u mirnom i perspektivnom delu naselja Radio Far, u opštini Surčin. Projekat obuhvata tri lamele, pažljivo osmišljene kako bi zadovoljile potrebe kako za stanovanjem, tako i za poslovanjem. Lamela 1 i Lamela 2 projektovane su kao poslovni apartmani, dok je Lamela 3 namenjena isključivo stanovanju. U ponudi su funkcionalni stanovi površine od 28 m² do 64 m², idealni kako za život, tako i kao investicija. Objekat se sastoji od prizemlja, prvog , drugog,treceg sprata, i cetvrtog povučenog sprata, što obezbeđuje moderan izgled i dodatni komfor stanarima. Kompleks se nalazi na izuzetno atraktivnoj lokaciji: • udaljen svega 500 metara od aerodroma • u ulici Svetog Save, iza Autokomerca • u neposrednoj blizini Zagrebačkog autoputa • na samo 5 km od Zemuna i 10 km od centra Beograda • dobro povezan autobuskim linijama gradskog prevoza U neposrednoj blizini nalaze se prodavnice, uključujući market „Sunce“, kao i manji lokalni objekti, što dodatno doprinosi svakodnevnoj praktičnosti. Kupcima su na raspolaganju parking i garažna mesta: • parking mesto: 6.500 € + PDV • garažno mesto: 15.000 € + PDV Cene nekretnina: • poslovni apartmani: 1.850 €/m² + 20% PDV • stanovi: 1.850 €/m² + 10% PDv Ovaj kompleks predstavlja odličnu priliku za sve koji traže kvalitetnu novogradnju na dobro povezanoj lokaciji, sa brzim pristupom gradu, ali i mirnim okruženjem za život. Zavrsetak prve lamele decembar2026,a kraj je jun 2027 više info i rezervaciju stan. Više informacija na: http://www.beocitynekretnine.rs Agencijska provizija 2%. Telefoni: 060... (prikaži broj telefona) • 011... (prikaži broj telefona) . Kontakt van radnog vremena: [email protected]
*Sačuvaj oglas uz belešku i primaj obaveštenja o njihovom pojeftinjenju ili pojavljivanju sličnih
Prikaz stana na mapi
Obeležja kulture u blizini
- Spomenik Nikoli Tesli11 min
- Hangar Starog aerodroma na Novom Beogradu11 min
- Stara osnovna škola14 min

Škole/Fakulteti/Vrtići u blizini
- Osnovna škola (Osnovna škola Gavrilo Princip)8 min
- Srednja škola (Srednja politehnička škola Politehnika)6 min
- Vrtić (Dečiji vrtić Zvrk)8 min
- Fakultet (Visoka tehnička škola strukovnih studija Beograd)9 min

- Bolnica (Kliničko bolnički centar Bežanijska kosa)10 min
- Klinika (Poliklinika Dr Sci. Hadžagić)9 min
- Teretana (Fitness centar Vulkan Gym)9 min
- Prodavnica (Prodavnica Mega Sunce)24 min
- Restoran (Restoran Stari Shanghai)32 min
- Autobuska stanica (Ikarbus)16 min
- Banka (Poštanska štedionica)5 min
- Pošta (Pošta Beograd 124)5 min
Kontakt oglašivača
Krediti OTP banke
Saznaj više
Prikazana rata odnosi se na maksimalni period otplate. Kalkulator je informativnog karaktera.
* Nakon isteka 5 godina, prelazi se na varijabilnu kamatnu stopu





















