Trosoban stan na prodaju, Sremska Kamenica, 170.320€, 60m²
























170.320 €
2.839 € / m2
- Stan u zgradi
- Podno grejanje
- U izgradnji
- Prostorije: terasa
- Oglas oglašava agencija pod reg. brojem 1808
- 1 lift
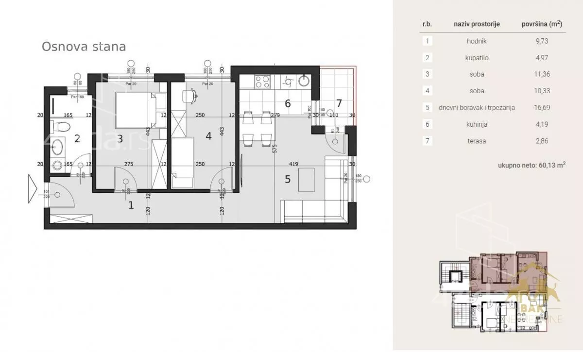
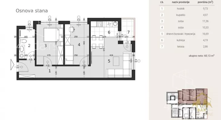
Opis oglasa
U mirnom i najtraženijem delu Tatarskog brda, u neposrednoj blizini glavnih saobraćajnica i svih sadržaja neophodnih za kvalitetan i organizovan porodični život, smešten je ovaj moderan i ekskluzivan trosoban stan u izgradnji površine 60 m², koji se izdvaja jedinstvenom dodatnom vrednošću u vidu prostrane krovne terase od čak 60 m². Stan je pažljivo osmišljen kako bi pružio maksimalan komfor i funkcionalnost, a čine ga prostrani i svetli dnevni boravak koji je povezan sa trpezarijom i kuhinjom u otvorenom konceptu, velika spavaća soba, kao i dodatna soba koja može biti dečja ili radna, u skladu sa potrebama budućih vlasnika. Tu su i moderno kupatilo, lepo organizovan hodnik i terasa koja upotpunjuje svakodnevni boravak. Podno grejanje obezbeđuje ravnomernu temperaturu i prijatan osećaj tokom cele godine. Poseban kvalitet ove nekretnine predstavlja impresivna krovna terasa površine 60 m², koja pruža idealan prostor za odmor i opuštanje, druženje ili kreiranje sopstvene oaze na otvorenom, sa prelepim pogledom i potpunim osećajem privatnosti. Zgrada je projektovana u savremenom arhitektonskom stilu sa čistim linijama i velikim staklenim površinama koje omogućavaju obilje prirodne svetlosti. Ugrađena je stolarija najnovije generacije, premium termo i zvučna izolacija, kao i pažljivo birani materijali poput kvalitetne keramike i parketa. Dodatni nivo udobnosti donosi smart home sistem koji omogućava jednostavno upravljanje i veću energetsku efikasnost. U cenu stana uračunat je PDV, što ovu ponudu čini izuzetno pogodnom kako za porodično stanovanje, tako i kao sigurnu investiciju u moderan životni prostor. Završetak radova je planiran na proleće 2027.
Za više informacija, detalje o dostupnosti i rezervaciju, slobodno nas kontaktirajte i obezbedite sebi nekretninu koja nudi više od standardnog stanovanja.
BAK Nekretnine
Kontakt telefon:
065... (prikaži broj telefona)
,
060... (prikaži broj telefona)
,
065... (prikaži broj telefona)
*Sačuvaj oglas uz belešku i primaj obaveštenja o njihovom pojeftinjenju ili pojavljivanju sličnih
Prikaz stana na mapi
Kontakt oglašivača
Krediti OTP banke
Saznaj više
Prikazana rata odnosi se na maksimalni period otplate. Kalkulator je informativnog karaktera.
* Nakon isteka 5 godina, prelazi se na varijabilnu kamatnu stopu





















