Trosoban stan na prodaju, Telep, 172.500€, 66m²






















172.500 €
2.614 € / m2
- Stan u zgradi
- Grejanje na gas
- U izgradnji
- Prostorije: ostava, terasa
- Oglas oglašava agencija pod reg. brojem 1808
- 1 lift
Opis oglasa
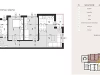
U mirnom i uređenom delu novosadskog Telepa, gde se gradski ritam susreće sa spokojem porodičnog života, nalazi se trosoban stan površine 66 m², savremeno osmišljen prostor koji nudi kvalitet, udobnost i funkcionalnost na visokom nivou. Stan se nalazi u okviru modernog stambenog kompleksa, čija je izgradnja u toku, sa planiranim useljenjem na jesen 2026. godine. Projektovan je tako da odgovori na potrebe savremenog stanovanja, bilo da ga birate kao porodični dom ili sigurnu investiciju. Stan je dvorišno orijentisan, okrenut ka unutrašnjem delu kompleksa, što mu obezbeđuje dodatnu tišinu, privatnost i potpunu zaštitu od gradske buke i saobraćaja. Ovakva pozicija čini stan posebno pogodnim za one koji žele mirno okruženje za svakodnevni život. Unutrašnjost stana pažljivo je raspoređena kako bi svaki kvadratni metar bio maksimalno iskorišćen. Prostrana dnevna soba izlazi na terasu koja je idealno mesto za jutarnju kafu, lagani ručak na otvorenom ili večernje opuštanje. Tu su i odvojena kuhinja, dve komforne spavaće sobe, kupatilo, hodnik i ostava koja olakšava organizaciju prostora. Grejanje je na gas, što omogućava potpunu kontrolu potrošnje i znatno niže režijske troškove. Sam kompleks je zamišljen kao zatvorena celina sa brojnim pogodnostima za stanare, među kojima se izdvaja privatni park od 1100 m², zeleno utočište unutar kompleksa, savršeno za predah, igru dece ili druženje sa komšijama. Uz stan postoji mogućnost kupovine parking mesta ili garaže, čime se dodatno podiže nivo komfora i praktičnosti. Ova nekretnina predstavlja spoj promišljenog dizajna, odlične lokacije i visoke gradnje, a namenjena je svima koji žele da žive moderno, udobno i bez kompromisa.
Za više informacija kao i za razgledanje stana slobodno nas kontaktirajte.
Kontakt telefoni:
060... (prikaži broj telefona)
,
065... (prikaži broj telefona)
,
065... (prikaži broj telefona)
BAK Nekretnine
*Sačuvaj oglas uz belešku i primaj obaveštenja o njihovom pojeftinjenju ili pojavljivanju sličnih
Prikaz stana na mapi
Parkovi u blizini
- Park Bistrica28 min
- Futoški park33 min
- Limanski park36 min

Obeležja kulture u blizini
- Jodna Banja12 min
- Dvorac Eđšeg13 min
- Kuća iz 1797. godine18 min

Škole/Fakulteti/Vrtići u blizini
- Osnovna škola (Osnovna škola Jožef Atila)11 min
- Srednja škola (Gimnazija Laza Kostić)5 min
- Vrtić (Dečiji vrtić Zemlja čuda)6 min
- Fakultet (Protestantski teološki fakultet)7 min

- Bolnica (Ginekološka bolnica Ferona)2 min
- Klinika (Poliklinika Consilium)12 min
- Teretana (EMS Studio Maxifit)5 min
- Prodavnica (Supermarket Univerexport)6 min
- Restoran (Caffe restoran Rosetto)7 min
- Kafana (Atos pub)5 min
- Taksi stajalište (Taxi prevoz Novi Sad)20 min
- Autobuska stanica (Feješ Klare - Pravoslavna crkva)3 min
- Banka (Erste Bank Ekspres ekspozitura)6 min
- Pošta (Pošta Novi Sad 21124)7 min
Kontakt oglašivača
Krediti OTP banke
Saznaj više
Prikazana rata odnosi se na maksimalni period otplate. Kalkulator je informativnog karaktera.
* Nakon isteka 5 godina, prelazi se na varijabilnu kamatnu stopu






















