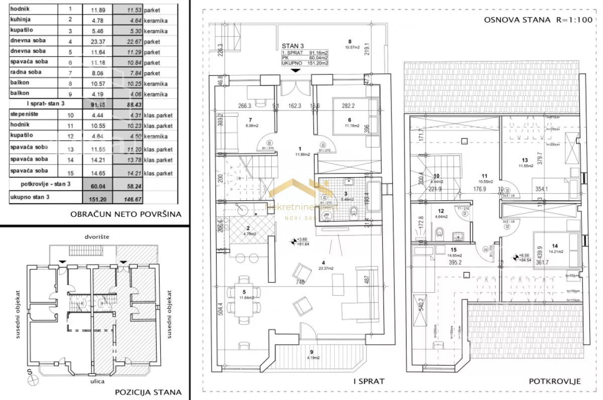
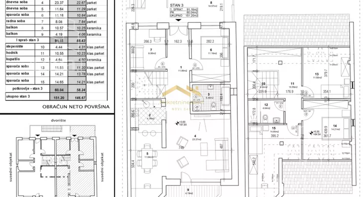
Šestosoban stan na prodaju, Slana Bara, 224.911€, 147m²
















224.911 €
1.530 € / m2
- Stan u zgradi
- Podno grejanje
- Prostorije: terasa
- Opremljenost: Prazno - internet, interfon, klima, kanalizacija
- Oglas oglašava agencija pod reg. brojem 1734
- 1 garažno mesto
- 1 parking mesto
- Kanalizacija
- Kablovska
- 1 telefonska linija
Opis oglasa
Agencijska oznaka 5261
Predstavljamo vam jedinstvenu nekretninu koja nudi komfor stana uz privatnost kuće, smeštenu u mirnom delu Klise – idealnu za porodičan život.
Stan je dvostrano orijentisan (ulično i dvorišno), sa spavaćim sobama okrenutim ka dvorištu, što obezbeđuje mir, tišinu i prijatan ambijent, dok dnevni deo pruža obilje svetlosti i otvorenosti.
Prostor i komfor
Prostran dnevni boravak predstavlja centralno mesto doma, savršen za porodična okupljanja i opuštanje, dok funkcionalan raspored omogućava maksimalnu iskorišćenost prostora.
Privatno dvorište dodatno izdvaja ovu nekretninu – idealno za odmor, dečiju igru ili druženja, uz mogućnost ugradnje bazena, čime dobijate sopstvenu oazu mira.
Kvalitet gradnje
✔️ Sendvič zid (puna cigla + izolacija + 5 cm stiropor + cigla + fasada)
✔️ odlična termo i zvučna izolacija
✔️ Kömmerling PVC stolarija
✔️ savremeni materijali i kvalitetna izrada
Dodatne pogodnosti
✔️ obezbeđeno parking mesto
✔️ privatna garaža
Energetska efikasnost
✔️ podno grejanje na gas
✔️ niski mesečni troškovi (plaćanje samo u sezoni)
Fleksibilnost
Mogućnost uređenja enterijera po želji kupca, što vam omogućava da prostor u potpunosti prilagodite svom stilu života.
Lokacija
Mirno okruženje Klise, uz odličnu povezanost sa gradom:
✔️ blizina škola, vrtića i prodavnica
✔️ gradski prevoz u neposrednoj blizini
✔️ brz pristup centru grada
Retka ponuda – nekretnina koja pruža osećaj kuće uz sve prednosti modernog stana.
Za više informacija i zakazivanje gledanja – slobodno nas kontaktirajte.
Reg pos 1734
*Sačuvaj oglas uz belešku i primaj obaveštenja o njihovom pojeftinjenju ili pojavljivanju sličnih
Prikaz stana na mapi
Parkovi u blizini
- Železnički park46 min

Obeležja kulture u blizini
- Spomen ploča Albertu Ajnštajnu i Milevi Marić13 min
- Spomenik Kralju Petru I Karađorđeviću16 min
- Vladičanski dvor16 min

Škole/Fakulteti/Vrtići u blizini
- Osnovna škola (Osnovna škola Dušan Radović)4 min
- Srednja škola (Privatna srednja škola Sveti Nikola)7 min
- Vrtić (Dečiji vrtić Skočko Hop)6 min
- Fakultet (Univerzitet u Novom Sadu Akademija umetnosti)15 min

- Bolnica (Specijalna bolnica za bolesti zavisnosti Dr Boro Lazić)9 min
- Klinika (Poliklinika Uromedica NS)13 min
- Teretana (Fitness centar Mega Gym Novi Sad)11 min
- Prodavnica (Mikromarket)5 min
- Restoran (Restoran Surabaya)14 min
- Kafana (Kafanica Dobro mesto)22 min
- Taksi stajalište (Novus taxi)34 min
- Autobuska stanica (Sentandrejski put - Paje Radosavljevića)4 min
- Banka (Poštanska štedionica)10 min
- Pošta (Pošta Novi Sad 21118)4 min
Kontakt oglašivača
Krediti OTP banke
Saznaj više
Prikazana rata odnosi se na maksimalni period otplate. Kalkulator je informativnog karaktera.
* Nakon isteka 5 godina, prelazi se na varijabilnu kamatnu stopu






















