Jednoiposoban stan na prodaju, Sonje Marinković, 66.000€, 40m²














66.000 €
1.650 € / m2
- Stan u zgradi
- Grejanje na gas
- U izgradnji
- Prostorije: kupatilo, terasa
- Pogled na: ulicu, dvorište
- U procesu uknjižavanja
- Oglas oglašava agencija pod reg. brojem 2054
- 1 lift
- Godina izgradnje: 2027.
Opis oglasa
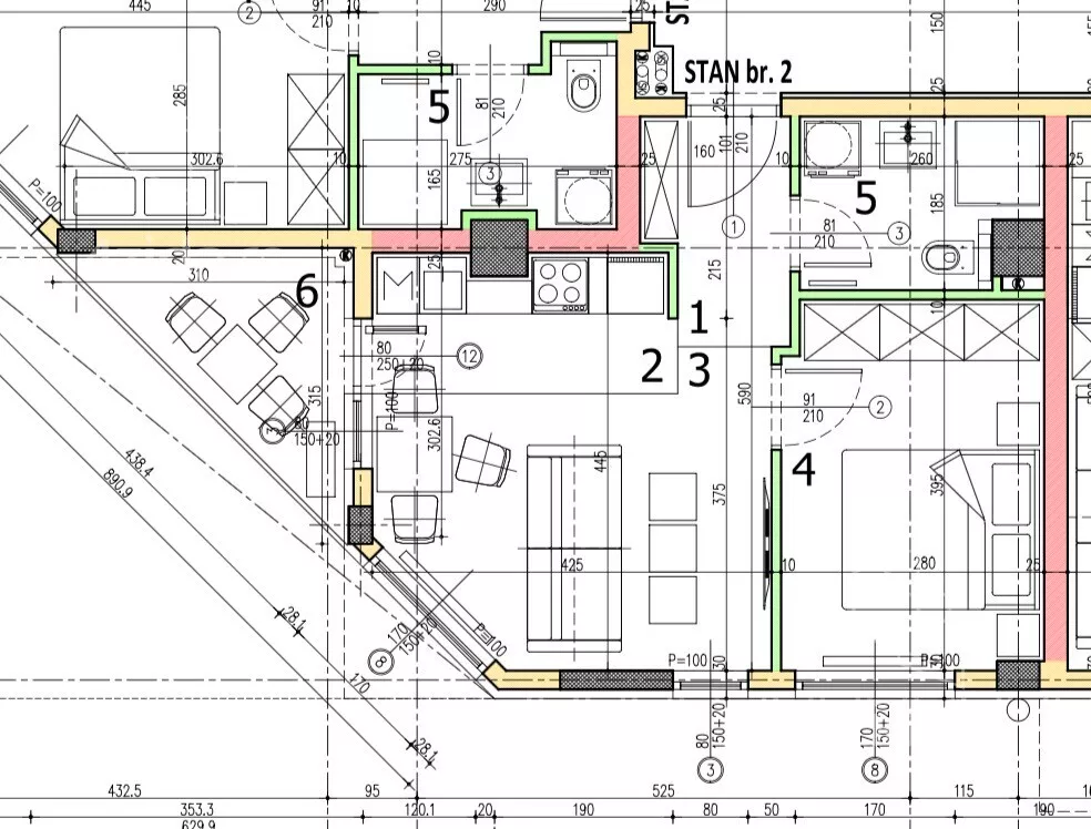
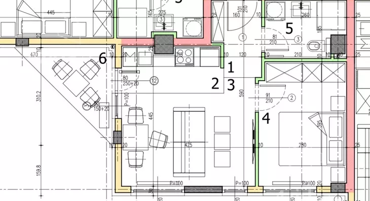
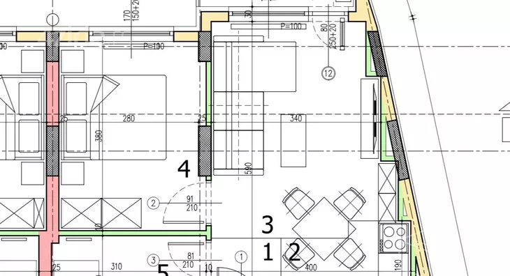
Stan od 39,91m2/br2 na visokom prizemlju , ima terasu, Pogled na ulicu.
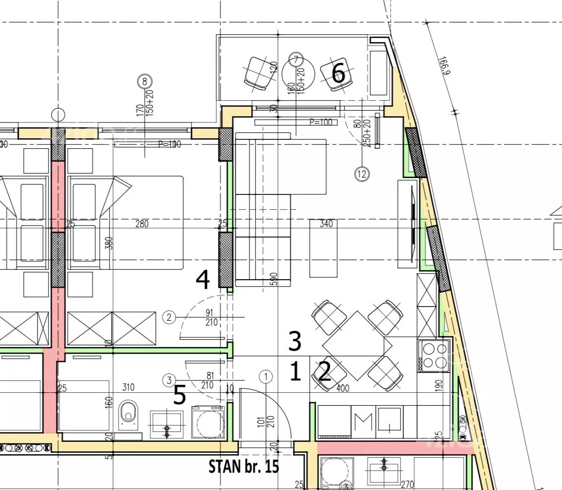
Stan od 40,42 m2/br15,na prvom spratu,(identični stanovi su dosupni na svim spratovima takođe)ima terasu, Pogled na dvoriste.
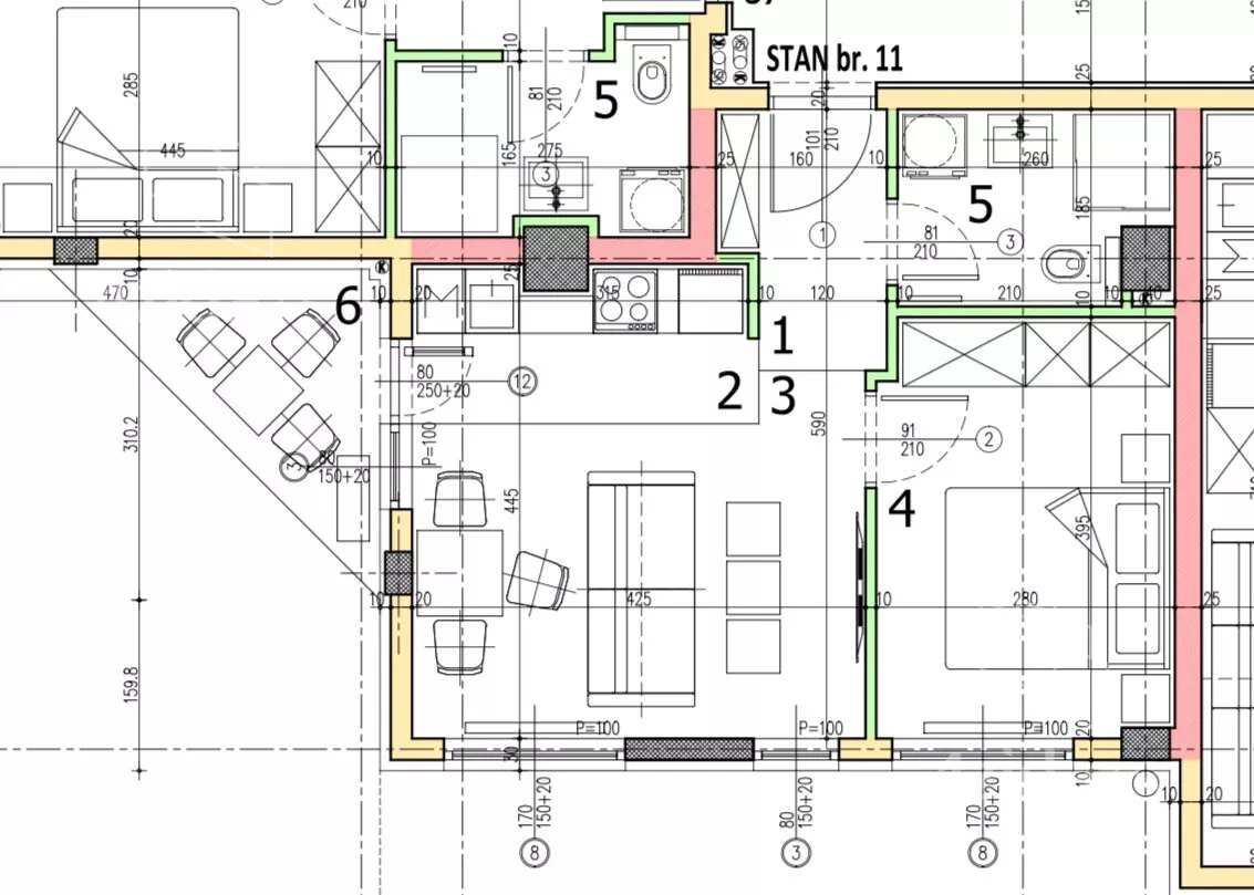
Stan od 40,96 m2/br11 na prvom spratu(identičan stan postoji i na drugom spratu) , Pogled na ulicu.
🚨Počela je izgradnja nove zgrade na odličnoj lokaciji!!!
Za dodatne informacije i detalje ☎️ [[[ 065... (prikaži broj telefona) ](tel: +38... (prikaži broj telefona) )]
BEZ PROVIZIJE ZA KUPCE
Izvođač radova je renomiran a kvalitet izgradnje je već prepoznat!
Cena po m2 je trenutno konkurentna na tržištu ali kako gradnja odmiče ona može da se menja, tako da ukoliko ste razmišljali o kupovini novog stana pravo je vreme za to!
Može i kupovina na stambeni kredit čak i u početnoj fazi radova.
Grejanje na gas, radijatori sa kalorimetrima.
Pvc stolarija spolja antracit.
Podovi tarket i keramika.
Klima uređaj.
Visoki kvalitet izgradnje.
Garažna mesta 15000 € parking mesta 7000€ (sa uračunatim PDV-om) dostupna za kupovinu.
*Sačuvaj oglas uz belešku i primaj obaveštenja o njihovom pojeftinjenju ili pojavljivanju sličnih
Prikaz stana na mapi
Parkovi u blizini
- Park Rajhl Ferenca15 min
- Park Prozivka18 min
- Park Dudova šuma29 min

Obeležja kulture u blizini
- Spomenik Ivanu Sariću5 min
- Spomenik Aleksandru Lifki5 min
- Gradska kuća Subotica6 min

Škole/Fakulteti/Vrtići u blizini
- Osnovna škola (Osnovna škola Sonja Marinković)4 min
- Srednja škola (Politehnička škola Subotica)4 min
- Vrtić (Dečiji vrtić Poletarac)6 min
- Fakultet (Pravni fakultet za privredu i pravosuđe Univerzitet Privredna akademija)8 min

- Bolnica (Bolnica Sveti Stefan)5 min
- Klinika (Poliklinika Sente)4 min
- Teretana (EMS Studio Maxifit)11 min
- Prodavnica (Gomex market)4 min
- Restoran (Konoba Tinel)6 min
- Kafana (Pub Liverpool)10 min
- Autobuska stanica (Pošta I)7 min
- Banka (3 Banka)5 min
- Pošta (Pošta Subotica 11)11 min
Kontakt oglašivača
Krediti OTP banke
Saznaj više
Prikazana rata odnosi se na maksimalni period otplate. Kalkulator je informativnog karaktera.
* Nakon isteka 5 godina, prelazi se na varijabilnu kamatnu stopu


