Trosoban stan na prodaju, Petrovaradin, 223.600€, 97m²






223.600 €
2.305 € / m2
- Grejanje na gas
- U izgradnji
- Prostorije: terasa
- U procesu uknjižavanja
- Oglas oglašava agencija pod reg. brojem 1781
- 1 lift
- Godina izgradnje: 2027.
Opis oglasa
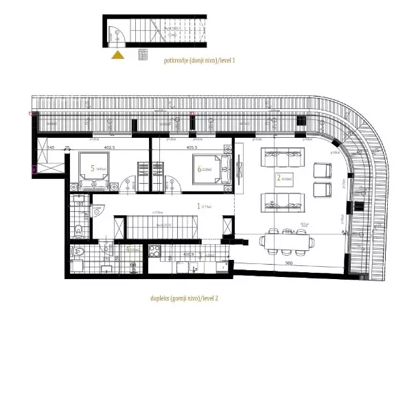
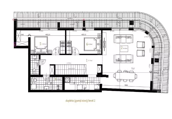
Penthaus u izgradnji 97m2 – Petrovaradin
Na prodaju je moderan penthaus na četvrtom spratu stambene zgrade, osmišljen za udoban i kvalitetan život, na jednoj od najboljih lokacija u Petrovaradinu, u mirnom delu, a takodje i u blizini glavne saobraćajnice i odličnom povezanošču sa svim delovima grada, fakultetima, centar grada na samo 3 km.
Stan se sastoji od ulaznog hodnika u donjem delu, u gornjem delu stana: prostrani dnevni boravak sa trpezarijom, odvojena funkcionalna kuhinja, još dve odvojene komforne sobe, kupatilo, toalet, kao i prostrana terasa.
Posebnu vrednost ovom penthausu daje obilje prirodne svetlosti i odlična organizacija prostora. Podne obloge su pažljivo birane – kombinacija tarketa i keramike, što dodatno doprinosi osećaju topline i elegancije.
Nekretnina je savršen izbor za one koji traže mir, privatnost i komfor, ali i kao investicija koja ima vrednost uvek atraktivne nekretnine.
Postoji mogućnost kupovine uz stan i garažnog parking mesta.
Planirani završetak radova Maj 2027. godine.
- Navedena cena stana je za etapno plaćanja po dinamici i stepenu izgradjenosti objekta.
- Cena stana za kupovinu preko stambenog kredita: 233.500 Eur
- Kupci prve nekretnine imaju pravo na povrat PDV-a.
- Navedena cena je sa uračunatom agencijskom provizijom 3%.
Za sve dodatne informacije i dogovor oko razgledanja stana, kontaktirajte nas.
Select Nekretnine, Registar posrednika br. 1781.
*Sačuvaj oglas uz belešku i primaj obaveštenja o njihovom pojeftinjenju ili pojavljivanju sličnih
Prikaz stana na mapi
Parkovi u blizini
- Kamenički park10 min
- Limanski park14 min
- Park prirode Instituta u Sremskoj Kamenici26 min

Obeležja kulture u blizini
- Kuća Jovana Jovanovića Zmaja5 min
- Kuća iz 1797. godine6 min
- Dvorac Marcibanji-Karačonji7 min

Škole/Fakulteti/Vrtići u blizini
- Osnovna škola (Privatna osnovna škola Svitac)5 min
- Srednja škola (Francusko-srpska gimnazija Petar I od Srbije)11 min
- Vrtić (Dečiji vrtić Plavi čuperak)19 min
- Fakultet (Educons Univerzitet)11 min

- Bolnica (Kovid bolnica Novi Sad)37 min
- Klinika (Poliklinika HealthMedic)7 min
- Teretana (Joga Yogaja Studio)19 min
- Prodavnica (Supermarket Univerexport)13 min
- Restoran (Restoran Davna vremena)13 min
- Kafana (Kafana Tako je suđeno)9 min
- Taksi stajalište (Taxi Maxi Novosađani)17 min
- Autobuska stanica (Sremska Kamenica - Univerzitet)10 min
- Banka (Poštanska štedionica)5 min
- Pošta (Pošta Sremska Kamenica 21202)13 min
Kontakt oglašivača
Krediti OTP banke
Saznaj više
Prikazana rata odnosi se na maksimalni period otplate. Kalkulator je informativnog karaktera.
* Nakon isteka 5 godina, prelazi se na varijabilnu kamatnu stopu


