Dvoiposoban stan na prodaju, Petrovaradin, 121.840€, 54m²




121.840 €
2.256 € / m2
- Stan u zgradi
- Grejanje na gas
- U izgradnji
- Prostorije: terasa
- Opremljenost: interfon
- Oglas oglašava agencija pod reg. brojem 1949
- Godina izgradnje: 2026.
Opis oglasa
NEKRETNINE NOVI SAD – ID OGLASA 1002917
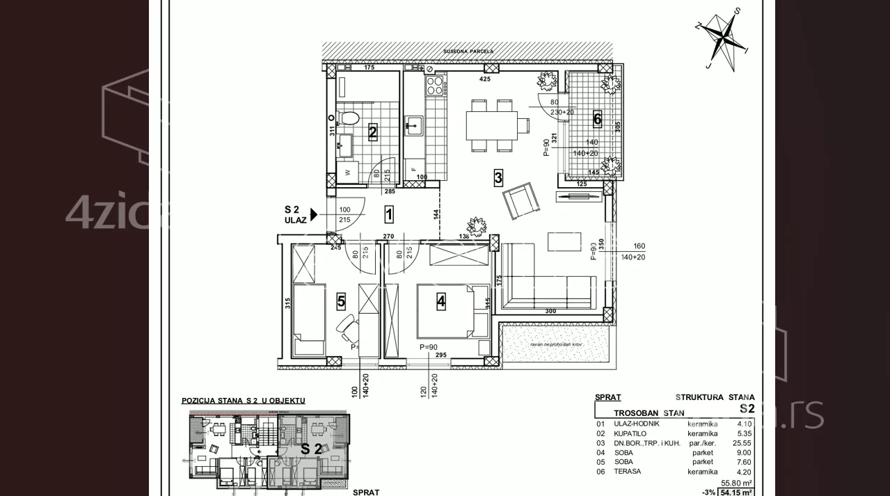
PETROVARADIN, DVOIPOSOBAN, 54m2
LEVEL PROPERTY agencija za nekretnine Vam odličan dvoiposoban stan u izgradnji na veoma atraktivnoj i mirnoj lokaciji. U neposrednoj blizini autobuskih stanica, marketa, pijace, glavnog puta... uvučeno od bučnog tranzita, nalazi se izgradnja objekta u kojoj će se nalazi upravo ovaj stan. Funkcionalnost stana u ovoj kvadraturi je maksimalna i puržena je ugodnost dvorišne orijentacije gde u miru pijete kafu sa terase stana. Svaki stan će imati svoje zasebno parking mesto, a ispred zgrade će biti javni parking. U stanovima će biti sprovedeno podno grejanje, tako da nećete imati gubitka prostora na radijatore. Planiran rok izgradnje je Mart 2027.godine. Stan je takođe moguće kupiti i putem stambenog kredita.
U slučaju da ste zainteresovani ili želite da se dodatno informišete, tu smo za Vas. Pozovite.
Poštovani klijenti, u skladu sa Zakonom o posredovanju u prometu i zakupu nepokretnosti i Opštim uslovima poslovanja posrednika, prezentacija i razgledanje predmetne nepokretnosti kao i svih nekretnina iz agencijske ponude, moguće je samo uz potpisan Ugovor o posredovanju.
Kupac je u obavezi da, u slučaju zaključenja kupoprodaje, isplati posredniku ugovorenu posredničku naknadu- agencijsku proviziju u ugovorenom iznosu, a u skladu sa Ugovorom o posredovanju.
AGENTSKI TIM za nekretnine LEVEL PROPERTY, mob: 066... (prikaži broj telefona) .
Vaša agencija za nekretnine LEVEL PROPERTY, registar posrednika broj 1949, Novi Sad, Dimitrija Tucovića 1, lokal broj 3, tel: 021... (prikaži broj telefona) .
*Sačuvaj oglas uz belešku i primaj obaveštenja o njihovom pojeftinjenju ili pojavljivanju sličnih
Prikaz stana na mapi
Parkovi u blizini
- Kamenički park10 min
- Limanski park14 min
- Park prirode Instituta u Sremskoj Kamenici26 min

Obeležja kulture u blizini
- Kuća Jovana Jovanovića Zmaja5 min
- Kuća iz 1797. godine5 min
- Dvorac Marcibanji-Karačonji7 min

Škole/Fakulteti/Vrtići u blizini
- Osnovna škola (Privatna osnovna škola Svitac)5 min
- Srednja škola (Francusko-srpska gimnazija Petar I od Srbije)11 min
- Vrtić (Dečiji vrtić Plavi čuperak)4 min
- Fakultet (Educons Univerzitet)11 min

- Bolnica (Kovid bolnica Novi Sad)37 min
- Klinika (NK Poliklinika)10 min
- Teretana (Joga Yogaja Studio)5 min
- Prodavnica (Supermarket Univerexport)13 min
- Restoran (Restoran Davna vremena)13 min
- Kafana (Kafana Tako je suđeno)9 min
- Taksi stajalište (Taxi Maxi Novosađani)17 min
- Autobuska stanica (Sremska Kamenica - Univerzitet)10 min
- Banka (Poštanska štedionica)5 min
- Pošta (Pošta Sremska Kamenica 21202)13 min
Kontakt oglašivača
Krediti OTP banke
Saznaj više
Prikazana rata odnosi se na maksimalni period otplate. Kalkulator je informativnog karaktera.
* Nakon isteka 5 godina, prelazi se na varijabilnu kamatnu stopu






















