Trosoban stan na prodaju, Kosovke Devojke, 147.202€, 66m²




147.202 €
2.230 € / m2
- Etažno grejanje
- U izgradnji
- Prostorije: kupatilo, toalet, terasa
- Opremljenost: interfon
- Uknjiženo
- Oglas oglašava agencija pod reg. brojem 1158
- 1 parking mesto
- 1 lift
- Zgrada poseduje: prilaz za invalide
- Kablovska
Opis oglasa
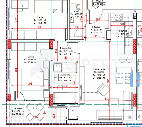
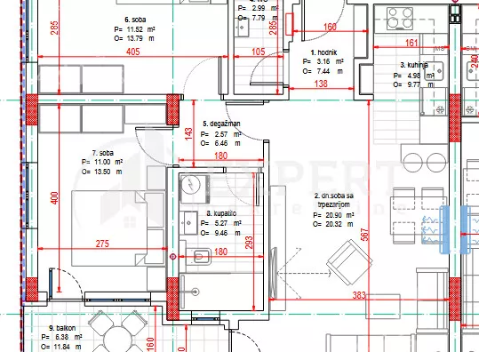
Luksuzan objekat u samom srcu Panteleja! Stambeni objekat po+pr+4 od 35 stambenih jedinica. U ponudi odličan, trosoban stan 66.91m2 u izgradnji, na 1.spratu, u jedinstvenom objektu, koji se sastoji od ulaznog hodnika, toaleta, prostrane dnevne sobe sa trpezarijom, uvučene kuhinje, dve spavaće sobe, kupatila i lođe na koju se izlazi iz dnevne sobe. Stakleni portali od poda do plafona prema terasi pružaju otvoren pogled, kao i odlično prirodno osvetljenje u prostoriji. Izuzetna funkcionalnost stanova i vrhunski kvalitet ugradjenih materijala i opreme je ono što izdvaja ovaj objekat i čini ga pravim izborom za Vas. Aluminijum prozori visokog kvaliteta sa šestokomornim staklima i alu roletnama, tarket parket vrhunskog kvaliteta, keramika premium kvaliteta, na terasi granitne pločice, sigurnosna vrata , etažno i podno grejanje. Parking poseduje punjače za električne automobile. Bešumni lift. Zgrada će biti izgrađena na placu od 15a, sa 35 stanova (različitih kvadratura od 35m2 do 67m2), što pruža posebnu pogodnost zajedničkog velikog dvorišta, uredjeno stazama, rasvetom, parking mestom za bicikle, motore, kao i zelenom površinom koja će Vam pružiti prave trenutke opuštanja Video nadzor i interfon Vam pružaju neophodnu sigurnost. Povraćaj PDV-a za kupce prvog stana. U prizemlju objekta je predviđen natkriveni parking prostor sa tri parking mesta, dok je na parceli planirano još njih 38. Rok za završetak objekta je do kraja 2027.god. godine. Ovo je samo deo naše ponude, ovaj kao i druge stanove sa većim brojem fotografija možete pogledati na našem sajtu.
*Sačuvaj oglas uz belešku i primaj obaveštenja o njihovom pojeftinjenju ili pojavljivanju sličnih
Prikaz stana na mapi
Parkovi u blizini
- Park heroja NOB-a17 min
- Park složnih komšija19 min
- Park Svetog Save23 min

Obeležja kulture u blizini
- Stambol kapija4 min
- Ranohrišćanska grobnica3 min
- Ranohrišćanska bazilika8 min

Škole/Fakulteti/Vrtići u blizini
- Osnovna škola (Osnovna škola Stefan Nemanja)4 min
- Srednja škola (Elektrotehnička škola Nikola Tesla)5 min
- Vrtić (Dečiji vrtić Meca Dobrica)12 min
- Fakultet (Univerzitet u Nišu Mašinski fakultet)21 min

- Bolnica (Urgentni centar Niš)7 min
- Klinika (Family Medica poliklinika)18 min
- Teretana (Fitness centar Universum)5 min
- Prodavnica (Zalogaj juga degustaciono edukativni centar)1 min
- Restoran (Kafana Beli bagrem)6 min
- Kafana (Kafana Stari ambar)16 min
- Taksi stajalište (Cool taksi)8 min
- Autobuska stanica (Branko Mišić Kamenko)1 min
- Banka (Eurobank Direktna)8 min
- Pošta (Pošta Niš 15)20 min
Kontakt oglašivača
Krediti OTP banke
Saznaj više
Prikazana rata odnosi se na maksimalni period otplate. Kalkulator je informativnog karaktera.
* Nakon isteka 5 godina, prelazi se na varijabilnu kamatnu stopu


