Jednoiposoban stan na prodaju, Palilula, 63.000€, 57m²




63.000 €
1.105 € / m2
- Grejanje na TA peć
- Prostorije: kupatilo
- Oglas oglašava agencija pod reg. brojem 940
- 1 telefonska linija
Opis oglasa
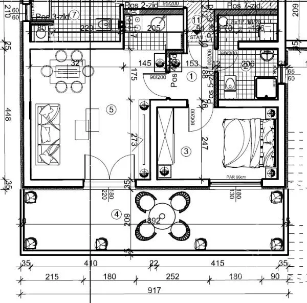
U ponudi je jednoiposoban stan na dobroj lokaciji na Paliluli. Površine je 57,24m2, nalazi se u suterenu objekta spratnosti Su+P+1 bez lifta. Sastoji se iz ulaznog hodnika, dnevnog boravka sa kuhinjom i trpezarijom, spavaće sobe i kupatila. U gradnji se koriste kvalitetni materijali, na podu je tarket, stolarija je PVC profila, grejanje je na struju. Nalazi se u mirnijem delu Palilule, u neposrednoj blizini ima sve što Vam je potrebno za kvalitetan porodičan život. Za više informacija o ovoj ili drugim nekretninama i zakazivanje razgledanja kontaktirajte agenta na broj telefona iz oglasa (poziv, sms, viber) ili putem e-maila. Kompletnu ponudu dostupnih nekretnina možete pronaći na našem sajtu. Agencija Proagent nekretnine je upisana u Registru posrednika pod brojem: 940.
*Sačuvaj oglas uz belešku i primaj obaveštenja o njihovom pojeftinjenju ili pojavljivanju sličnih
Prikaz stana na mapi
Parkovi u blizini
- Park Čair11 min
- Park heroja NOB-a19 min
- Park složnih komšija24 min

Obeležja kulture u blizini
- Spomenik Stevanu Sremcu i Kalči5 min
- Vladičanski dvor7 min
- Donina česma7 min

Škole/Fakulteti/Vrtići u blizini
- Osnovna škola (Osnovna škola Kole Rašić)9 min
- Srednja škola (Gimnazija Svetozar Marković)5 min
- Vrtić (Dečiji vrtić Mrvičica)2 min
- Fakultet (Univerzitet u Nišu Fakultet zaštite na radu)4 min

- Bolnica (Urgentni centar Niš)6 min
- Klinika (Poliklinika Longa Vita)8 min
- Teretana (Gym Town 1)4 min
- Prodavnica (IDEA)2 min
- Restoran (Restoran Fidel Gastro)5 min
- Kafana (Pivnica Nemir)8 min
- Taksi stajalište (Bros Taxi Niš)12 min
- Autobuska stanica (Božidarčeva)1 min
- Banka (NLB Komercijalna banka)4 min
- Pošta (Pošta Niš 5)7 min
Kontakt oglašivača
Krediti OTP banke
Saznaj više
Prikazana rata odnosi se na maksimalni period otplate. Kalkulator je informativnog karaktera.
* Nakon isteka 5 godina, prelazi se na varijabilnu kamatnu stopu


