Petosoban stan na prodaju, Risanska, 399.500€, 170m²



































399.500 €
2.350 € / m2
- Dupleks
- Etažno grejanje
- Prostorije: terasa
- Uknjiženo
- Oglas oglašava agencija pod reg. brojem 145
Opis oglasa
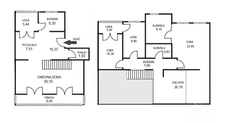
Uknjižen (na 149m2) petosoban stan u dva nivoa, mereno ima 170m2 (dve lođe i terasa). Nalazi se na petom spratu kvalitetne i dobro održavane zgrade sa interfonom, video nadzorom, (bez lifta, ali je u planu ugradnja), sa parkingom u dvorištu zgrade. Etažno grejanje na struju (podno). Dvostrano je orijentisan (sever, jug) i izuzetno svetao. Alu stolarija, sigurnosna vrata...
Donji nivo se sastoji od ulaznog hodnika, prostrane dnevne sobe (h-6m), kuhinje pultom odvojene od trpezarije, toaleta, lođe i terase. Gornji nivo se sastoji od dve spavaće sobe (iz jedne se izlazi na lođu), kupatila i master soba sa svojim kupatilom. Na ovom nivou se nalazi i galerija, koja se može organizovati po potrebi (npr. radna soba + garderober pripojen master sobi).
U blizini vrtić, škole, marketi i veliki broj linija gradskog prevoza.
Agencijska provizija 2% uknjizen Alisa
063... (prikaži broj telefona)
Risanska -imamo slicne NEKRETNINE BEOGRAD http://www.teofilnekretnine.com/stan-beograd/kartica.php?id=4430
*Sačuvaj oglas uz belešku i primaj obaveštenja o njihovom pojeftinjenju ili pojavljivanju sličnih
Prikaz stana na mapi
Parkovi u blizini
- Park Hajduk Veljkov venac3 min
- Park Gavrila Principa5 min
- Manjež10 min

Obeležja kulture u blizini
- Kasarna VII puka4 min
- Spomenik Gavrilu Principu4 min
- Spomenik Stefanu Nemanji6 min

Škole/Fakulteti/Vrtići u blizini
- Osnovna škola (Osnovna škola Petar Petrović Njegoš)4 min
- Srednja škola (Gimnazija Stefan Nemanja)5 min
- Vrtić (Dečiji vrtić Avantura)8 min
- Fakultet (Akademija umetnosti Beograd)4 min

- Bolnica (Specijalna bolnica Sveti Sava)4 min
- Klinika (Poliklinika Gracia Medika)6 min
- Teretana (Sportski klub Athletic Body Response)4 min
- Prodavnica (Shop&Go)manje od 1 min
- Restoran (Restoran Niš)4 min
- Kafana (Kafana Mala tambura)7 min
- Taksi stajalište (Taxi stanica)1 min
- Autobuska stanica (Savski Trg)3 min
- Tramvajska stanica (Savski Trg)4 min
- Trolejbuska stanica (Birčaninova)4 min
- Banka (Eurobank Direktna)6 min
- Pošta (Pošta Beograd 114)5 min
Kontakt oglašivača
Krediti OTP banke
Saznaj više
Prikazana rata odnosi se na maksimalni period otplate. Kalkulator je informativnog karaktera.
* Nakon isteka 5 godina, prelazi se na varijabilnu kamatnu stopu

