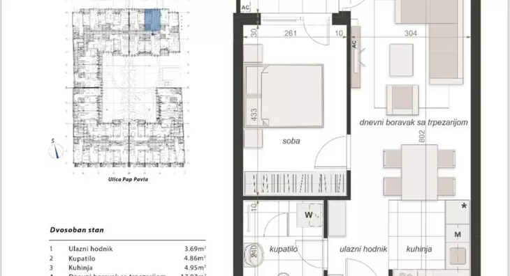
Dvosoban stan na prodaju, Novi Sad - Centar, 174.000€, 45m²












174.000 €
3.867 € / m2
- Stan u zgradi
- Oglas oglašava agencija pod reg. brojem 1298
Opis oglasa
Prodajemo dvosoban stan u izgradnji u Pap Pavla, u zelenoj oazi na samo par koraka od SNP-a, glavne Pošte i pešačke zone, kao i Bulevara Oslobođenja i Futoške pijace sa druge strane. Savremeni koncept življeenja sa Urbanom baštom u centru grada je nešto što još uvek nije viđeno u Novom Sadu.
Stan je iz kompenzacije, uz mogućnost plaćanja na rate ( 60% - 20% - 20% ). Za kupce prve nepokretnosti mogućnost povrata PDV-a.
Rok izgradnje je septembar 2026. godine.
*Sačuvaj oglas uz belešku i primaj obaveštenja o njihovom pojeftinjenju ili pojavljivanju sličnih
Prikaz stana na mapi
Parkovi u blizini
- Dunavski park12 min
- Park srpsko-azerbejdžanskog prijateljstva19 min
- Limanski park21 min

Obeležja kulture u blizini
- Spomenik Svetozaru Miletiću5 min
- Matičarsko zdanje7 min
- Galerija Matice srpske2 min

Škole/Fakulteti/Vrtići u blizini
- Osnovna škola (Privatna osnovna škola Tvrđava)6 min
- Srednja škola (Gimnazija Isidora Sekulić)5 min
- Vrtić (Dečiji vrtić Vila)4 min
- Fakultet (Univerzitet u Novom Sadu Fakultet sporta i fizičkog vaspitanja)5 min

- Bolnica (Hirurška ordinacija Aesculap)4 min
- Klinika (Poliklinika Nada Diva)4 min
- Teretana (Fitness centar World Class Bazaar)4 min
- Prodavnica (Mikromarket)4 min
- Restoran (Macchiato Kuća eat & dream)4 min
- Kafana (Pivnica Brauhaus)3 min
- Taksi stajalište (Zeleni Eko Taxi)18 min
- Autobuska stanica (Bul. Mihajla Pupina - Pothodnik)4 min
- Banka (Narodna banka Srbije)3 min
- Pošta (Pošta Novi Sad 21108)8 min
Kontakt oglašivača
Krediti OTP banke
Saznaj više
Prikazana rata odnosi se na maksimalni period otplate. Kalkulator je informativnog karaktera.
* Nakon isteka 5 godina, prelazi se na varijabilnu kamatnu stopu


