Četvorosoban stan na prodaju, Novi Sad - Centar, 437.500€, 125m²


437.500 €
3.500 € / m2
- Stan u zgradi
- U izgradnji
- Prostorije: terasa
- Oglas oglašava agencija pod reg. brojem 1949
- Godina izgradnje: 2026.
Opis oglasa
NEKRETNINE NOVI SAD - ID OGLAS: 1002487
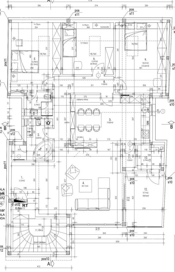
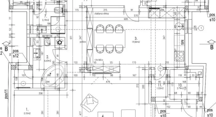
Na prodaju potpuno nov četvorosoban stan nastao adaptacijom potkrovlja u sređenoj zgradi od značaja. Stan je izrađen od poda do plafona. Od novih zidova, preko novih instalacija, podova, sanitarija i keramike, pa do nove krovne konstrukcije.
Stan ima trostranu orijentaciju. Iz komfornog dnevnog boravka se izlazi na komotnu terasu sa koje se pruža pogled na južni deo grada ka starom gradu, kuhinjsko trpezarijski deo je impozantan i iz njega su deganžmanom odvojene dve dečije spavaće sobe. Iz predsoblja stana se ulazi u hodnik koji ima kupatilo i iz kojeg se ulazi u roditeljsku veliku sobu koja poseduje sopstveno kupatilo. S` obzirom da se stan nalazi u potkrovlju podno stan zauzima više od 125 knjižnih kvadrata. Na terasi se nalazi ostava u kojoj se nalazi toplotna pumpa za podno grejanje u stanu.
Idealna prilika za one koji traže nov stan bez dodatnih ulaganja, u kvalitetnoj i estetski očuvanoj zgradi. Postoji mogućnost za razne vrste dogovora.
U slučaju da želite da pogledate stan ili da se dodatno informišete, tu smo za Vas. Pozovite
Poštovani klijenti, u skladu sa Zakonom o posredovanju u prometu i zakupu nepokretnosti i Opštim uslovima poslovanja posrednika, prezentacija i razgledanje predmetne nepokretnosti kao i svih nekretnina iz agencijske ponude, moguće je samo uz potpisan Ugovor o posredovanju.
Kupac je u obavezi da, u slučaju zaključenja kupoprodaje, isplati posredniku ugovorenu posredničku naknadu- agencijsku proviziju u ugovorenom iznosu, a u skladu sa Ugovorom o posredovanju.
Vaš agent za nekretnine: Aleksandar Jovanović, licenca broj 1281, mob: 064... (prikaži broj telefona) .
Vaša agencija za nekretnine LEVEL PROPERTY, registar posrednika broj 1949, Novi Sad, Dimitrija Tucovića 1, lokal broj 3, tel: 021... (prikaži broj telefona) .
*Sačuvaj oglas uz belešku i primaj obaveštenja o njihovom pojeftinjenju ili pojavljivanju sličnih
Prikaz stana na mapi
Parkovi u blizini
- Dunavski park12 min
- Park srpsko-azerbejdžanskog prijateljstva19 min
- Limanski park21 min

Obeležja kulture u blizini
- Spomenik Svetozaru Miletiću5 min
- Matičarsko zdanje7 min
- Galerija Matice srpske2 min

Škole/Fakulteti/Vrtići u blizini
- Osnovna škola (Privatna osnovna škola Tvrđava)6 min
- Srednja škola (Gimnazija Isidora Sekulić)5 min
- Vrtić (Dečiji vrtić Vila)4 min
- Fakultet (Univerzitet u Novom Sadu Fakultet sporta i fizičkog vaspitanja)5 min

- Bolnica (Hirurška ordinacija Aesculap)4 min
- Klinika (Poliklinika Nada Diva)4 min
- Teretana (Fitness centar World Class Bazaar)4 min
- Prodavnica (Mikromarket)4 min
- Restoran (Macchiato Kuća eat & dream)4 min
- Kafana (Pivnica Brauhaus)3 min
- Taksi stajalište (Zeleni Eko Taxi)18 min
- Autobuska stanica (Bul. Mihajla Pupina - Pothodnik)4 min
- Banka (Narodna banka Srbije)3 min
- Pošta (Pošta Novi Sad 21108)8 min
Kontakt oglašivača
Krediti OTP banke
Saznaj više
Prikazana rata odnosi se na maksimalni period otplate. Kalkulator je informativnog karaktera.
* Nakon isteka 5 godina, prelazi se na varijabilnu kamatnu stopu






















