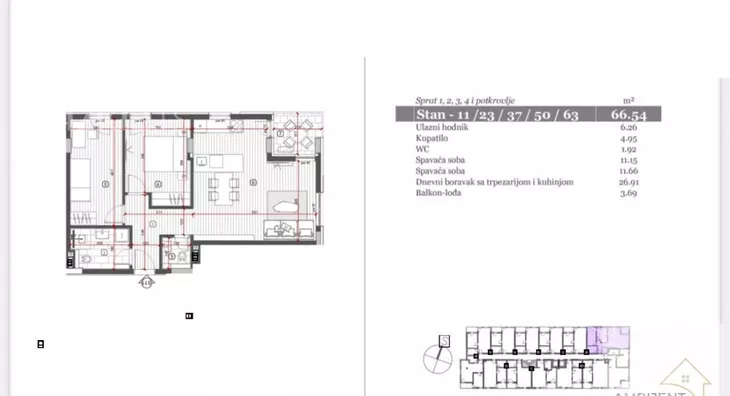
Trosoban stan na prodaju, Nova Pazova, 99.810€, 66m²
















99.810 €
1.512 € / m2
- Stan u zgradi
- Novo
- Prostorije: terasa
- Opremljenost: Prazno - interfon, kanalizacija
- Oglas oglašava agencija pod reg. brojem 1667
- 1 parking mesto
- 1 lift
- Kanalizacija
- Zgrada poseduje: lođa, video nadzor
Opis oglasa
ID 986 Direktna cena od investitora bez provizije. Izrada i nadzor overe kupoprodajnog ugovora su obezbeđeni.
Na odličnoj lokaciji u ponudi su stanovi u novoizgrađenom stambenom objektu koji kombinuje moderan dizajn, funkcionalnost i kvalitetnu gradnju.
Karakteristike objekta i stanova:
• Mirna i dostupna lokacija, idealna za svakodnevni život
• Funkcionalni rasporedi stanova sa optimalnim iskorišćenjem prostora
• Prostrani i svetli dnevni boravci
• Moderna kupatila i kuhinjski prostori
• Kvalitetna PVC stolarija i podne obloge
• Lift u zgradi
• Spoljno parking mesto uključeno u cenu stana
• Blizina škole, vrtića, prodavnica i javnog prevoza
Dostupni su stanovi slične kvadrature i različite spratnosti.
Cena za kreditne kupce je 1550e/m2 + PDV.
Odlična prilika za porodično stanovanje ili investiciju.
Navedena cena je izražena bez PDV-a, a pravo na povraćaj imaju kupci prvog stana.
Broj u registru posrednika 1667.
Kontakt za više informacija ili dogovor oko razgledanja: 064... (prikaži broj telefona)
*Sačuvaj oglas uz belešku i primaj obaveštenja o njihovom pojeftinjenju ili pojavljivanju sličnih
Prikaz stana na mapi
Obeležja kulture u blizini
- Ambar sa kotobanjom porodice Lepšanović25 min
- Ambar sa kotobanjom porodice Galečić26 min
- Dvorac Šlos26 min

Škole/Fakulteti/Vrtići u blizini
- Osnovna škola (Osnovna škola Rastko Nemanjić)5 min
- Srednja škola (Gimnazija Branko Radičević)15 min
- Vrtić (Dečiji vrtić Poletarac)6 min
- Fakultet (SMATSA školski centar)30 min

- Bolnica (Klinika za lečenje bolesti zavisnosti MedTim)18 min
- Klinika (Poliklinika Nova Pazova)6 min
- Teretana (Teretana B Gym)13 min
- Prodavnica (PerSu market)6 min
- Restoran (Restoran Staro mesto)13 min
- Kafana (Pab Two Beers)8 min
- Autobuska stanica11 min
- Banka (Erste Bank)5 min
- Pošta (Pošta Nova Pazova)4 min
Kontakt oglašivača
Krediti OTP banke
Saznaj više
Prikazana rata odnosi se na maksimalni period otplate. Kalkulator je informativnog karaktera.
* Nakon isteka 5 godina, prelazi se na varijabilnu kamatnu stopu


