Petosoban stan na prodaju, Neimar, 1.343.000€, 289m²












1.343.000 €
4.647 € / m2
- Podno grejanje
- Novo
- Prostorije: terasa
- Opremljenost: Prazno - internet, interfon, klima
- Oglas oglašava agencija pod reg. brojem 1288
- 1 garažno mesto
- 1 lift
- Zgrada poseduje: lođa
- 1 telefonska linija
Opis oglasa
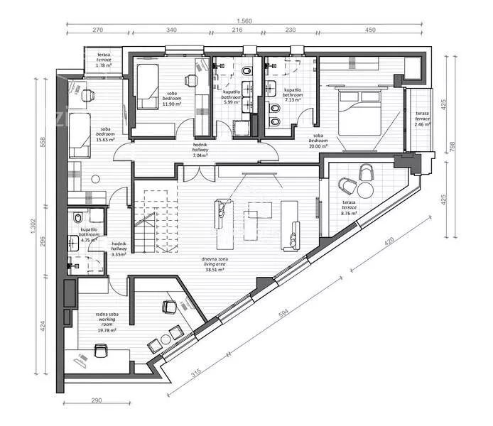
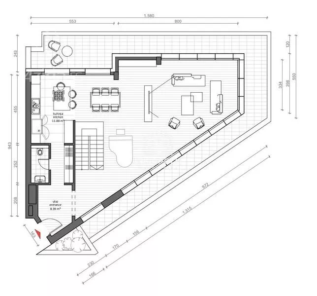
Prodaje se LUX stan: moderan, kvalitetan, idealan za porodicu. Karakteristike: Lokacija: Vračar, Neimar
Podovi: italijanska granitna keramika u dnevnom delu i kupatilima; lamelni parket natur u spavaćim sobama
Stolarija: aluminijumska
Zatvaranje: alu elektro roletne sa komarnicima
Grejanje/hladjenje: podno grejanje i hlađenje preko fancoil jedinica
Pametna kuća: integrisan smart home sistem za rasvetu, grejanje/hladjenje i roletne
Terasa/ograda: ograda od kaljenog stakla
Sanitarije: moderni kupatilski elementi
Ostalo: svetao raspored, praktičan tlocrt, sigurnosna vrata.
Cene su izražene bez PDV-a.
Pogodno za porodicu ili kao luksuzni zakup. Za dodatne informacije i termine razgledanja javite se.
Raspored prostorija: donji nivo - predsoblje, dnevni boravak, radna soba, 3 spavaće sobe, predsoblje, 3 kupatila, 2 lođe, terasa. Gornji nivo - predsoblje, garderober, dnevni boravak, kuhinja, toalet, terasa.
Agencijska nadoknada iznosi 2%
.
*Sačuvaj oglas uz belešku i primaj obaveštenja o njihovom pojeftinjenju ili pojavljivanju sličnih
Prikaz stana na mapi
Parkovi u blizini
- Park mira Jelena Šantić3 min
- Čuburski park6 min
- Svetosavski plato9 min

Obeležja kulture u blizini
- Čuburska avlija iznad potoka 1928.4 min
- Spomenik Petru Kočiću6 min
- Osnovna škola Kralj Petar II Karađorđević7 min

Škole/Fakulteti/Vrtići u blizini
- Osnovna škola (Privatna osnovna škola Vladislav Petković Dis)2 min
- Srednja škola (Gimnazija Vladislav Petković Dis)2 min
- Vrtić (Dečiji vrtić Naš vrtić)5 min
- Fakultet (Univerzitet u Beogradu Fakultet bezbednosti)4 min

- Bolnica (Bolnica za mikrohirurgiju oka Zenit)5 min
- Klinika (Poliklinika Labodijagnostika)5 min
- Teretana (Fitness centar Body Concept Studio)5 min
- Prodavnica (Shop&Go)2 min
- Restoran (Restoran Saporibelli)3 min
- Kafana (Tatar Bar)7 min
- Taksi stajalište (Taxi stanica)2 min
- Autobuska stanica (Internacionalnih Brigada)2 min
- Tramvajska stanica (Karađorđev Park)12 min
- Trolejbuska stanica (Mačvanska)6 min
- Banka (OTP banka)7 min
- Pošta (Pošta Beograd 32)8 min
Kontakt oglašivača
Krediti OTP banke
Saznaj više
Prikazana rata odnosi se na maksimalni period otplate. Kalkulator je informativnog karaktera.
* Nakon isteka 5 godina, prelazi se na varijabilnu kamatnu stopu






















