Četvorosoban stan na prodaju, Neimar, 512.700€, 85m²






















512.700 €
6.032 € / m2
- Stan u zgradi
- Podno grejanje
- Prostorije: terasa
- Nije uknjiženo
- Oglas oglašava agencija pod reg. brojem 105
- 1 lift
- Godina izgradnje: 2026.
Opis oglasa
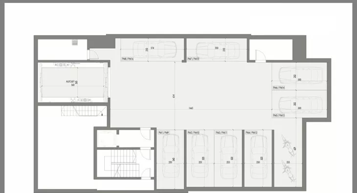
U prilici smo da Vam ponudimo 4.0 stan, na fantasticnoj lokaciji, u luksuznoj zgradi, koja je u izgradnji, sa planiranim zavrsetkom u martu 2027. godine. Prilikom gradnje koriste se najkvalitetniji materijali i oprema (medju slikama je opis svih materijala). Grejanje je podno, uz pomoc toplotnih pumpi, a zgrada poseduje i centralnu klimu. Visina plafona u stanovima je 2.8 m, a ulazna vrata su visine 2.2 metra. Auto lift je vangabaritni i u njega moze da stane svaki auto, dok su garazna mesta 2.7 m x 5.2 m. Za kupce prve nepokretnosti na teritoriji Srbije, moguc je povracaj PDV-a. Moguca je i kupovina garacnog mesta, cija ce cena biti 45-50000 Eura, u zavisnosti od izabranog mesta (sva garazna mesta su ozidana, a ne klackalice).
Agent prodaje: Goran Vukovic, 064... (prikaži broj telefona)
Agencijska provizija: 2% Broj u reg:105 Posrednicka provizija 2% 1/3
*Sačuvaj oglas uz belešku i primaj obaveštenja o njihovom pojeftinjenju ili pojavljivanju sličnih
Prikaz stana na mapi
Parkovi u blizini
- Karađorđev park1 min
- Svetosavski plato5 min
- Park Milutina Milankovića5 min

Obeležja kulture u blizini
- Spomenik Lamartinumanje od 1 min
- Spomenik žrtvama bombardovanja Beograda1 min
- Spomenik Internacionalnim brigadama1 min

Škole/Fakulteti/Vrtići u blizini
- Osnovna škola (Privatna osnovna škola Vladislav Petković Dis)6 min
- Srednja škola (Prva škola integrativne medicine Alvita Plus)6 min
- Vrtić (Dečiji vrtić Beli zeka)4 min
- Fakultet (Univerzitet u Beogradu Stomatološki fakultet)5 min

- Bolnica (Klinika za bolesti zuba)2 min
- Klinika (Poliklinika Medikom)5 min
- Teretana (Apurva Body Studio)4 min
- Prodavnica (IDEA)2 min
- Restoran (District 1 Wine bar & Gastrolounge)1 min
- Kafana (Tatar Bar)5 min
- Taksi stajalište (Pet Taxi)5 min
- Autobuska stanica (Franše d'Eperea)4 min
- Tramvajska stanica (Karađorđev Park)4 min
- Trolejbuska stanica (Katanićeva)10 min
- Banka (Banca Intesa)6 min
- Pošta (Pošta Beograd 120)5 min
Kontakt oglašivača

Krediti OTP banke
Saznaj više
Prikazana rata odnosi se na maksimalni period otplate. Kalkulator je informativnog karaktera.
* Nakon isteka 5 godina, prelazi se na varijabilnu kamatnu stopu

