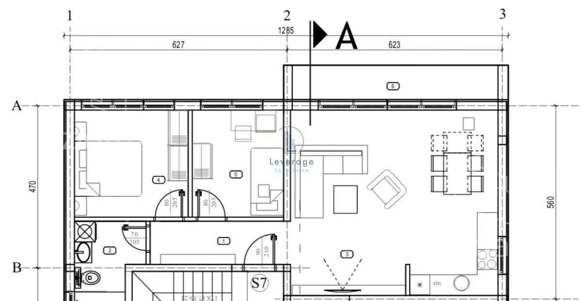
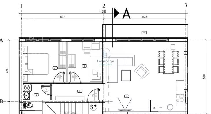
Trosoban stan na prodaju, Mladenovac (mesto), 105.837€, 64m²










105.837 €
1.654 € / m2
- Stan u zgradi
- Novo
- Prostorije: terasa
- Opremljenost: Prazno - interfon, kanalizacija
- Uknjiženo
- Oglas oglašava agencija pod reg. brojem 1152
- 1 lift
- Kanalizacija
- 1 telefonska linija
Opis oglasa
Luksuzni stan nove gradnje – nekoliko minuta od centra
U ponudi je stan vrhunskog kvaliteta gradnje, projektovan po najvišim savremenim standardima, na izuzetnoj lokaciji – svega nekoliko minut hoda od centra grada. Savršen spoj komfora, bezbednosti i moderne tehnologije, namenjen onima koji žele više.
Pažljivo birani materijali i savremeni sistemi
Za dugoročnu udobnost i visoku energetsku efikasnost:
Termo blok 25 cm
7-komorna PVC stolarija sa troslojnim staklima
Toplotna pumpa i podno grejanje
Smart Home sistem – GOLD paket
Lift i obezbeđeno parking mesto
Enterijer u premium završnici
Prvoklasni parket i granit
Luksuzno opremljena kupatila
Moderan dizajn i pažnja posvećena svakom detalju
SMART HOME – već u osnovnoj opremi
Svaki stan dolazi sa integrisanim pametnim sistemom, koji omogućava potpuno upravljanje stanom – gde god da se nalazite, uz pomoć mobilnog telefona ili tableta.
U osnovnoj opremi uključeno:
Inteligentno upravljanje osvetljenjem po prostorijama
Električne roletne sa centralnim i pojedinačnim komandama
Pametno upravljanje grejanjem i hlađenjem
Video-interfon povezan sa telefonom
Video-nadzor zajedničkih prostora
Kontrolisan ulazak u zgradu za stanare putem Face ID sistema
Tablet za centralno upravljanje svim funkcijama stana
Šta ovo znači za budućeg vlasnika?
Viši nivo bezbednosti (kontrolisan pristup, video-nadzor)
Niži mesečni troškovi zahvaljujući pametnom upravljanju energijom
Komfor nove generacije
Veća tržišna vrednost stana u budućnosti
Stan spreman za narednih 10–15 godina tehnološkog razvoja.
Cena je izražena pez pdv od 10%.
Završetak gradnje planiran za april 2027 godine.
Agencijska provizija iznosi 2% od kupoprodajne cene.
Kontaktirajte nas za više informacija
*Sačuvaj oglas uz belešku i primaj obaveštenja o njihovom pojeftinjenju ili pojavljivanju sličnih
Prikaz stana na mapi
Obeležja kulture u blizini
- Spomen česma Crkvenac5 min
- Spomenik palim ratnicima 1912-19187 min
- Spomenik despotu Stefanu Lazareviću16 min

Škole/Fakulteti/Vrtići u blizini
- Osnovna škola (Osnovna škola Sveti Sava)6 min
- Srednja škola (Tehnička škola Mladenovac)6 min
- Vrtić (Dečiji vrtić Duga)5 min
- Fakultet (Visoka tehnološka škola strukovnih studija)39 min

- Bolnica (Specijalna bolnica za interne bolesti Mladenovac)7 min
- Klinika (Poliklinika Sveti Stefan)34 min
- Teretana (Fitness centar Mega Gym Smederevo)48 min
- Prodavnica (DIS Market)11 min
- Restoran (Restoran Angolo Di Gusto)10 min
- Kafana (Kafana Bolje mesto)14 min
- Taksi stajalište (Taxi stanica)16 min
- Autobuska stanica17 min
- Banka (Halkbank)5 min
- Pošta (Pošta 11400 (šalter))6 min
Kontakt oglašivača
Krediti OTP banke
Saznaj više
Prikazana rata odnosi se na maksimalni period otplate. Kalkulator je informativnog karaktera.
* Nakon isteka 5 godina, prelazi se na varijabilnu kamatnu stopu


