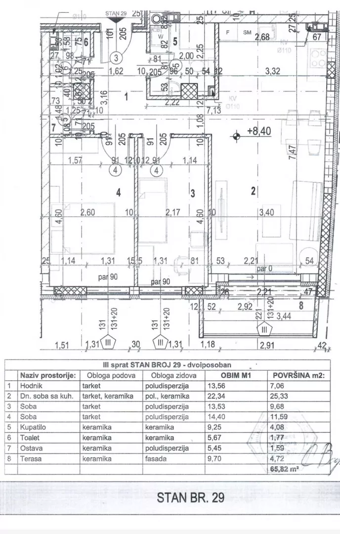
Dvoiposoban stan na prodaju, Margita, 132.000€, 66m²




132.000 €
2.000 € / m2
- Etažno grejanje
- Novo
- Prostorije: kupatilo, terasa
- Uknjiženo
- Oglas oglašava agencija pod reg. brojem 298
- 1 lift
- 1 telefonska linija
Opis oglasa
Uknjižen stan (predbeležbom) predviđenog roka useljenja septembar 2027. godine.
Sa dve spavaće sobe, savremene koncepcije i praktičnog rasporeda.
Dodatak urbanosti čine etažno grejanje na gas. Profili su aluminijumski, sigurnosna brava, podovi keramika i tarket. Stan poseduje i ostavu i odvojeni toalet.
Dva minuta kolima od centra i minut od buduće glavne sutobuske stanice, prava povoljnost za one koji rade u Beogradu.
Ponudu upotpunjuje dostupnost garažnog mesta po ceni 12.000 eura sa PDV-om i parking mesta u dvorištu zgrade po ceni 6.000 eura sa PDV-om.
Navedena cena je bez PDV-a. Kupac ima pravo na povraćaj PDV-a.
Agencijska provizija za kupca 2%.
Broj agencije u Registru posrednika 298. Mapa je informativnog karaktera, ne prikazuje tačnu lokaciju nekretnine.
*Sačuvaj oglas uz belešku i primaj obaveštenja o njihovom pojeftinjenju ili pojavljivanju sličnih
Prikaz stana na mapi
Parkovi u blizini
- Park na Trgu kralja Petra18 min
- Narodna bašta Pančevo33 min
- Park Barutana37 min

Obeležja kulture u blizini
- Kompleks Svilara7 min
- Spomenik vojvodi Stevanu Šupljikcu7 min
- Zgrada Stare bolnice7 min

Škole/Fakulteti/Vrtići u blizini
- Osnovna škola (Osnovna škola Vasa Živković)5 min
- Srednja škola (Gimnazija Uroš Predić)5 min
- Vrtić (Dečiji vrtić Crvenkapa)5 min
- Fakultet (Stomatološki fakultet Pančevo)11 min

- Bolnica (Bolnica za očne bolesti Pančevo)7 min
- Klinika (Poliklinika MD)6 min
- Teretana (Be Fit Fitness Club)13 min
- Prodavnica (Aman market)7 min
- Restoran (Restoran Citadela)7 min
- Kafana (Kafana Crni leptir)19 min
- Taksi stajalište (Taxi stanica)21 min
- Autobuska stanica (Gornji Mlin)4 min
- Banka (3 Banka)4 min
- Pošta (Pošta Pančevo 10)14 min
Kontakt oglašivača
Krediti OTP banke
Saznaj više
Prikazana rata odnosi se na maksimalni period otplate. Kalkulator je informativnog karaktera.
* Nakon isteka 5 godina, prelazi se na varijabilnu kamatnu stopu


