Dvoiposoban stan na prodaju, Margita, 140.526€, 78m²










140.526 €
1.802 € / m2
- Stan u zgradi
- Grejanje na struju
- U izgradnji
- Prostorije: ostava, terasa
- Opremljenost: Prazno - interfon, klima
- Oglas oglašava agencija pod reg. brojem 1667
- 1 parking mesto
- 1 lift
- Zgrada poseduje: video nadzor
Opis oglasa
ID 1147
Kontakt: Za više informacija ili dogovor oko razgledanja, pozovite 069... (prikaži broj telefona) .
Bez agencijske provizije - direktna cena od investitora.
Pravni nadzor - izrada i overa kupoprodajnog ugovora obezbeđena.
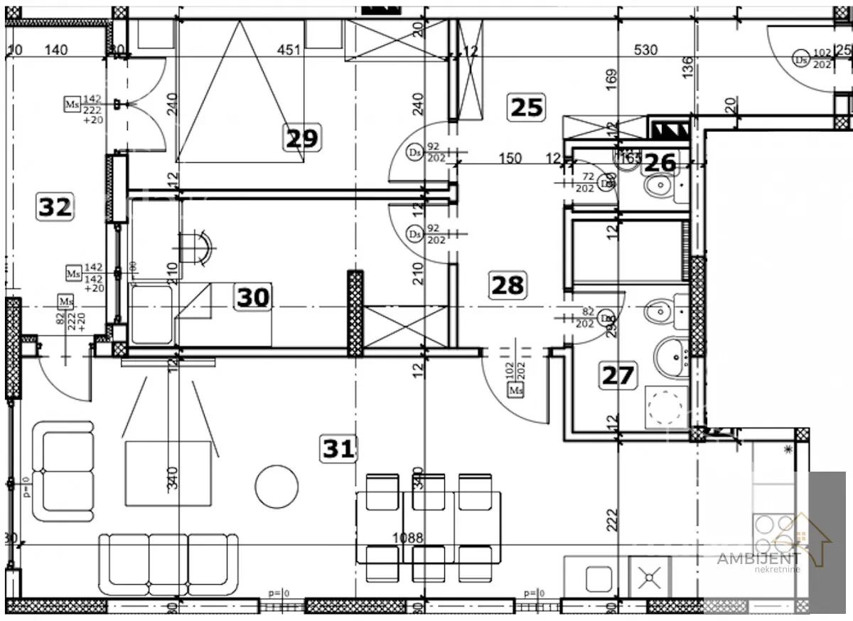
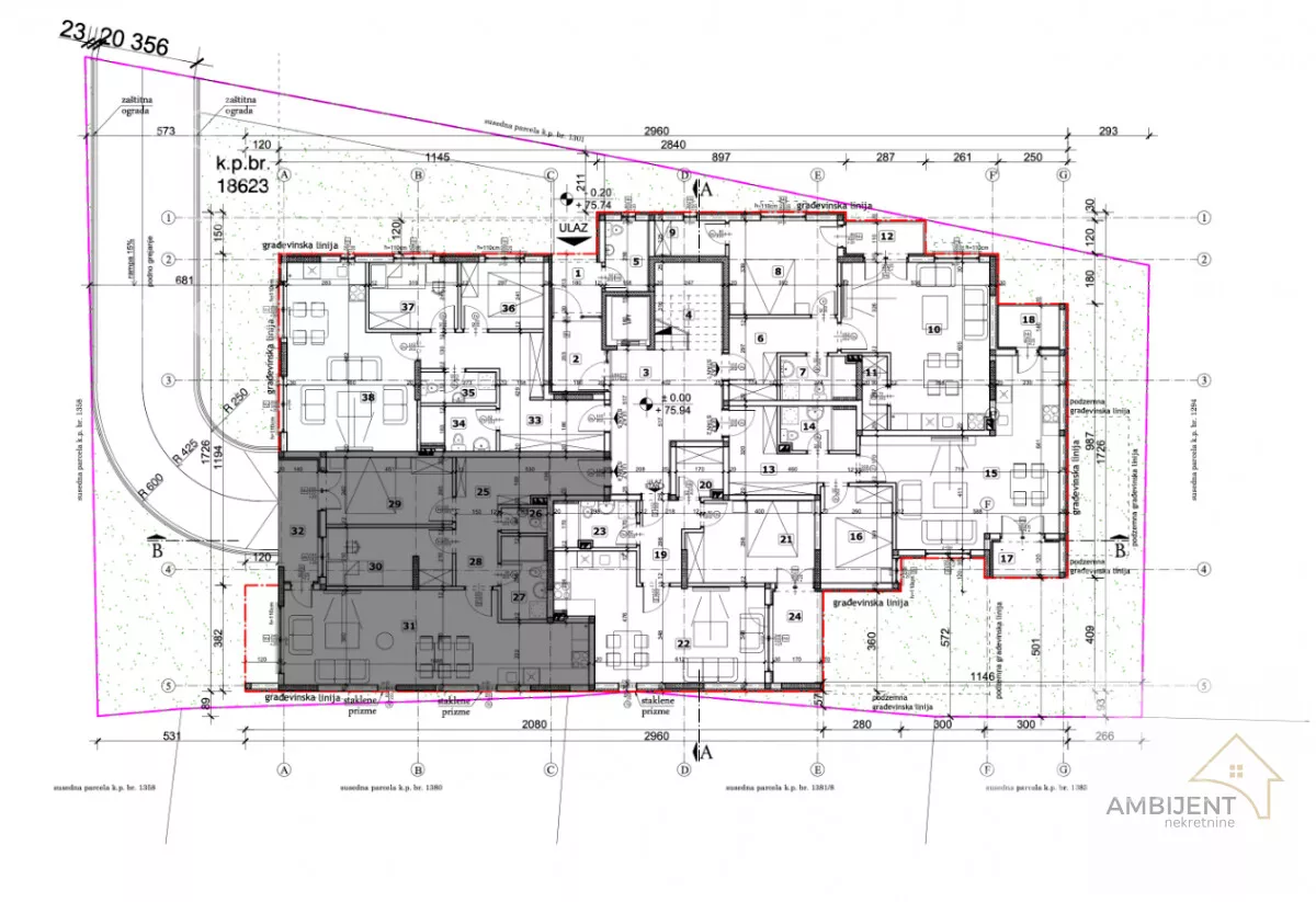
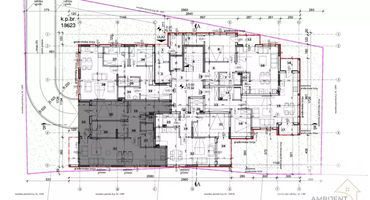
U ponudi je dvosoban stan ukupne površine 78.07 m2 u kvalitetnoj novogradnji u Pančevu, naselje Margita, kupovina direktno od investitora. Stan se odlikuje odlično organizovanim rasporedom prostorija i funkcionalnim korišćenjem svakog kvadrata; sastoji se od prostranog dnevnog boravka sa kuhinjom i trpezarijom, dve spavaće sobe, kupatila,wc,ulaznog hodnika,hodnika i terase.
Materijali i oprema visokog kvaliteta obezbeđuju udobnost i dugotrajnost; podovi su obloženi keramičkim pločicama, a stan je projektovan tako da pruži maksimalnu praktičnost i prijatan ambijent. Zgrada je moderna, sa uređenim prilazom i okruženjem.
Lokacija je jedna od najtraženijih u Pančevu; u neposrednoj blizini nalaze se škola, vrtić, marketi, apoteka, restorani, autobuska stajališta i sve što čini svakodnevni život udobnim i lakim. Naselje je mirno, uređeno i idealno za porodični život ili kao investicija za izdavanje.
Kupovina direktno od investitora; moguće rezervacije i rani odabir stanova. Za sve dodatne informacije i zakazivanje prezentacije, stojimo na raspolaganju.
Cena je bez PDV-a pravo na povraćaj PDV-a imaju kupci prvog stana
Broj u registru posrednika: 1667
*Sačuvaj oglas uz belešku i primaj obaveštenja o njihovom pojeftinjenju ili pojavljivanju sličnih
Prikaz stana na mapi
Parkovi u blizini
- Park na Trgu kralja Petra19 min
- Narodna bašta Pančevo36 min
- Park Barutana40 min

Obeležja kulture u blizini
- Spomen kompleks Stratište9 min
- Spomenik vojvodi Stevanu Šupljikcu10 min
- Zgrada Stare bolnice11 min

Škole/Fakulteti/Vrtići u blizini
- Osnovna škola (Osnovna škola Vasa Živković)5 min
- Srednja škola (Gimnazija Uroš Predić)6 min
- Vrtić (Dečiji vrtić Crvenkapa)6 min
- Fakultet (Stomatološki fakultet Pančevo)15 min

- Bolnica (Bolnica za očne bolesti Pančevo)10 min
- Klinika (Poliklinika MD)7 min
- Teretana (Be Fit Fitness Club)6 min
- Prodavnica (Aman market)8 min
- Restoran (Restoran Citadela)7 min
- Kafana (Kafana Crni leptir)20 min
- Taksi stajalište (Taxi stanica)23 min
- Autobuska stanica (Gornji Mlin)5 min
- Banka (Eurobank Direktna)6 min
- Pošta (Pošta Pančevo 10)6 min
Kontakt oglašivača
Krediti OTP banke
Saznaj više
Prikazana rata odnosi se na maksimalni period otplate. Kalkulator je informativnog karaktera.
* Nakon isteka 5 godina, prelazi se na varijabilnu kamatnu stopu


