Dvosoban stan na prodaju, Lisina, 75.000€, 48m²








75.000 €
1.563 € / m2
- Stan u zgradi
- Grejanje na norveške radijatore
- Novo
- Oglas oglašava agencija pod reg. brojem 1667
- 1 parking mesto
Opis oglasa
ID 1319
Za dodatne informacije i zakazivanje obilaska, pozovite nas na 064... (prikaži broj telefona) .
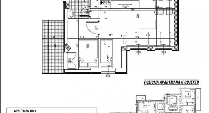
Struktura apartmana je funkcionalna i obuhvata dnevni boravak sa kuhinjom i trpezarijom, spavaću sobu, kupatilo i balkon.
Na Kopaoniku, na svega 70 metara od zgrade nalazi se nova gondola koja vodi do Pančićevog vrha. U ponudi je potpuno nov i odmah useljiv apartman u zgradi Aurora, prvoj zgradi u okviru kompleksa, sa sopstvenom skijašnicom.
Apartman ima pogled na šumu i nalazi se u mirnom okruženju koje pruža pravi planinski ugođaj. Parking u okviru kompleksa se ne naplaćuje i dostupan je svim stanarima.
Zgrada poseduje spa i velnes centar, recepciju, obezbeđenje i video nadzor, što pruža dodatnu sigurnost i komfor tokom boravka.
Agencijska provizija je 2% od kupoprodajne cene.
Broj u registru posrednika: 1667.
*Sačuvaj oglas uz belešku i primaj obaveštenja o njihovom pojeftinjenju ili pojavljivanju sličnih
Prikaz stana na mapi
Parkovi u blizini
- Pešačka staza Aska39 min

Obeležja kulture u blizini
- Spomenik Đački grob23 min
- Mesto streljanih žrtava sa grobnicom i crkvom39 min
- Srednjovekovni grad Brvenik43 min

Škole/Fakulteti/Vrtići u blizini
- Osnovna škola (Osnovna škola Sutjeska)33 min
- Srednja škola (Srednja škola Kraljica Jelena)33 min

- Prodavnica (Maxi Supermarket)33 min
- Restoran (Kafe restoran Berg)32 min
- Banka (OTP banka)32 min
- Pošta (Pošta Kopaonik)15 min
Kontakt oglašivača
Krediti OTP banke
Saznaj više
Prikazana rata odnosi se na maksimalni period otplate. Kalkulator je informativnog karaktera.
* Nakon isteka 5 godina, prelazi se na varijabilnu kamatnu stopu


