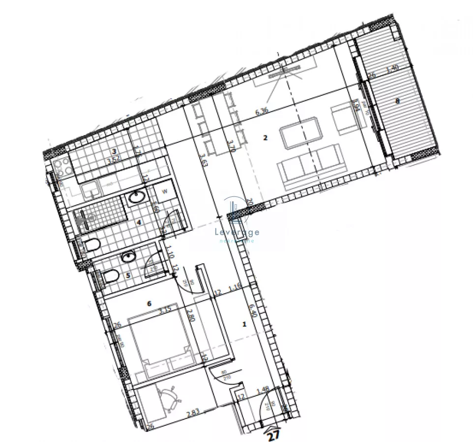
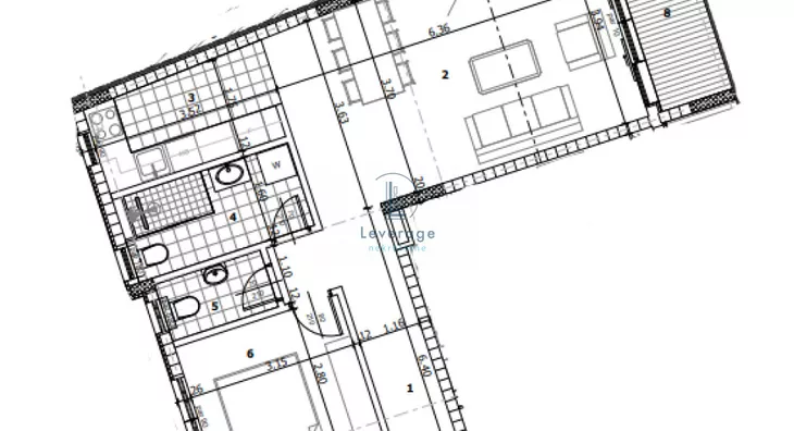
Trosoban stan na prodaju, Lion, 264.187€, 72m²




264.187 €
3.669 € / m2
- Stan u zgradi
- Novo
- Opremljenost: Prazno - internet, kanalizacija
- Oglas oglašava agencija pod reg. brojem 1152
- 1 lift
- Kanalizacija
- 1 telefonska linija
Opis oglasa
Na jednom od najtraženijih delova grada, tamo gde se spajaju mir i praktičnost, niče moderan trosoban stan koji već sada privlači pažnju budućih vlasnika. Zgrada je u izgradnji, a završetak radova planiran je za prvu polovinu 2027. godine — taman dovoljno vremena da zamislite svaki detalj svog budućeg doma.
Smešten u tihom, porodičnom okruženju, stan je okružen svime što čini svakodnevni život jednostavnijim i udobnijim. Na nekoliko minuta nalazi se sve što vam može zatrebati: prodavnice, škole, vrtići, javni prevoz, ali i zelene, rekreativne zone koje pružaju predah od gradske vreve.
Prostor je pažljivo projektovan, savremenog koncepta, građen najkvalitetnijim materijalima — od stolarije do izolacije — kako bi obezbedio dugoročnu udobnost i energetsku efikasnost. Uz stan postoji mogućnost kupovine garažnog mesta po ceni od 25.000 evra + PDV, idealno za one koji žele dodatnu sigurnost i praktičnost.
Cena stana je iskazana bez PDV-a, a kupci prvog stana imaju pravo na povraćaj PDV-a, što ovu nekretninu čini još atraktivnijom prilikom.
Dom koji raste zajedno sa vašim planovima — investicija koja se isplati, i mesto koje ćete voleti.
Agencijska provizija iznosi 2% od kupoprodajne cene.
Kontaktirajte nas za više informacija.
*Sačuvaj oglas uz belešku i primaj obaveštenja o njihovom pojeftinjenju ili pojavljivanju sličnih
Prikaz stana na mapi
Parkovi u blizini
- Park Slavujev potok7 min
- Park Urbani džep12 min
- Zvezdarska šuma20 min

Obeležja kulture u blizini
- Vozarev krst7 min
- Trećepozivačka česma9 min
- Osnovna škola Kralj Petar II Karađorđević9 min

Škole/Fakulteti/Vrtići u blizini
- Osnovna škola (Specijalna osnovna škola Dušan Dugalić)6 min
- Srednja škola (Arhitektonska tehnička škola)5 min
- Vrtić (Predškolska ustanova Zvezdara)2 min
- Fakultet (Univerzitet u Beogradu Fakultet primenjenih umetnosti)5 min

- Bolnica (MedicOne - specijalna bolnica za plastičnu, estetsku i rekonstruktivnu hirurgiju)4 min
- Klinika (Poliklinika Panacea)7 min
- Teretana (Teretana Braća Ribać)1 min
- Prodavnica (IDEA)3 min
- Restoran (Restoran Klopka)3 min
- Kafana (Pivnica Paulaner)5 min
- Taksi stajalište (Taxi stanica)8 min
- Autobuska stanica (Batutova)3 min
- Tramvajska stanica (Pijaca Zvezdara)9 min
- Trolejbuska stanica (Velimira Todorovića)6 min
- Banka (Raiffeisen Bank)6 min
- Pošta (Pošta Beograd 151)5 min
Kontakt oglašivača
Stambeni krediti

- Period otplate od
96 -360 meseca
- NKS 4.75%
EKS 5.74%
Fiksna kamatna stopa
- Bez troškova obrade kredita
Za iznos kredita ispod 30000 € poseti sajt banke.
Saznaj višestranici kreditnih kalkulatora
Keš krediti
Period otplate
13 meseci
