Dvosoban stan na prodaju, Radnička 4, 156.000€, 30m²






















































156.000 €
5.200 € / m2
- Stan u zgradi
- Centralno grejanje
- Novo
- Prostorije: kupatilo, kuhinja
- Pogled na: dvorište
- Uknjiženo
- Kupovina direktno od vlasnika
- 1 garažno mesto, garaža u sklopu zgrade
- 2 lifta
- Godina izgradnje: 2026.
Opis oglasa
Izuzetan stan sa pogledom ka reci (Novogradnja)
Retko u ponudi - Novogradnja u blizini keja: Stan je dvosobne strukture, luksuzne gradnje, orijentisan ka reci a samoj zgradi se prilazi iz mirne ulice sa minimalno saobraćaja. U pitanju je granica Zemuna i Novog Beograda (u neposrednoj blizini Zemuskog keja i hotela Jugoslavija).
Stan se nalazi na petom spratu. Na raspolaganju su dva lifta i stepenište. Zgrada, hodnik i sam stan su uradjeni luksuzno od kvalitetnih i estetski prijatnih materijala (Centralno grejanje, Alu stolarija, tarkett, 3 vrste pločica)
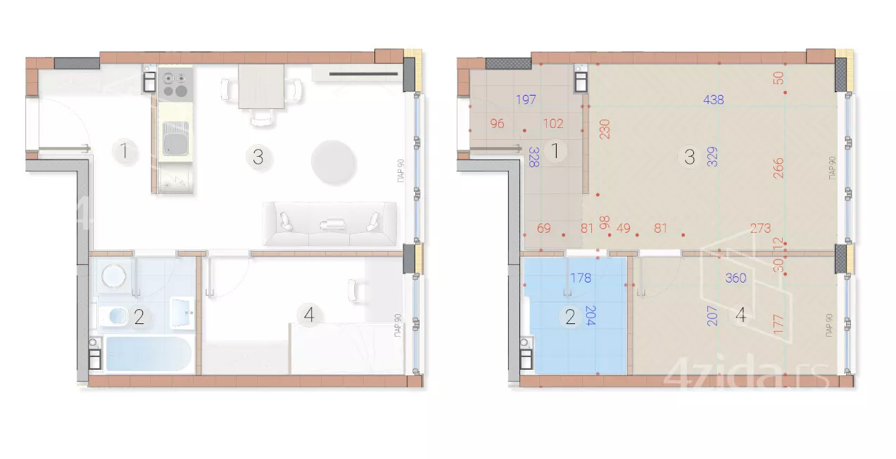
Prostorije:
- Ulaz - 4,60m²
- Kupatilo - 3,50m²
- Dnevna soba - 14,50m²
- Spavaća soba - 7,40m²
- Ukupno - 30m²
Mogućnost kupovine parking mesta u okviru zgrade od 16m² za 24.000e (standardna parking mesta po zgradama su 12m²).
U radijusu do 2km nalaze se:
Zemunski kej i reka Dunav, park Ušće, Dom Zdravlja Novi Beograd, KBC Zemun, Zemunski park, Opština Novi beograd, Institut za majku i dete, priključak za auto-put, stanica metroa po trenutnom planu izgradnje, 3 osnovne škole, 3 vrtića, 10+ trgovinskih lanaca, 30+ kafića i restorana.
VLASNIK - DIREKTNA PRODAJA
063... (prikaži broj telefona)
069... (prikaži broj telefona)
*Sačuvaj oglas uz belešku i primaj obaveštenja o njihovom pojeftinjenju ili pojavljivanju sličnih
Prikaz stana na mapi
Parkovi u blizini
- Gradski park7 min
- Park Kalvarija17 min
- Dečje igralište23 min

Obeležja kulture u blizini
- Kuća Dimitrija Davidovića4 min
- Spomen stub5 min
- Spomenik palim u narodnoj revoluciji 1941/457 min

Škole/Fakulteti/Vrtići u blizini
- Osnovna škola (Osnovna škola Svetozar Miletić)7 min
- Srednja škola (Ekonomska škola Nada Dimić)2 min
- Vrtić (Dečiji vrtić Mali snovi)4 min
- Fakultet (Poljoprivredni fakultet - Univerziteta u Beogradu)4 min

- Bolnica (Bolnica za plastičnu i rekonstruktivnu hirurgiju DE)4 min
- Klinika (Poliklinika Beograd)4 min
- Teretana (Sportska akademija Kočović)6 min
- Prodavnica (Aman market)3 min
- Restoran (Restoran Makao i žuto more)6 min
- Kafana (Maders bistro)6 min
- Taksi stajalište (Taxi stanica)5 min
- Autobuska stanica (Aleksandra Dubčeka)4 min
- Tramvajska stanica (Blok 21)47 min
- Banka (Raiffeisen Bank)3 min
- Pošta (Pošta Beograd 126)5 min
Kontakt oglašivača
Krediti OTP banke
Saznaj više
Prikazana rata odnosi se na maksimalni period otplate. Kalkulator je informativnog karaktera.
* Nakon isteka 5 godina, prelazi se na varijabilnu kamatnu stopu

