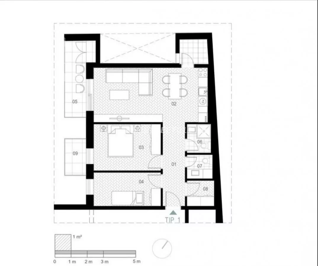
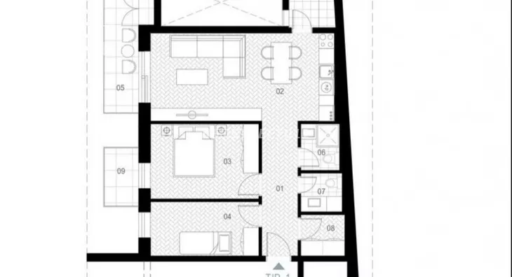
Trosoban stan na prodaju, Kalenić pijaca, 423.000€, 73m²






423.000 €
5.795 € / m2
- Stan u zgradi
- U izgradnji
- Prostorije: ostava, terasa
- Opremljenost: Prazno - interfon, klima
- Oglas oglašava agencija pod reg. brojem 1569
- 1 garažno mesto
- 1 lift
- Godina izgradnje: 2023.
- Zgrada poseduje: lođa, video nadzor
Opis oglasa
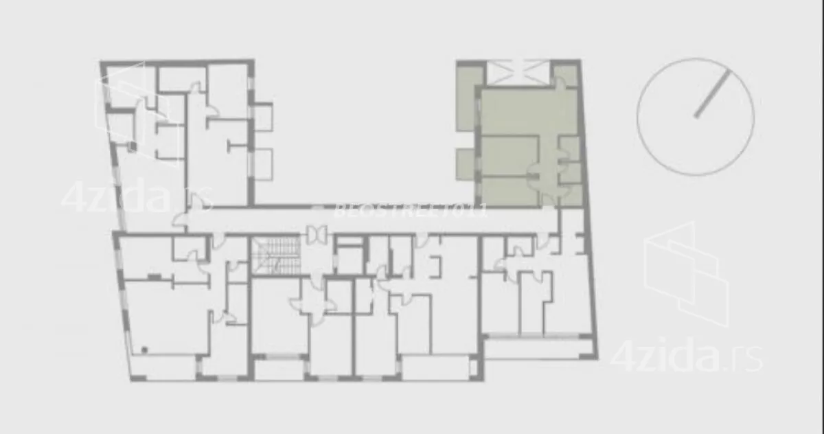
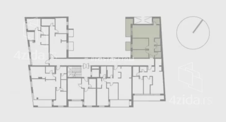
Na prestižnoj lokaciji na Vračaru, u blizini Kalenić pijace i Hrama Svetog Save, u ponudi su stanovi u modernoj luksuznoj stambeno-poslovnoj zgradi.
Dostupne kvadrature: 69 m², 70 m² i 73 m².
Objekat je građen po najvišim standardima, sa ventilisanom fasadom, aluminijumskom stolarijom sa troslojnim staklom (A+ energetski razred), hrastovim višeslojnim parketom i granitnom keramikom velikog formata. Blindirana ulazna vrata i vrhunski završni detalji garantuju maksimalan komfor i bezbednost.
Idealno za luksuzno stanovanje ili investiciju.
U,cenu stana nije uračunat PDV od 10 %
Garažno mesto- auto lift, po ceni od 40000 e
Agencijska provizija je u skladu sa opštim uslovima poslovanja
Vračar – Luxury New Development
Luxury residential units available in a prime Vračar location, near Kalenić Market and the Temple of Saint Sava.
Available apartment sizes: 69 sqm, 70 sqm and 73 sqm.
The building is constructed to the highest standards, featuring a ventilated façade, aluminum windows with triple glazing (A+ energy class), premium oak parquet flooring and large-format granite tiles. Security entrance doors ensure comfort, safety and long-term value.
Perfect for living or investment.
The price of the apartment does not include 10% VAT.
Garage space - car lift, at a price of 40,000 e
The agency commission is in accordance with the general business conditions
*Sačuvaj oglas uz belešku i primaj obaveštenja o njihovom pojeftinjenju ili pojavljivanju sličnih
Prikaz stana na mapi
Parkovi u blizini
- Park vojvode Petra Bojovića3 min
- Čuburski park6 min
- Park Mike Oklopa9 min

Obeležja kulture u blizini
- Spomenik vojvodi Petru Bojoviću3 min
- Kuća vojvode Petra Bojovića5 min
- Spomenik Ćirilu i Metodiju9 min

Škole/Fakulteti/Vrtići u blizini
- Osnovna škola (Osnovna škola Jovan Miodragović)5 min
- Srednja škola (Srednja škola Arhimed)8 min
- Vrtić (Dečiji vrtić Kućica)2 min
- Fakultet (Centar Osteopatija)4 min

- Bolnica (Specijalna bolnica za oftalmologiju Miloš Klinika)7 min
- Klinika (Poliklinika Dr Rončević)4 min
- Teretana (Spin Masters Teretane i Fitness centri)1 min
- Prodavnica (Gordana Jovanović prodavnica voća i povrća)manje od 1 min
- Restoran (Restoran Burrito Madre)1 min
- Kafana (Pejton Pub)6 min
- Taksi stajalište (Taxi stanica)1 min
- Autobuska stanica (GO Vračar)2 min
- Tramvajska stanica (Vukov spomenik)10 min
- Trolejbuska stanica (Katanićeva)5 min
- Banka (OTP banka)1 min
- Pošta (Pošta Beograd 15)2 min
Kontakt oglašivača
Krediti OTP banke
Saznaj više
Prikazana rata odnosi se na maksimalni period otplate. Kalkulator je informativnog karaktera.
* Nakon isteka 5 godina, prelazi se na varijabilnu kamatnu stopu


