Trosoban stan na prodaju, Politova, 332.000€, 83m²
Beograd, Vračar, Južni Bulevar
Prikaži mapuŠifra oglasa: 4zida-551Oglas ažuriran: pre 2 dana






332.000 €
4.000 € / m2
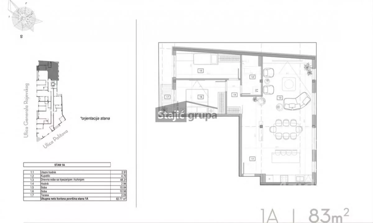
83 m²
3 sobe
1/6 spratova
- Stan u zgradi
- Centralno grejanje
- Novo
- Oglas oglašava agencija pod reg. brojem 1984
- 1 lift
Opis oglasa
Luksuzna novogradnja u Politovoj ulici na Vračaru.
Najkvalitetniji materijali, premijum kvalitet gradnje: troslojni tarkett parket, ALU stolarija, visina plafona 2.8m.
Zgrada će imati recepciju i obezbeđenje.
Mogućnost kupovine garažnog mesta po ceni od 25. 000e + pdv
U istom objektu u ponudi imamo i stanove drugih struktura i spratnosti.
Cena 4.000 e/m2+pdv
Rok završetka radova: do kraja 2026. godine
Bez agencijske provizije za kupce
*Sačuvaj oglas uz belešku i primaj obaveštenja o njihovom pojeftinjenju ili pojavljivanju sličnih
Prikaz stana na mapi
Parkovi u blizini
- Park mira Jelena Šantić6 min
- Čuburski park12 min
- Karađorđev park14 min

Obeležja kulture u blizini
- Spomenik Franše Depereu5 min
- Osnovna škola Kralj Petar II Karađorđević6 min
- Kuća Flašar7 min

Škole/Fakulteti/Vrtići u blizini
- Osnovna škola (Osnovna škola Svetozar Marković)4 min
- Srednja škola (Prva škola integrativne medicine Alvita Plus)9 min
- Vrtić (Dečiji vrtić Zvončić)2 min
- Fakultet (Univerzitet u Beogradu Fakultet bezbednosti)6 min

Zdravlje
- Bolnica (Oftalmologija Stankov)4 min
- Klinika (Poliklinika Equilibrium)9 min
- Teretana (Fitness centar Fit4Life)3 min
Hrana i piće
- Prodavnica (Sinko Market)1 min
- Restoran (Restoran Per Tutti)3 min
- Kafana (Tatar Bar)9 min
Prevoz
- Taksi stajalište (Taxi stanica)4 min
- Autobuska stanica (Maksima Gorkog)2 min
- Tramvajska stanica (Karađorđev Park)18 min
- Trolejbuska stanica (Kruševačka)12 min
Ostale ustanove
- Banka (Raiffeisen Bank)4 min
- Pošta (Pošta Beograd 32)5 min
Kontakt oglašivača
▾Reklama▾
Stambeni krediti

- Period otplate od
96 -360 meseca
- NKS 4.75%
EKS 5.74%
Fiksna kamatna stopa
- Bez troškova obrade kredita
563 € / mesečno
Saznaj višePogledaj detaljnije i menjaj uslove kreditiranja na
stranici kreditnih kalkulatora
stranici kreditnih kalkulatora
Keš krediti
RSDIznos kredita
Period otplate
13 meseciOsiguranje domaćinstva online
Osiguraj svoje domaćinstvo u slučaju požara...

