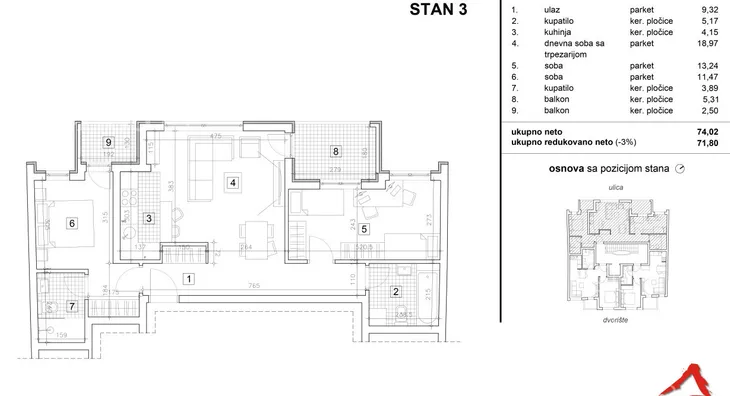
Trosoban stan na prodaju, Grbavica, 256.260€, 72m²
















256.260 €
3.559 € / m2
- Stan u zgradi
 - U izgradnji
 - Prostorije: terasa
 - Oglas oglašava agencija pod reg. brojem 174
 
- 1 garažno mesto
 
- 1 lift
 - Godina izgradnje: 2026.
 
Opis oglasa
Na prodaju je stan u modernom i ekskluzivnom stambenom objektu, smeštenom u srcu Grbavice – jedne od najtraženijih lokacija u Novom Sadu. Ova savremena zgrada broji svega 12 pažljivo osmišljenih stanova, što garantuje mir, privatnost i viši kvalitet stanovanja. Posebna pažnja posvećena je svakom detalju – od arhitektonskih rešenja do vrhunske završne obrade, uz primenu najmodernijih građevinskih standarda.
Prostor je maksimalno funkcionalan, sa odličnom organizacijom svake kvadrature, a moderna arhitektura savršeno se uklapa u urbani ambijent Grbavice. Zgrada poseduje lift što dodatno doprinosi komforu stanara. Objekat je projektovan tako da obezbedi vrhunsku zvučnu i toplotnu izolaciju, garantujući udoban boravak tokom cele godine.
U okviru kompleksa nalazi se osam parking mesta i dva garažna mesta, dok se u dvorišnom objektu nalaze tri garaže i tri ostave iz kojih lift vodi direktno do stambenih jedinica – rešenje koje spaja udobnost, sigurnost i funkcionalnost.
Ova nekretnina je idealan izbor za one koji žele kvalitetan životni prostor u urbanoj zoni sa svim pogodnostima moderne gradnje.
Više informacija:
Kontakt - 
							063...	(prikaži broj telefona)
						
Šifra - 1030826
Agencija Moj Dom, Novi Sad Reg. broj 174
(Moj Dom nekretnine,Novi Sad,Reg.br.174)
*Sačuvaj oglas uz belešku i primaj obaveštenja o njihovom pojeftinjenju ili pojavljivanju sličnih
Prikaz stana na mapi
Parkovi u blizini
- Futoški park13 min
 - Limanski park18 min
 - Dunavski park31 min
 

Obeležja kulture u blizini
- Jodna Banja9 min
 - Matičarsko zdanje11 min
 - Dvorac Eđšeg7 min
 

Škole/Fakulteti/Vrtići u blizini
- Osnovna škola (Osnovna škola Sonja Marinković)5 min
 - Srednja škola (Medicinska škola 7. april)6 min
 - Vrtić (Dečiji vrtić Zmaj)5 min
 - Fakultet (Fakultet za pravne i poslovne studije Dr Lazar Vrkatić)8 min
 

- Bolnica (Specijalna bolnica za reumatske bolesti Novi Sad)9 min
 - Klinika (Poliklinika Vejnović)6 min
 - Teretana (Fitness centar Royal Gym)9 min
 
- Prodavnica (Voće i povrće Pinćir BIO)1 min
 - Restoran (Play concept bar & restaurant)4 min
 - Kafana (Pab Pow Wow)10 min
 
- Taksi stajalište (Gradski Taxi)13 min
 - Autobuska stanica (Cara Dušana - Medicinska škola)9 min
 
- Banka (Raiffeisen Bank)7 min
 - Pošta (Pošta Novi Sad 21102)6 min
 
Kontakt oglašivača

Stambeni krediti

- Period otplate od
96 -360 meseca 
- NKS 4.75%
EKS 5.74%
Fiksna kamatna stopa 
- Bez troškova obrade kredita
 
stranici kreditnih kalkulatora
Keš krediti
Period otplate
13 meseci