Jednosoban stan na prodaju, Gradske lokacije, 75.095€, 38m²












75.095 €
1.976 € / m2
- Stan u zgradi
- Grejanje na struju
- U procesu uknjižavanja
- Oglas oglašava agencija pod reg. brojem 1403
Opis oglasa
Prilika koja se ne propušta!
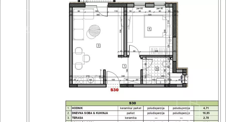
Na prodaju jednosoban stan površine 38,51m2, na drugom spratu luksuzne stambene zgrade u izgradnji, na samo nekoliko koraka od prelepog parka – idealno mesto za život u harmoniji sa prirodom i gradom.
Ovaj prestižni projekat donosi spa centar u sklopu zgrade (zatvoreni bazen i saune), kreiran da vam svakodnevno pruža osećaj odmora i relaksacije. Na raspolaganju je i mogućnost kupovine prostrane ostave za maksimalnu funkcionalnost, kao i mogućnost kupovine parking mesta.
Cena stana je 1.950evra/m2 + 10%PDV, što je ukupno 75.095 evra + PDV
Kupac prvog stana ostvaruje povraćaj PDV-a.
Cena parking mesta je 8.400 evra 20 % PDV.
Doplata za spa centar je 2.700 evra + PDV.
Završetak radova planiran je za kraj godine.
Kupac ne plaća agencijsku proviziju.
Za dodatne informacije kontaktirajte nas:
065... (prikaži broj telefona)
.
Oznaka na mapi pokazuje približnu lokaciju nekretnine, ali ne i tačnu adresu.
*Sačuvaj oglas uz belešku i primaj obaveštenja o njihovom pojeftinjenju ili pojavljivanju sličnih
Prikaz stana na mapi
Parkovi u blizini
- Japanski vrt11 min

Obeležja kulture u blizini
- Izvor lekovite vode Jezero4 min
- Izvor lekovite vode Topla voda2 min
- Izvor lekovite vode Slatina11 min

Škole/Fakulteti/Vrtići u blizini
- Osnovna škola (Osnovna škola Popinski borci)8 min
- Srednja škola (Ugostiteljsko-turistička škola)4 min
- Vrtić (Dečiji vrtić Veseljko)30 min
- Fakultet (Univerzitet u Kragujevcu Fakultet za hotelijerstvo i turizam)5 min

- Bolnica (Specijalna bolnica Merkur Vrnjačka Banja)6 min
- Klinika (Poliklinika SVS Medicus)37 min
- Teretana (Teretana Colosseum)36 min
- Prodavnica (SL market Swisslion Takovo)2 min
- Restoran (Restoran Istra)3 min
- Kafana (Pivnica Sonata)2 min
- Taksi stajalište (Palma Taxi)3 min
- Banka (Eurobank Direktna)1 min
- Pošta (Pošta Vrnjačka Banja)2 min
Kontakt oglašivača
Krediti OTP banke
Saznaj više
Prikazana rata odnosi se na maksimalni period otplate. Kalkulator je informativnog karaktera.
* Nakon isteka 5 godina, prelazi se na varijabilnu kamatnu stopu


