Dvoiposoban stan na prodaju, Gradske lokacije, 99.008€, 62m²










99.008 €
1.597 € / m2
- Stan u zgradi
- Grejanje na gas
- U izgradnji
- Prostorije: kupatilo
- Orijentacija ka: istok
- Pogled na: ulicu
- Nije uknjiženo
- Oglas oglašava agencija pod reg. brojem 2102
- 1 garažno mesto, garaža u sklopu zgrade
- 2 lifta
- Godina izgradnje: 2026.
- Zgrada poseduje: dvorište, lođa
Opis oglasa
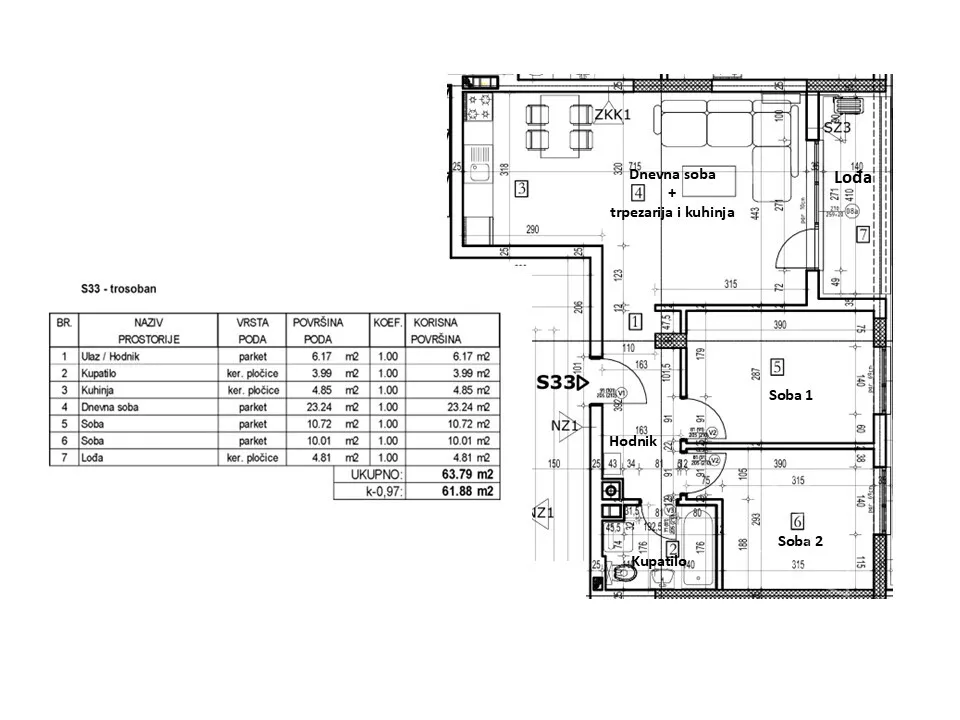
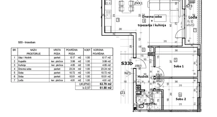
U ponudi dvoiposoban stan od 61,88m2 u novoj, kvalitetno građenoj stambeno-poslovnoj zgradi u samom centru Stare Pazove. Stan se sastoji od prostranog hodnika, komforne dnevne sobe sa trpezarijom i kuhinjom iz koje se izlazi na terasu, dve spavaće sobe i kupatila.
Objekat je projektovan po savremenim standardima gradnje i sastoji se od prizemlja, četiri sprata i povučenog petog sprata. Prizemlje je predviđeno za poslovni prostor, dok se stambeni deo nalazi od prvog sprata.
Zgrada poseduje podzemnu garažu sa zajedničkom ostavom za stanare, kao i dva lifta koja povezuju garažu sa svim spratovima do poslednjeg nivoa, što obezbeđuje dodatnu udobnost i funkcionalnost.
Gradnja je izvedena od armirano-betonske konstrukcije sa termo blokom i dodatnom izolacijom od staklene vune, uz upotrebu kvalitetnih materijala renomirane kompanije Sika.
Stanovi su opremljeni savremenim sistemima i kvalitetnom završnom obradom:
- podno grejanje na gas (svaki stan ima sopstveni kotao i brojilo)
- prvoklasni hrastov Tarkett parket u dnevnom boravku i sobama
- kvalitetna keramika u hodniku, kuhinji i kupatilu
- PVC šestokomorna stolarija sa dvoslojnim staklom i električnim podizačima roletni
- klima uređaj marke Midea u svakom stanu
Postoji mogućnost kupovine garažnog parking mesta u podzemnoj garaži, koja su dostupna po ceni od 7.500 € + PDV.
U dvorištu zgrade biće uređeno i dečije igralište, što dodatno doprinosi kvalitetu života i čini ovu nekretninu idealnom za porodično stanovanje.
Odlična lokacija u centru grada omogućava blizinu svih važnih sadržaja – škola, vrtića, prodavnica, restorana i javnog prevoza.
U ponudi je više stanova različitih kvadratura i struktura.
Cena stana je navedena bez PDV-a.
Za više informacija i zakazivanje razgledanja, kontaktirajte nas.
Katani Nekretnine tel:
060... (prikaži broj telefona)
*Sačuvaj oglas uz belešku i primaj obaveštenja o njihovom pojeftinjenju ili pojavljivanju sličnih
Prikaz stana na mapi
Parkovi u blizini
- Park Stara Pazova20 min

Obeležja kulture u blizini
- Ambar sa kotobanjom porodice Lepšanović14 min
- Ambar sa kotobanjom porodice Galečić15 min
- Dvorac Šlos15 min

Škole/Fakulteti/Vrtići u blizini
- Osnovna škola (Škola za osnovno i srednje obrazovanje Anton Skala)4 min
- Srednja škola (Gimnazija Branko Radičević)5 min
- Vrtić (Dečiji vrtić Poletarac)5 min
- Fakultet (SMATSA školski centar)28 min

- Bolnica (Klinika za lečenje bolesti zavisnosti MedTim)16 min
- Klinika (Poliklinika Nova Pazova)11 min
- Teretana (Teretana B Gym)17 min
- Prodavnica (Mere market)7 min
- Restoran (Restoran Putnik)9 min
- Autobuska stanica7 min
- Banka (OTP banka)5 min
- Pošta (Pošta Stara Pazova)6 min
Kontakt oglašivača
Krediti OTP banke
Saznaj više
Prikazana rata odnosi se na maksimalni period otplate. Kalkulator je informativnog karaktera.
* Nakon isteka 5 godina, prelazi se na varijabilnu kamatnu stopu


