Trosoban stan na prodaju, Orlovićeva, 108.700€, 82m²












108.700 €
1.326 € / m2
- Stan u zgradi
- Podno grejanje
- U izgradnji
- Prostorije: kupatilo, terasa
- Nije uknjiženo
- Oglas oglašava agencija pod reg. brojem 2025
- 1 lift
- Godina izgradnje: 2026.
Opis oglasa
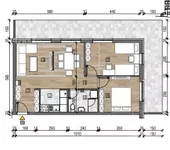
U ponudi komforan trosoban stan u izgradnji. Plan završetka leto 2026. godine. Nalazi se u Orlovićevoj ulici, u blizini Doma zdravlja, centra, pijace, igrališta, škola... Odličan kvalitet gradnje, stan je u izgranji adaptiran i proširen. Stambeni deo od 70,5m2 se sastoji od dve velike spavaće sobe, dnevnog boravka sa kuhinjom i trpezarijom, predsoblja i kupatila. Terasa zauzima 11,5m2 i gleda na severnu stranu. Podno grejanje na gas i klima se doplaćuju 2.500e zajedno. Za kupce prve nekretnine mogućnost povrata PDV-a, takođe mogućnost kupovine putem stambenog kredita. Gledanje moguće svaki dan.
Agencijska provizija uračunata u cenu.
Pozovite za više informacija - 063... (prikaži broj telefona)
*Sačuvaj oglas uz belešku i primaj obaveštenja o njihovom pojeftinjenju ili pojavljivanju sličnih
Prikaz stana na mapi
Parkovi u blizini
- Izletište Borkovac14 min
- Veliki park Ruma29 min
- Gimnazijski park Ruma33 min

Obeležja kulture u blizini
- Spomenik revolucije4 min
- Spomenik Kipovi8 min
- Spomenik Milici Stojadinović Srpkinji20 min

Škole/Fakulteti/Vrtići u blizini
- Osnovna škola (Osnovna škola Zmaj Jova Jovanović)6 min
- Srednja škola (Gimnazija Stevan Puzić)9 min
- Vrtić (Dečiji vrtić Kameni)26 min
- Fakultet (Visoka škola strukovnih studija za vaspitače i poslovne informatičare Sremska Mitrovica - Sirmijum)34 min

- Bolnica (Specijalna bolnica za rehabilitaciju Termal Vrdnik)22 min
- Klinika (Poliklinika Nedić)4 min
- Teretana (Joga Yogaja Studio)38 min
- Prodavnica (Supermarket Univerexport)10 min
- Restoran (Restoran Borkovačko sokače)4 min
- Kafana (Pab Dolina)27 min
- Autobuska stanica (Autobuska centar)22 min
- Banka (Banca Intesa)19 min
- Pošta (Pošta Ruma)15 min
Kontakt oglašivača
Krediti OTP banke
Saznaj više
Prikazana rata odnosi se na maksimalni period otplate. Kalkulator je informativnog karaktera.
* Nakon isteka 5 godina, prelazi se na varijabilnu kamatnu stopu


