Dvoiposoban stan na prodaju, Gradske lokacije, 102.000€, 68m²


102.000 €
1.500 € / m2
- Stan u zgradi
- Grejanje na gas
- U izgradnji
- Prostorije: kupatilo, toalet, terasa
- U procesu uknjižavanja
- Oglas oglašava agencija pod reg. brojem 1422
Opis oglasa
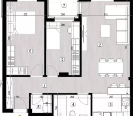
Na prodaju stan u izgradnji u Rumi, u ulici Zmaj Jovinoj. Pozicioniran je u prizemlju stambenog objekta, a po strukturi je dvoiposoban. Veoma prostran i svetao stan.
Planiran rok za završetak gradnje je kraj 2027. godine. Mogućnost povraćaja PDV-a za kupce prvog stana. Kreditni kupci-cena 1600EUR+PDV Keš kupci- cena 1500EUR+PDV
https://nekretninetesic.rs/property/stan-u-izgradnji-u-rumi-68m2/
https://nekretninetesic.rs/property/stan-u-izgradnji-u-rumi-68m2/
*Sačuvaj oglas uz belešku i primaj obaveštenja o njihovom pojeftinjenju ili pojavljivanju sličnih
Kontakt oglašivača
Krediti OTP banke
Saznaj više
Prikazana rata odnosi se na maksimalni period otplate. Kalkulator je informativnog karaktera.
* Nakon isteka 5 godina, prelazi se na varijabilnu kamatnu stopu


