Dvosoban stan na prodaju, Gradske lokacije, 68.800€, 49m²










68.800 €
1.404 € / m2
- Stan u zgradi
- Grejanje na gas
- Novo
- Prostorije: terasa
- Opremljenost: Prazno - interfon, klima, kanalizacija
- Oglas oglašava agencija pod reg. brojem 1942
- 1 parking mesto
- 1 lift
- Kanalizacija
- Godina izgradnje: 2027.
Opis oglasa
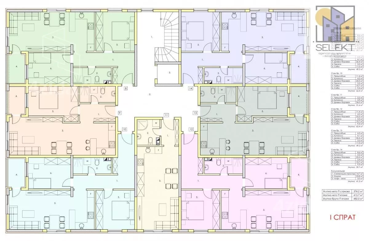
Započeta je izgradnja nove stambene zgrade koja objedinjuje moderan dizajn, funkcionalnost i udobnost savremenog života.
U ponudi su stanovi različitih struktura i kvadratura – od 31, 6m² do 67, 4m², kvalitetne i sigurne gradnje.
Cena: 1. 400 €/m² sa PDV-om
PARKING MESTO JE UKLJUČENO U CENU!
Mogućnost kupovine garažnog mesta u podrumu zgrade!
Gradnja se izvodi po najvišim standardima:
• Termo blok + stiropor izolacija 10cm – odlična toplotna i zvučna zaštita
• Podno grejanje – keramika na podovima za savršen komfor
• Grejanje na gas za stanove preko 50m², kotao na struju za manje stanove
• Ugrađen vodomer i visoka energetska efikasnost
• Klima uređaj u svakom stanu
• Lift u zgradi
• PVC stolarija vrhunskog kvaliteta i alu roletne sa elektro podizačima.
Zgrada se nalazi u mirnom delu grada, savršenom za porodičan život, a ipak na samo 500 metara od centra.
Izuzetna energetska efikasnost i niski troškovi održavanje.
Mogućnost kupovine i garažnog mesta, cena je 13000eur.
Odlična investicija – i za život i za izdavanje.
NAŠE PREPORUKE!
*Sačuvaj oglas uz belešku i primaj obaveštenja o njihovom pojeftinjenju ili pojavljivanju sličnih
Prikaz stana na mapi
Parkovi u blizini
- Park Đurđevo brdo24 min

Obeležja kulture u blizini
- Spomenik Jovanči Miciću7 min
- Crkva Svete Bogorodice36 min
- Spomenik Despotu Stefanu37 min

Škole/Fakulteti/Vrtići u blizini
- Osnovna škola (Osnovna škola 17. oktobar)6 min
- Srednja škola (Privatna srednja škola Dositej Obradović)8 min
- Vrtić (Dečiji vrtić Pionir)manje od 1 min
- Fakultet (Univerzitet u Kragujevcu Fakultet pedagoških nauka u Jagodini)7 min

- Bolnica (Opšta bolnica Jagodina)6 min
- Klinika (Poliklinika CT05)3 min
- Teretana (Cafe bar & gym Mr. Hill)26 min
- Prodavnica (Maxi Supermarket)4 min
- Restoran (Restoran Mali raj)4 min
- Kafana (Kafana Legenda)3 min
- Taksi stajalište (Maxi Taxi)33 min
- Banka (Raiffeisen Bank)3 min
- Pošta (Pošta Jagodina 1)7 min
Kontakt oglašivača
Krediti OTP banke
Saznaj više
Prikazana rata odnosi se na maksimalni period otplate. Kalkulator je informativnog karaktera.
* Nakon isteka 5 godina, prelazi se na varijabilnu kamatnu stopu


