Dvosoban stan na prodaju, Gradske lokacije, 84.240€, 62m²




84.240 €
1.359 € / m2
- Stan u zgradi
- Grejanje na gas
- Novo
- Prostorije: terasa
- Oglas oglašava agencija pod reg. brojem 2006
- 1 lift
- Godina izgradnje: 2026.
Opis oglasa
EKSKLUZIVNA NOVOGRADNJA – POVRAĆAJ PDV-a!
Tražite savršeno mesto za život ili sigurnu investiciju?
Predstavljamo vam modernu zgradu u izgradnji, na izuzetnoj lokaciji – blizu centra, a ipak uvučena od buke i gužve, idealna za mir, komfor i kvalitetan život.
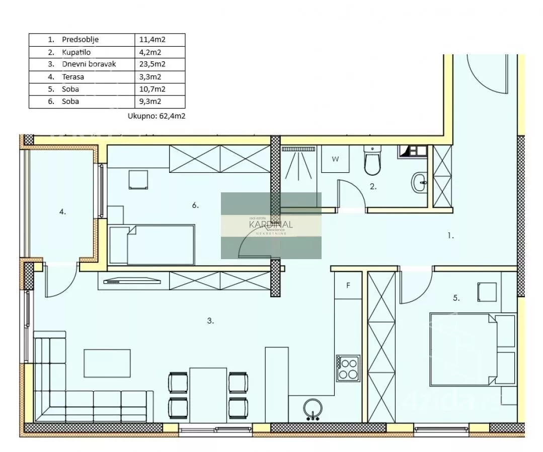
Strukturu stana čine:
-predsoblje
-kupatilo
-dnevni boravak
-terasa
-dve spavaće sobe;
Ukupna površina stana je 62,4 m2.
Cena po kvadratnom metru iznosi 1.350 € sa PDV-om..
Trenutno dostupni stanovi nalaze se u prizemlju, na prvom, drugom, trećem i četvrtom spratu.
GLAVNE PREDNOSTI:
✔ Povraćaj PDV-a – ogromna ušteda za kupce!
✔ Sopstveni gasni kotao – maksimalna kontrola i niska cena grejanja
✔ Savremena zgrada od 5 spratova
✔ Parking ispred zgrade – uvek siguran i dostupan prostor
✔ Vrhuska lokacija – blizina centra, prodavnica, prevoza, a ipak zaklonjeno i mirno
✔ U izgradnji, mogućnost biranja strukture i rasporeda
✔ Rok završetka: 2027. godina
Investirajte pametno – izaberite dom u kojem se luksuz, funkcionalnost i praktičnost spajaju u idealnu celinu.
Broj stanova je ograničen – rezervišite svoj na vreme!
Zakažite razgledanje u terminu kada Vama najviše odgovara!
0
038... (prikaži broj telefona)
,
0
038... (prikaži broj telefona)
Dostupni smo Vam non stop!
24 / 7 / 365
i subotom i nedeljom i praznicima!
*Sačuvaj oglas uz belešku i primaj obaveštenja o njihovom pojeftinjenju ili pojavljivanju sličnih
Prikaz stana na mapi
Parkovi u blizini
- Park Đurđevo brdo24 min

Obeležja kulture u blizini
- Spomenik Jovanči Miciću7 min
- Crkva Svete Bogorodice36 min
- Spomenik Despotu Stefanu37 min

Škole/Fakulteti/Vrtići u blizini
- Osnovna škola (Osnovna škola 17. oktobar)6 min
- Srednja škola (Privatna srednja škola Dositej Obradović)8 min
- Vrtić (Dečiji vrtić Pionir)manje od 1 min
- Fakultet (Univerzitet u Kragujevcu Fakultet pedagoških nauka u Jagodini)7 min

- Bolnica (Opšta bolnica Jagodina)6 min
- Klinika (Poliklinika CT05)3 min
- Teretana (Cafe bar & gym Mr. Hill)26 min
- Prodavnica (Maxi Supermarket)4 min
- Restoran (Restoran Mali raj)4 min
- Kafana (Kafana Legenda)3 min
- Taksi stajalište (Maxi Taxi)33 min
- Banka (Raiffeisen Bank)3 min
- Pošta (Pošta Jagodina 1)7 min
Kontakt oglašivača
Krediti OTP banke
Saznaj više
Prikazana rata odnosi se na maksimalni period otplate. Kalkulator je informativnog karaktera.
* Nakon isteka 5 godina, prelazi se na varijabilnu kamatnu stopu


