Četvorosoban stan na prodaju, Mihaila Avramovića, 608.000€, 160m²








































608.000 €
3.800 € / m2
- Stan u zgradi
- Grejanje na struju
- Potrebno renoviranje
- Prostorije: kupatila (2), terase (3+)
- Uknjiženo
- Oglas oglašava agencija pod reg. brojem 1674
Opis oglasa
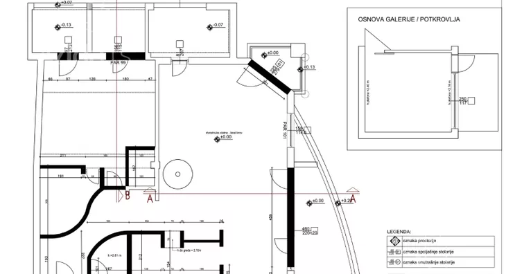
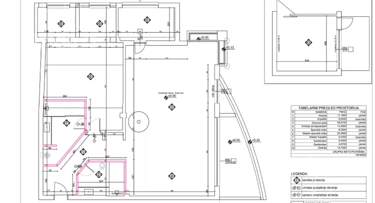
Prodaje se izuzetno lep i prostran četvorosoban stan sa galerijom na jednoj od najlepših lokacija u Beogradu.
Stan ima površinu od 160m2, dvostrano je orijentisan i sadrži hodnik, veliku dnevnu sobu sa kuhinjom, tri spavaće sobe od kojih je jedna master spavaća soba koja poseduje svoje kupatilo, dok se jedna spavaća soba nalazi na galeriji, gostinsko kupatilo i četiri terase.
Na stanu su započeti radovi na rekonstrukciji prema planu arhitekte i kupac može uz kupljeni stan preuzeti projekat čije rešenje se nalazi u fotografijama ovog oglasa.
U dvorištu zgrade se nalazi pregršt zelenila i prostor za odmor i uživanje.
Posrednička naknada je u skladu sa Opštim uslovima poslovanja Posrednika LOCUS NEKRETNINE DOO, registar posrednika broj 1674.
Za sve dodatne informacije možete nas posetiti na lokaciji Miloša Obilića broj 7, Čačak, kontaktirati na broj telefona 066... (prikaži broj telefona) kao i putem mail-a [email protected]
*Sačuvaj oglas uz belešku i primaj obaveštenja o njihovom pojeftinjenju ili pojavljivanju sličnih
Prikaz stana na mapi
Obeležja kulture u blizini
- Dvorac Špicerovih5 min
- Spomenik narodnom heroju iz Drugog svetskog rata Stevanu Petroviću Briletu5 min
- Ostaci srednjovekovnog utvrđenog manastira Dombo11 min

Škole/Fakulteti/Vrtići u blizini
- Osnovna škola (Osnovna škola Jovan Grčić Milenko)5 min
- Srednja škola (Tehnička škola Mileva Marić Ajnštajn)28 min
- Vrtić (Dečiji vrtić Čarobnjak)15 min
- Fakultet (Educons Univerzitet)18 min

- Bolnica (Specijalna bolnica za rehabilitaciju Termal Vrdnik)26 min
- Klinika (Poliklinika NS Lab)6 min
- Teretana (Fitness centar B Fit)30 min
- Prodavnica (Expeto market)7 min
- Restoran (Restoran Beli čin)16 min
- Autobuska stanica (Beocin Selo VII - Spomenik)7 min
- Banka (Erste Bank)5 min
- Pošta (Pošta Beočin)5 min
Kontakt oglašivača
Stambeni krediti

- Period otplate od
96 -360 meseca
- NKS 4.75%
EKS 5.74%
Fiksna kamatna stopa
- Bez troškova obrade kredita
stranici kreditnih kalkulatora
Keš krediti
Period otplate
13 meseci
