Petosoban stan na prodaju, Banatska, 255.000€, 92m²






































255.000 €
2.772 € / m2
- Podno grejanje
- Novo
- Prostorije: kupatilo
- Oglas oglašava agencija pod reg. brojem 1308
- Godina izgradnje: 2019.
- 1 telefonska linija
Opis oglasa
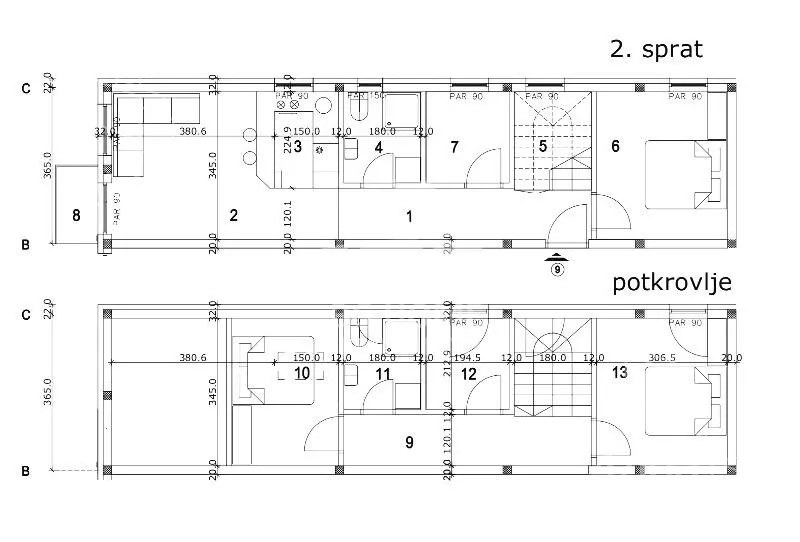
5.0, 92m2, terasa, podno grejanje, II/III, ostava, telefon, interfon, pdrum, parking. Donji nivo 49m2 uknjiženo, gornji nivo predat za upis prava svojine.
Lep svetao stan iz dva nivoa : donji nivo se sastoji od dnevnog boravka sa kuhinjom, terasom, kupatilom, spavaće sobe i garderoberom.
gornji nivo se sastoji od tri spavaće sobe i kupatilom.
Grejanje je podno na toplotne pumpe, zimi grejanje a leti hlađenje.
Prodaje se sa komplet ugradnim nameštajem i tehnikom.
Stanu pripada ostava od 7m2 koje ulaze u cenu stana. Cena parking mesta iznosi 6.000 evra.
Novogradnja useljena 2019. godine.
Kontakt 060... (prikaži broj telefona)
Broj u registru posrednika 1308
Agencijska provizija 2%
*Sačuvaj oglas uz belešku i primaj obaveštenja o njihovom pojeftinjenju ili pojavljivanju sličnih
Prikaz stana na mapi
Parkovi u blizini
- Dečje igralište15 min
- Dečje igralište16 min
- Dečje igralište16 min

Obeležja kulture u blizini
- Livnica Pantelić13 min
- Kuća porodice Karamata13 min
- Kula Sibinjanin Janka Gardoš13 min

Škole/Fakulteti/Vrtići u blizini
- Osnovna škola (Specijalna osnovna škola Radivoj Popović)4 min
- Srednja škola (Saobraćajno tehnička škola)5 min
- Vrtić (Dečiji vrtić Povratak prirodi)5 min
- Fakultet (Univerzitet u Beogradu Geografski fakultet)6 min

- Bolnica (Bolnica za lečenje bolesti zavisnosti Dr Vorobjev)6 min
- Klinika (Poliklinika O2)10 min
- Teretana (Fitness centar Vulkan Gym)4 min
- Prodavnica (Market Maloni)5 min
- Restoran (Restoran Mačkov podrum)6 min
- Kafana (Kafana Biblioteka kod Majora)10 min
- Taksi stajalište (Taxi stanica)9 min
- Autobuska stanica (Bačka)5 min
- Banka (Alta Banka Altina)5 min
- Pošta (Pošta Beograd 82)5 min
Kontakt oglašivača
Krediti OTP banke
Saznaj više
Prikazana rata odnosi se na maksimalni period otplate. Kalkulator je informativnog karaktera.
* Nakon isteka 5 godina, prelazi se na varijabilnu kamatnu stopu


