Dvosoban stan na prodaju, Gornji Grad, 111.989€, 61m²








111.989 €
1.836 € / m2
- Etažno grejanje
- Novo
- Prostorije: kupatilo, terasa
- Opremljenost: Prazno - internet, interfon, klima
- Oglas oglašava agencija pod reg. brojem 1288
- 1 garažno mesto
- 1 parking mesto
- 1 lift
- Kablovska
- 1 telefonska linija
Opis oglasa
Moderan stan u srcu Pančeva – Izuzetna gradnja, luksuz i udobnost!
Prilika koju ste čekali! U ponudi je luksuzan stan u neposrednoj blizini Gornjeg grada, koji će vam pružiti savršen balans između komfora, sigurnosti i savremene gradnje. Idealan za porodice i investitore!
Osnovne karakteristike:
Savremena gradnja s visokokvalitetnim materijalima
6-komorna PVC stolarija za termo-akustičnu izolaciju
Troslojno staklo za maksimalnu energetsku efikasnost
Kamena vuna 10 cm za izuzetnu izolaciju i uštede
Demit fasada s listelom – estetski privlačna i dugotrajna zaštita
Elegantne pločice u svim prostorijama – moderan dizajn
Podno grejanje za dodatni luksuz i komfor
Mogućnost kupovine podzemnih i nadzemnih garažnih mesta
Savršen za vašu budućnost:
Stan je u sivoj fazi i biće spreman do avgusta za kreditne kupce, kada će zgrada biti na 80% izgrađena. Do tada, isključivo gotovinska kupovina! Srećni budući vlasnici dobiće moderan, energetski efikasan prostor koji zadovoljava najviše standarde.
Lokacija: Idealna blizina Gornjeg grada, sa svim potrebnim sadržajem na dohvat ruke. Uživajte u miru i tišini, a ipak biti u srcu grada!
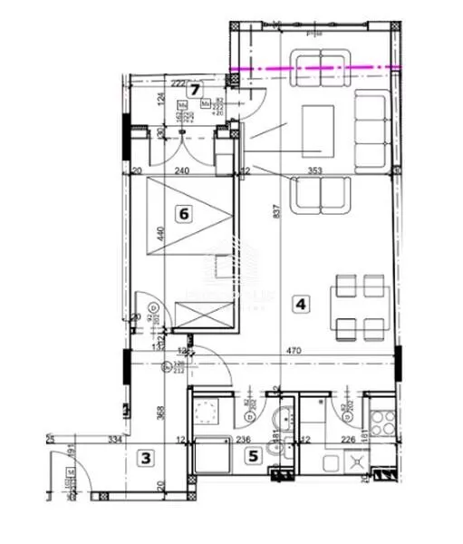
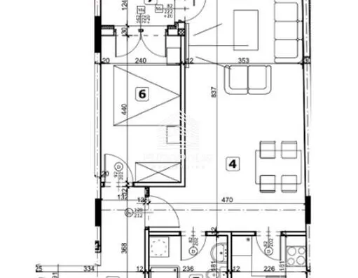
Raspored prostorija: ulazni hodnik, dnevna soba sa kuhinjiom i trpezarijom, soba, terasa, kupatilo.
Ne propustite priliku – Rezervišite svoj stan odmah i postanite deo ove jedinstvene zajednice.
Agencijska nadoknada iznosi 2%
.
*Sačuvaj oglas uz belešku i primaj obaveštenja o njihovom pojeftinjenju ili pojavljivanju sličnih
Prikaz stana na mapi
Parkovi u blizini
- Park na Trgu kralja Petra16 min
- Narodna bašta Pančevo28 min
- Park Barutana32 min

Obeležja kulture u blizini
- Spomenik vojvodi Stevanu Šupljikcu6 min
- Zgrada Stare bolnice6 min
- Kompleks Svilara7 min

Škole/Fakulteti/Vrtići u blizini
- Osnovna škola (Osnovna škola Vasa Živković)6 min
- Srednja škola (Gimnazija Uroš Predić)5 min
- Vrtić (Dečiji vrtić Bubamara)3 min
- Fakultet (Stomatološki fakultet Pančevo)10 min

- Bolnica (Bolnica za očne bolesti Pančevo)6 min
- Klinika (Poliklinika MD)5 min
- Teretana (Be Fit Fitness Club)12 min
- Prodavnica (Aman market)manje od 1 min
- Restoran (Restoran Citadela)8 min
- Kafana (Kafana Crni leptir)19 min
- Taksi stajalište (Taxi stanica)16 min
- Autobuska stanica (BG Put)8 min
- Banka (3 Banka)13 min
- Pošta (Pošta Pančevo 10)13 min
Kontakt oglašivača
Krediti OTP banke
Saznaj više
Prikazana rata odnosi se na maksimalni period otplate. Kalkulator je informativnog karaktera.
* Nakon isteka 5 godina, prelazi se na varijabilnu kamatnu stopu






















