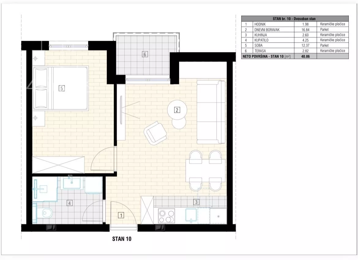
Jednoiposoban stan na prodaju, Erdoglija, 75.200€, 41m²




75.200 €
1.834 € / m2
- Stan u zgradi
- Grejanje na gas
- U izgradnji
- Prostorije: kupatilo, terasa
- U procesu uknjižavanja
- Oglas oglašava agencija pod reg. brojem 1918
- 1 lift
Opis oglasa
Izuzetna prilika. Stan u izgradnji od renomiranog investitora u jednoj od najlepših ulica u Erdoglij, u blizini ambulante br 5. Izuzetan kvalitet gradnje i završnih radova. Grejanje podno, gas. Po strukturi jednoiposoban, na drugom spratu, pogodan i kao investicija za izdavanje i za miran porodični život. Iskazana cena je bez PDV-a, za dinamiku plaćanja: 50% prilikom potpisivanja predugovora, 30% kada se ukrovi zgrada i 20% prilikom završetka izgradnje i potpisivanja Ugovora i Mogućnost kupovine garažnog mesta.
*Sačuvaj oglas uz belešku i primaj obaveštenja o njihovom pojeftinjenju ili pojavljivanju sličnih
Prikaz stana na mapi
Kontakt oglašivača
Krediti OTP banke
Saznaj više
Prikazana rata odnosi se na maksimalni period otplate. Kalkulator je informativnog karaktera.
* Nakon isteka 5 godina, prelazi se na varijabilnu kamatnu stopu


