Trosoban stan na prodaju, Durlan, 142.030€, 65m²




142.030 €
2.185 € / m2
- Stan u zgradi
- Novo
- Oglas oglašava agencija pod reg. brojem 2126
Opis oglasa
EDIT NEKRETNINE/ PRODAJA
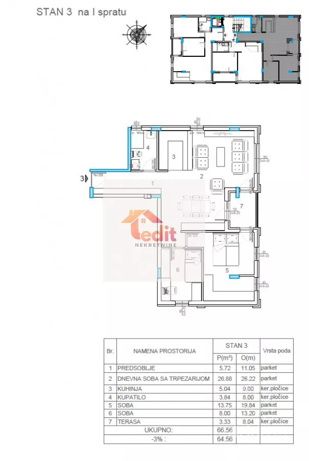
Izdvajamo trosoban stan površine 64,56 m² u savremenom stambenom projektu u traženom i dobro povezanom delu grada, u neposrednoj blizini Knjaževačke ulice.
Stan se nalazi na I spratu i raspolaže funkcionalno organizovanim prostorom: ulazni hodnik, dnevni boravak sa kuhinjom i trpezarijom, dve spavaće sobe, kupatilo i terasa.
Savremena gradnja i kvalitetni materijali garantuju dugoročnu isplativost i udobnost stanovanja. Objekat je opremljen video nadzorom i liftom, PVC stolarijom sa niskoemisionim staklima i aluminijumskim roletnama, dok etažno grejanje na struju pruža potpunu kontrolu potrošnje.
Unutrašnja obrada uključuje prvoklasni parket, kvalitetna unutrašnja i sigurnosna vrata, granitne pločice renomiranih proizvođača, protivklizne terase i moderne konzolne WC šolje sa ugradnim vodokotlićima.
Objekat se nalazi u blizu škole, vrtića, parka i svih važnih sadržaja.
Kupovina je bez provizije, po ceni od 2.000 €/m² + PDV.
Za kupce koji ispunjavaju uslov postoji mogućnost povraćaja PDV-a.
Dostupna su i parking mesta .
Planirani završetak radova: avgust 2027. godine. Stan je idealna prilika za porodice,.
Ne propustite priliku – kontaktirajte nas odmah i osigurajte svoj stan u ovoj modernoj zgradi!
Informacije : 063... (prikaži broj telefona)
Agencija EDIT 018 DOO, Reg.br.2126
*Sačuvaj oglas uz belešku i primaj obaveštenja o njihovom pojeftinjenju ili pojavljivanju sličnih
Prikaz stana na mapi
Parkovi u blizini
- Park Svetog Save19 min
- Park složnih komšija20 min
- Park heroja NOB-a30 min

Obeležja kulture u blizini
- Ranohrišćanska grobnica7 min
- Ranohrišćanska bazilika8 min
- Ćele kula10 min

Škole/Fakulteti/Vrtići u blizini
- Osnovna škola (Osnovna škola Čegar)9 min
- Srednja škola (Trgovinska škola Niš)9 min
- Vrtić (Dečiji vrtić Meca Dobrica)8 min
- Fakultet (Fakultet za pravne i poslovne studije Dr Lazar Vrkatić)9 min

- Bolnica (Bolnica Đorić)7 min
- Klinika (Family Medica poliklinika)4 min
- Teretana (Fitness centar TNT Gym)4 min
- Prodavnica (Maxi Supermarket)1 min
- Restoran (Restoran President Lux)8 min
- Kafana (Kafana Stari ambar)4 min
- Taksi stajalište (Duga taksi)18 min
- Autobuska stanica (RK Sinđelić)1 min
- Banka (Poštanska štedionica)3 min
- Pošta (Pošta Niš 3)2 min
Kontakt oglašivača
Krediti OTP banke
Saznaj više
Prikazana rata odnosi se na maksimalni period otplate. Kalkulator je informativnog karaktera.
* Nakon isteka 5 godina, prelazi se na varijabilnu kamatnu stopu

