Četvorosoban stan na prodaju, Knjaževačka, 253.000€, 115m²










253.000 €
2.200 € / m2
- Etažno grejanje
- U izgradnji
- Prostorije: kupatila (2), terase (2)
- Opremljenost: interfon
- Oglas oglašava agencija pod reg. brojem 1158
- 1 garažno mesto
- 1 lift
- Zgrada poseduje: prilaz za invalide
Opis oglasa
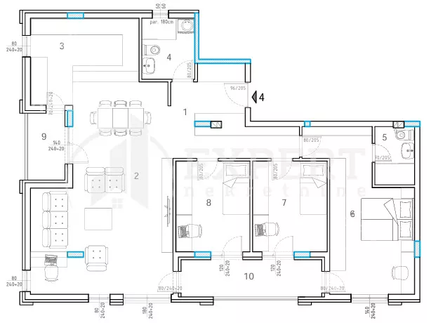
Na prodaju stan u novogradnji u blizini Rode, projektovane površine 115 Mm2. Nalazi se na jednoj od najpopularnijih lokacija za porodični život zbog blizine škole, vrtića i svih potrebnih infrastrukturnih objekata. Sastoji se od ulaznog hodnika, dnevnog boravka sa trpezarijom, kuhinje, tri spavaće sobe,dva kupatila i dve terase.Stambeno-poslovni objekat je P+4, izgrađen po svim savremenim standardima, Spoljašnja stolarija je PVC sa roletnama sa elektropodizačima,unutrašnja od medijapana sa sigurnosnim ulaznim vratima. Na podovima je troslojni tarket parket dok je keramika u kuhinji i kupatilu velikih dimenzija, prve klase.Spoljašnja izolacija je 10cm debljine, na podovima i između stanova postoji zvučna izolacija. Grejanje je etažno sa kotlom na struju i ugrađenim grejnim telima. Svakom stanu pripada ostava u podrumu zgrade dok se parking mesto dodatno naplaćuje. Moguća je kupovina putem stambenog kredita. Za kupce prvog stana postoji povrat PDV-a. Rok završetka je septembar 2027. godine. Ovo je samo deo naše ponude. Za više informacija, stojimo vam na raspolaganju.
*Sačuvaj oglas uz belešku i primaj obaveštenja o njihovom pojeftinjenju ili pojavljivanju sličnih
Prikaz stana na mapi
Parkovi u blizini
- Park Svetog Save24 min
- Park složnih komšija29 min
- Park heroja NOB-a38 min

Obeležja kulture u blizini
- Ranohrišćanska grobnica9 min
- Ranohrišćanska bazilika10 min
- Ćele kula11 min

Škole/Fakulteti/Vrtići u blizini
- Osnovna škola (Osnovna škola Čegar)6 min
- Srednja škola (Trgovinska škola Niš)8 min
- Vrtić (Dečiji vrtić Mazza)10 min
- Fakultet (Univerzitet u Nišu Medicinski fakultet)10 min

- Bolnica (Bolnica Đorić)5 min
- Klinika (Poliklinika Bocokić)8 min
- Teretana (Fitness centar TNT Gym)7 min
- Prodavnica (TSV Diskont)2 min
- Restoran (Restoran Duga Noć)4 min
- Kafana (Kafana Stari ambar)13 min
- Taksi stajalište (Duga taksi)26 min
- Autobuska stanica (Dom Duško Radović)3 min
- Banka (Poštanska štedionica)5 min
- Pošta (Pošta Niš 3)10 min
Kontakt oglašivača
Krediti OTP banke
Saznaj više
Prikazana rata odnosi se na maksimalni period otplate. Kalkulator je informativnog karaktera.
* Nakon isteka 5 godina, prelazi se na varijabilnu kamatnu stopu


