Šestosoban stan na prodaju, Cara Uroša, 765.000€, 224m²
OBIĐI 3D TURU










































765.000 €
3.415 € / m2
- Stan u zgradi
- Centralno grejanje
- Novo
- Opremljenost: Prazno - interfon, kanalizacija
- Oglas oglašava agencija pod reg. brojem 167
- 1 garažno mesto
- 1 parking mesto
- 1 lift
- Kanalizacija
- Godina izgradnje: 2025.
- Zgrada poseduje: lođa
- 1 telefonska linija
Opis oglasa
Stari grad, Dorćol - Cara Uroša
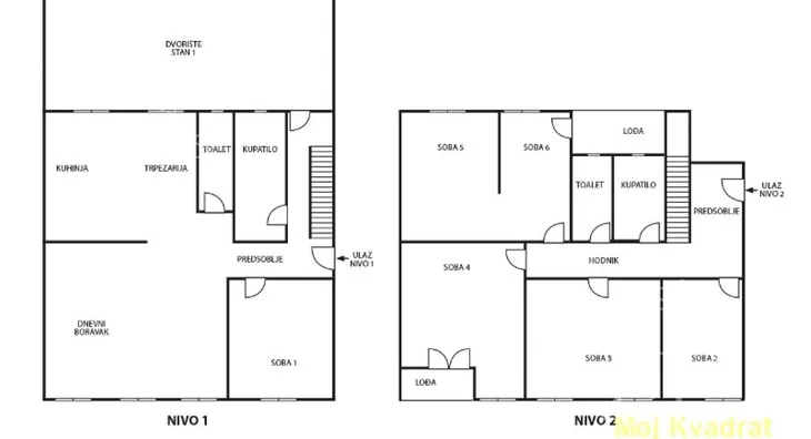
6.0, 224m2 (dve lođe), PR+1/7, CG, lift, telefon, interfon, parking, garaža, dvorište 45m2
U samom srcu Donjeg Dorćola, na jednoj od najtraženijih lokacija u Beogradu, nalazi se izuzetan stan površine 224m2, smešten u luksuznoj novogradnji koja objedinjuje savremeni stil života, vrhunski kvalitet i prestižnu adresu.
Ovaj raskošni šestosoban stan odiše prostranošću, svetlošću i komforom koji zadovoljava najviše estetske i funkcionalne standarde. Pogled na budući Linijski park, donosi osećaj mira i zelenila, dok se u neposrednoj blizini nalaze Dunav, sportski centar "25. maj", Kalemegdan i sve najbolje što Dorćol nudi.
Stan je idealan kako za porodičan život, tako i za one koji žele ekskluzivan prostor koji može spojiti životni i radni ambijent. Korišćeni su najkvalitetniji materijali, a uz stan je moguće kupiti i parking mesto u podzemnoj garaži.
Ovo nije samo stan – ovo je prostor koji pruža vrhunski doživljaj života u prestižnom delu grada.
Cena stana je bez uračunatog PDV-a.
Građevinska dozvola. Mereno ima 224m2, a po projektu 189m2.
Agencijska provizija 2%
Agent: Lazar Karadžić 065... (prikaži broj telefona) (licenca br.3343)
*Sačuvaj oglas uz belešku i primaj obaveštenja o njihovom pojeftinjenju ili pojavljivanju sličnih
Prikaz stana na mapi
Parkovi u blizini
- Pančićev park6 min
- Dečiji zabavni park10 min
- Parkić za decu na Kalemegdanu11 min

Obeležja kulture u blizini
- Vidin kapija4 min
- Bajrakli džamija5 min
- Fontana Mike Alasa4 min

Škole/Fakulteti/Vrtići u blizini
- Osnovna škola (Osnovna škola Braća Baruh)3 min
- Srednja škola (Elektrotehnička škola Stari grad)6 min
- Vrtić (Dečiji vrtić M&M Elefantino)4 min
- Fakultet (Fakultet za primenjeni menadžment ekonomiju i finansije)5 min

- Bolnica (Gradski zavod za plućne bolesti i tuberkulozu)5 min
- Klinika (Poliklinika Oculus)4 min
- Teretana (Full Fit Studio)3 min
- Prodavnica (IDEA)manje od 1 min
- Restoran (Šonda Gastro Bar)1 min
- Kafana (Pivnica Two Tales)5 min
- Taksi stajalište (Taxi stanica)6 min
- Autobuska stanica (Despota Đurđa)3 min
- Tramvajska stanica (Braće Baruh)6 min
- Trolejbuska stanica (Studentski trg)14 min
- Banka (Banca Intesa)8 min
- Pošta (Pošta Beograd 118)3 min
Kontakt oglašivača
Stambeni krediti

- Period otplate od
96 -360 meseca
- NKS 4.75%
EKS 5.74%
Fiksna kamatna stopa
- Bez troškova obrade kredita
stranici kreditnih kalkulatora
Keš krediti
Period otplate
13 meseci



















