Trosoban stan na prodaju, Dom Zdravlja, 174.500€, 71m²






174.500 €
2.458 € / m2
- Stan u zgradi
- Centralno grejanje
- U izgradnji
- Prostorije: kupatilo, toalet, ostava, terasa
- U procesu uknjižavanja
- Oglas oglašava agencija pod reg. brojem 1106
- Parking u dvorištu zgrade, javni parking u zoni, javni parking van zone
- 1 lift
- Godina izgradnje: 2027.
- Zgrada poseduje: podrum
Opis oglasa
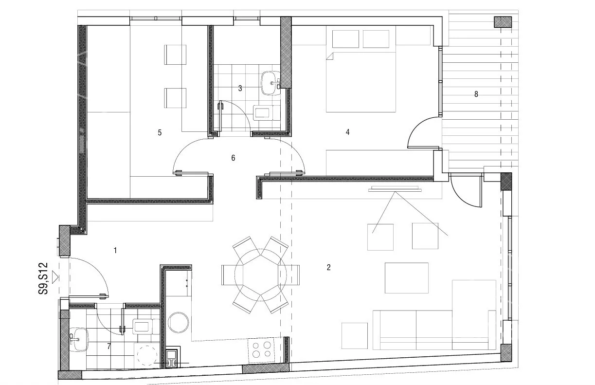
U prilici smo da vam ponudimo na prodaju odličan stan u novogradnji, na jednoj od najtraženijih lokacija u Nišu, u blizini "Vatrogasnog doma" i Bulevara Nemanjića. Po strukturi trosoban, projektovane kvadrature 70.55m2, nalazi se na IV spratu manje stambene zgrade sa liftom. Sastoji se iz ulaznog hodnika, dnevne sobe sa kuhinjom i trpezarijom, toaleta, kupatila, spavaće sobe, dečije sobe, degažmana i terase. Grejanje u stanu je centralno sa kalorimetrima, podovi su prekriveni tarketom i keramikom, spoljna stolarija je šestokomorna PVC sa troslojnim staklom i alu roletnama.
Postoji mogućnost kupovine parking mesta u dvorištu zgrade po ceni od 10.000 evra.
Projektovani rok završetka radova je 30.06.2027 godine
Za više informacija pozovite na 060... (prikaži broj telefona)
*Sačuvaj oglas uz belešku i primaj obaveštenja o njihovom pojeftinjenju ili pojavljivanju sličnih
Prikaz stana na mapi
Parkovi u blizini
- Park složnih komšija3 min
- Park Svetog Save9 min
- Park Čair15 min

Obeležja kulture u blizini
- Ranohrišćanska bazilika5 min
- Ranohrišćanska grobnica5 min
- Zgrada Pasterovog zavoda5 min

Škole/Fakulteti/Vrtići u blizini
- Osnovna škola (Osnovna škola Vožd Karađorđe)12 min
- Srednja škola (Gimnazija Stevan Sremac)12 min
- Vrtić (Dečiji vrtić Cvetić)9 min
- Fakultet (Fakultet za pravne i poslovne studije Dr Lazar Vrkatić)7 min

- Bolnica (Urgentni centar Niš)10 min
- Klinika (Poliklinika Panajotović)6 min
- Teretana (Gym Town 2)8 min
- Prodavnica (IDEA)2 min
- Restoran (Walter sarajevski ćevap)6 min
- Kafana (Ministarstvo beer bar)14 min
- Taksi stajalište (Duga taksi)4 min
- Autobuska stanica (Niš ekspres)2 min
- Banka (Raiffeisen Bank)1 min
- Pošta (Pošta Niš 8)11 min
Kontakt oglašivača
Krediti OTP banke
Saznaj više
Prikazana rata odnosi se na maksimalni period otplate. Kalkulator je informativnog karaktera.
* Nakon isteka 5 godina, prelazi se na varijabilnu kamatnu stopu


