Garsonjera na prodaju, Belog Narcisa, 52.000€, 30m²














52.000 €
1.733 € / m2
- Stan u zgradi
- Podno grejanje
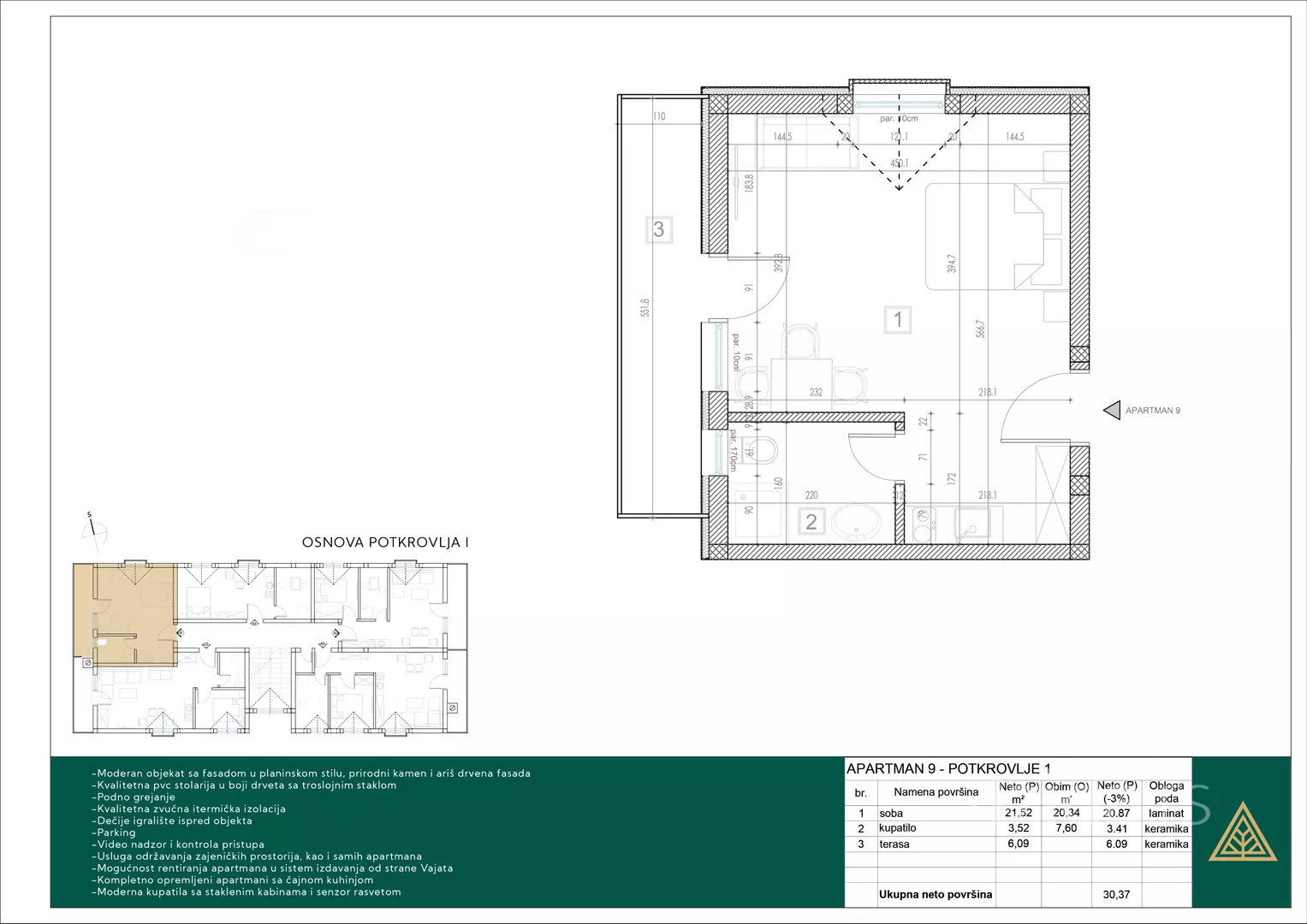
- Prostorije: kupatilo, terasa
- Opremljenost: internet
- Uknjiženo
- Kupovina direktno od vlasnika
- Javni parking van zone
- Godina izgradnje: 2024.
- Zgrada poseduje: sauna, video nadzor
- Kablovska
Opis oglasa
Prodajemo luksuzan stan na Divčibarama, spreman za useljenje odmah. Mogućnost opremanja stana prema slikama u oglasu (posebna ponuda.)
Investirajte u zdravlje, prirodu i mir – baš tamo gde vazduh miriše na borove, a tišina ima boju zalaska sunca.
Objekat je okružen šumom i livadama, sa prelepim pogledom na planinu, a nalazi se nedaleko od centra Divčibara.
Moderan objekat sa fasadom u planinskom stilu, prirodni kamen i ariš drvena fasada
Kvalitetna PVC stolarija u boji drveta sa troslojnim staklom
Podno grejanje
Kvalitetna zvučna i termička izolacija
Dečije igralište ispred objekta
Parking
Video nadzor i kontrola pristupa
Usluga održavanja zajedničkih prostorija, kao i samih apartmana
Mogućnost uključenja u sistem rentanja od strane Vajata i povraćaja investicije (Plan za izdavanje: do 150 dana godišnje preko sistema Vajata.)
Mogućnost kompletno opremanja apartmana sa čajnom kuhinjom * Posebna ponuda
Moderna kupatila sa staklenim kabinama i senzor rasvetom
Karakteristike apartmana:
Apartman je kategorizovan sa 4 zvezdice
Ovaj apartman je deo sistema Divčibarskih Vajata, i imate pristup svim sadržajima kompleksa:
• kafić i restoran
• usluge spa & wellness
• igraonica i dečije igralište
• fudbalski teren i poligoni
Šta Divčibare nude:
280 sunčanih dana godišnje
Čiste planinske staze, šumski putevi, livade i vodopadi
Skijanje, pešačenje, biciklizam, jahanje, ski staza "Heba" (50m) – aktivnosti za celu porodicu
Idealna mikroklima za decu i ljude sa respiratornim problemima
Sve to – na manje od 2 sata vožnje od Beograda
Za koga je ovaj apartman?
Za porodice koje žele vikendicu u prirodi
Za parove koji sanjaju o tišini van grada
Za investitore koji žele nekretninu koja zarađuje dok Vi odmarate
Za sve koji znaju da luksuz nije u betonu, već u slobodi i vazduhu
Kontaktirajte nas danas i zakažite obilazak.
️ Posedujte deo planine. Uložite u mir.
Lokacija: Beogradsko naselje, Divčibare, 900 m od Crkve
*Sačuvaj oglas uz belešku i primaj obaveštenja o njihovom pojeftinjenju ili pojavljivanju sličnih
Prikaz stana na mapi
Kontakt oglašivača
Krediti OTP banke
Saznaj više
Prikazana rata odnosi se na maksimalni period otplate. Kalkulator je informativnog karaktera.
* Nakon isteka 5 godina, prelazi se na varijabilnu kamatnu stopu

