Trosoban stan na prodaju, Detelinara, 197.140€, 58m²




















197.140 €
3.399 € / m2
- Novo
- Prostorije: kupatilo, terasa
- Opremljenost: interfon
- Uknjiženo
- Oglas oglašava agencija pod reg. brojem 1960
- 1 garažno mesto
- 3 parking mesta
- 1 lift
Opis oglasa
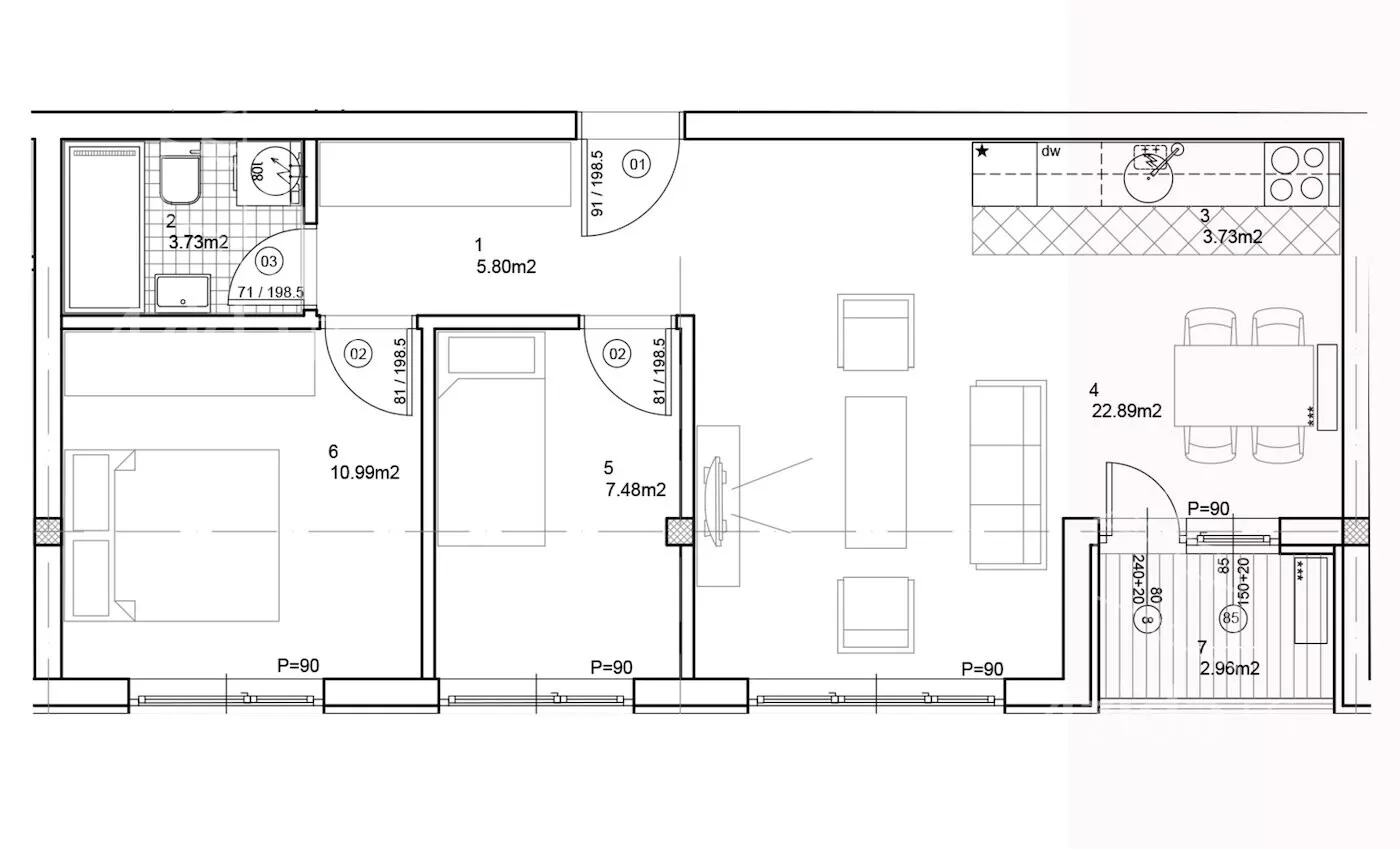
Trosoban stan u luksuznoj novogradnji
U potpuno novoj zgradi renomiranog investitora, na idealnoj poziciji između Nove Detelinare i Novog Naselja, prodaje se trosoban stan površine 58 m², smešten na drugom spratu od ukupno pet, u zgradi sa liftom.
Stan je izuzetno svetao, ulicno orijentisan, sa pažljivo osmišljenim rasporedom prostorija: prostran dnevni boravak sa kuhinjom i trpezarijom, dve spavaće sobe, terasa i moderno kupatilo sa walk-in tuš kabinom.
Grejanje je centralno sa kalorimetrom, uz plaćanje samo u grejnoj sezoni po potrošnji, dok je topla voda obezbeđena protočnim sistemom. Zgrada se odlikuje luksuznim izgledom i vrhunskom opremom, a dodatnu sigurnost i komfor pruža video interfon.
Stan je uknjižen i odmah useljiv, a kupcima je dostupna mogućnost kupovine do dva susedna garažna mesta u suterenskoj garaži sa auto liftom.
Zahvaljujući poziciji zgrade, u neposrednoj blizini su autoput, glavne saobraćajnice i svi sadržaji potrebni za svakodnevni život, što ovaj stan čini idealnim izborom za porodice, poslovne ljude i investitore koji traže sigurnu i dugoročnu vrednost.
*Sačuvaj oglas uz belešku i primaj obaveštenja o njihovom pojeftinjenju ili pojavljivanju sličnih
Prikaz stana na mapi
Parkovi u blizini
- Park Bistrica16 min
- Železnički park17 min
- Futoški park28 min

Obeležja kulture u blizini
- Jodna Banja8 min
- Spomen ploča Albertu Ajnštajnu i Milevi Marić8 min
- Katolička plebanija8 min

Škole/Fakulteti/Vrtići u blizini
- Osnovna škola (Osnovna škola Dositej Obradović)9 min
- Srednja škola (Škola za dizajn Bogdan Šuput)5 min
- Vrtić (Dečiji vrtić Cvrčak i mrav)5 min
- Fakultet (Pravni fakultet za privredu i pravosuđe Univerzitet Privredna akademija)6 min

- Bolnica (NS specijalna bolnica za hemodijalizu)5 min
- Klinika (Poliklinika Galetić)6 min
- Teretana (Sportsko udruženje Joga Om)4 min
- Prodavnica (Mikromarket)1 min
- Restoran (Restoran Dva Štapića)3 min
- Kafana (Pivnica Smak)5 min
- Taksi stajalište (Red Taxi)19 min
- Autobuska stanica (Kornelija Stankovića - Milenka Grčića)2 min
- Banka (Raiffeisen Bank)9 min
- Pošta (Pošta Novi Sad 21140)8 min
Kontakt oglašivača
Krediti OTP banke
Saznaj više
Prikazana rata odnosi se na maksimalni period otplate. Kalkulator je informativnog karaktera.
* Nakon isteka 5 godina, prelazi se na varijabilnu kamatnu stopu


