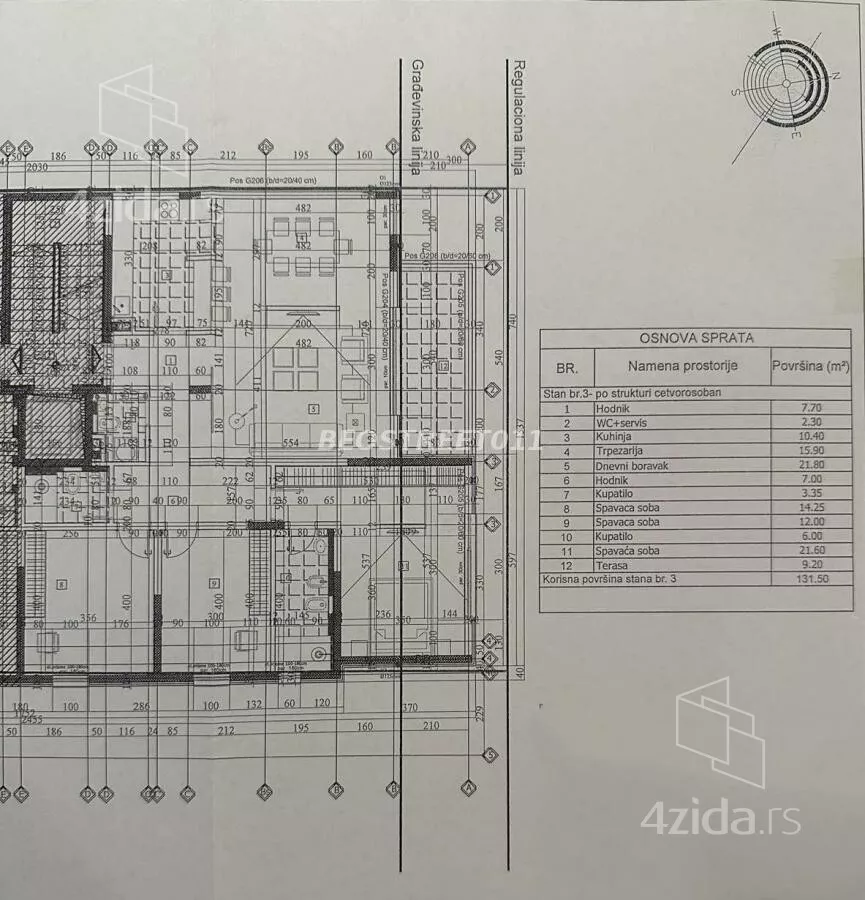
Četvorosoban stan na prodaju, Činovnička Kolonija, 539.000€, 131m²








539.000 €
4.115 € / m2
- Stan u zgradi
- Novo
- Prostorije: ostava, terasa
- Opremljenost: Prazno - internet, interfon, klima
- Uknjiženo
- Oglas oglašava agencija pod reg. brojem 1569
- 1 garažno mesto
- 1 lift
- Godina izgradnje: 2024.
- Zgrada poseduje: podrum, lođa, video nadzor
- Kablovska
- 1 telefonska linija
Opis oglasa
Zgrada je projektovana kao boutique rezidencijalni objekat, sa naglaskom na komfor, energetsku efikasnost i dugotrajnu vrednost.
Nova, uknjižena i useljiva (2024)
4 sprata, lift
Grejanje i hlađenje putem toplotnih pumpi
Tih, sofisticiran ambijent sa malim brojem stanova
Renomirani investitor i kontrolisan kvalitet u svakoj fazi gradnje
Enterijer i materijali pažljivo su birani kako bi pružili osećaj suptilnog luksuza — od podova i sanitarija, do stolarije i završnih detalja, sve je u skladu sa najvišim standardima savremenog stanovanja.
STANOVI – PROSTOR KOJI SE DOŽIVLJAVA
-Prizemni stan sa velikim terasama – osećaj privatne rezidencije
Grejna površina: 125,30 m²
Terase: 93,50 m² + 13,15 m²
Ukupno: 231,95 m²
Prostran, svetao i izuzetno tih, ovaj stan briše granicu između unutrašnjeg i spoljašnjeg prostora. Velike terase pružaju potpuni osećaj privatnosti, idealne za jutarnju kafu, večernja okupljanja ili urbani vrt.
Cena: 726.955 € + PDV 10%
-Prizemni stan – savršena ravnoteža funkcionalnosti i luksuza
Ukupna površina: 120,80 m²
Grejna površina: 85,30 m²
Terase: 7,70 m² + 27,80 m²
Stan dizajniran za moderan gradski život, sa otvorenim prostorima i terasama koje produžavaju dnevni boravak i nude mir u svakom trenutku dana.
Cena: 483.200 € + PDV 10%
DODATNI KOMFOR
Parking mesto: 35.000 € + PDV 20%
Ostava: 2.800 €/m² + PDV 10%
ŽIVETI OVDЕ ZNAČI…
• jutra u tišini i zelenilu
• kvalitetnu gradnju koja traje
• prestižnu adresu sa karakterom
• luksuz koji nije nametljiv, već prirodan
Agencijska provizija je u skladu sa opštim uslovima poslovanja.
Prime Investment Opportunity | Činovnička Kolonija – Belgrade
Luxury apartments in Činovnička Kolonija, one of Belgrade’s most established and high-demand residential neighborhoods, known for limited supply and strong value retention.
New boutique building (2024), fully registered and move-in ready.
Developed by a reputable investor, built to the highest standards, with elevator, 4 floors, and an energy-efficient heat pump system, ensuring low operating costs and long-term sustainability.
Quiet residential micro-location, minutes from Autokomanda and major city arteries — ideal for end users, long-term rental, or premium resale.
Available units:
231.95 m² ground-floor apartment with large terraces
Price: 726,955 € + 10% VAT
120.80 m² ground-floor apartment with terraces
Price: 483,200 € + 10% VAT
Optional add-ons:
Parking space: 35,000 € + 20% VAT
Storage units: 2,800 €/m² + 10% VAT
Key advantages:
✔ Prime, low-risk location
✔ New construction with VAT reclaim potential
✔ Strong demand for luxury rentals
✔ Long-term capital appreciation
Schedule a property viewing.
Agency commission is charged in accordance with the general terms of business
*Sačuvaj oglas uz belešku i primaj obaveštenja o njihovom pojeftinjenju ili pojavljivanju sličnih
Prikaz stana na mapi
Parkovi u blizini
- Bajronov park4 min
- Park Jove Ilića16 min
- Park Rozali Morton20 min

Obeležja kulture u blizini
- Spomenik Franše Depereu6 min
- Kuća Flašar8 min
- Spomenik heroju Milanu Tepiću8 min

Škole/Fakulteti/Vrtići u blizini
- Osnovna škola (Osnovna škola Karađorđe)6 min
- Srednja škola (Dvanaesta beogradska gimnazija)5 min
- Vrtić (Dečiji vrtić Moj Montessori)4 min
- Fakultet (Fakultet za projektni i inovacioni menadžment)7 min

- Bolnica (Bel Medic Opšta bolnica)7 min
- Klinika (Poliklinika Rea Medika)1 min
- Teretana (Fitness club M)6 min
- Prodavnica (IDEA)5 min
- Restoran (Restoran Početak 2016)6 min
- Kafana (Robin Hood Pub)6 min
- Taksi stajalište (Taxi stanica)10 min
- Autobuska stanica (Veljka Lukića Kurjaka)6 min
- Tramvajska stanica (Kralja Vladimira)4 min
- Trolejbuska stanica (Stadion „Partizan“)19 min
- Banka (UniCredit Bank)4 min
- Pošta (Pošta Beograd 9)8 min
Kontakt oglašivača
Krediti OTP banke
Saznaj više
Prikazana rata odnosi se na maksimalni period otplate. Kalkulator je informativnog karaktera.
* Nakon isteka 5 godina, prelazi se na varijabilnu kamatnu stopu


