Šestosoban stan na prodaju, Lomina, 600.000€, 138m²








































600.000 €
4.348 € / m2
- Etažno grejanje
- Uobičajeno stanje
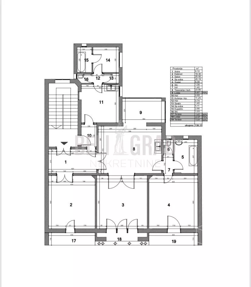
- Prostorije: terase (4)
- Uknjiženo
- Oglas oglašava agencija pod reg. brojem 759
Opis oglasa
Uknjižen šestosoban stan salonskog tipa na odličnoj lokaciji, sa fantastičnim panoramskim pogledom na reku i veliki deo grada. Stan zauzima ceo treći sprat, ima unutrašnu visinu 3m. Dvostrano je orijentisan, sa puno prirodnog svetla. Po projektu, postoje dva ulaza, dva kupatila, dva toaleta i četiri terase. Velika staklena terasa je orijentisana prema reci. U stanu su formirane dve kuhinje, te prostor može da funkcioniše kao dve odvojene celine. U stanu su sačuvane tri kaljeve peći sa ugrađenim električnim grejačima. Iznad celog stana se nalazi tavanski prostor, zahvaljujući čemu je moguće stan proširiti u postojećem gabaritu potkrovlja. Pošto stan zauzima ceo treći sprat, urađen je građevinski projekat i dozvola za izgradnju još jednog nivoa iste kvadrature, čime bi stan dobio formu fantastičnog dvoetažnog stana, ukupne površine oko 240m2. U zgradi postoji mogućnost ugradnje panoramskog lifta. Zgrada se nalazi u mirnoj ulici bez saobraćaja, ima sopstveno dvorište i veliku baštu sa puno zelenila. Zgrada se odlikuje izuzetnom arhitektonskom vrednošću, pa predstavlja deo zaštićene ambijentalne celine. Agencijska provizija 2% POZOVITE AGENTA TEL.: 060... (prikaži broj telefona)
*Sačuvaj oglas uz belešku i primaj obaveštenja o njihovom pojeftinjenju ili pojavljivanju sličnih
Prikaz stana na mapi
Parkovi u blizini
- Park Luke Ćelovića5 min
- Park Aleksandrov6 min
- Park Gavrila Principa6 min

Obeležja kulture u blizini
- Hotel Moskva4 min
- Krsmanovićeva kuća na Terazijama5 min
- Zgrada Smederevske banke5 min

Škole/Fakulteti/Vrtići u blizini
- Osnovna škola (Osnovna škola Drinka Pavlović)5 min
- Srednja škola (Filološka gimnazija)7 min
- Vrtić (Dečiji vrtić Avantura)5 min
- Fakultet (Univerzitet u Beogradu Učiteljski fakultet)4 min

- Bolnica (Ginekološko akušerska klinika Narodni front)4 min
- Klinika (Diva dr Bogdanović poliklinika - dermatološka klinika)5 min
- Teretana (Dynamic pilates & fitness studio)4 min
- Prodavnica (Shop&Go)3 min
- Restoran (Restoran Zavičaj Balkanska)3 min
- Kafana (Publin Pub)2 min
- Taksi stajalište (Taxi stanica)3 min
- Autobuska stanica (Nemanjina)4 min
- Tramvajska stanica (Savski Trg)6 min
- Trolejbuska stanica (Terazije)7 min
- Banka (Eurobank Direktna)5 min
- Pošta (Pošta Beograd 19)4 min
Kontakt oglašivača
Krediti OTP banke
Saznaj više
Prikazana rata odnosi se na maksimalni period otplate. Kalkulator je informativnog karaktera.
* Nakon isteka 5 godina, prelazi se na varijabilnu kamatnu stopu


