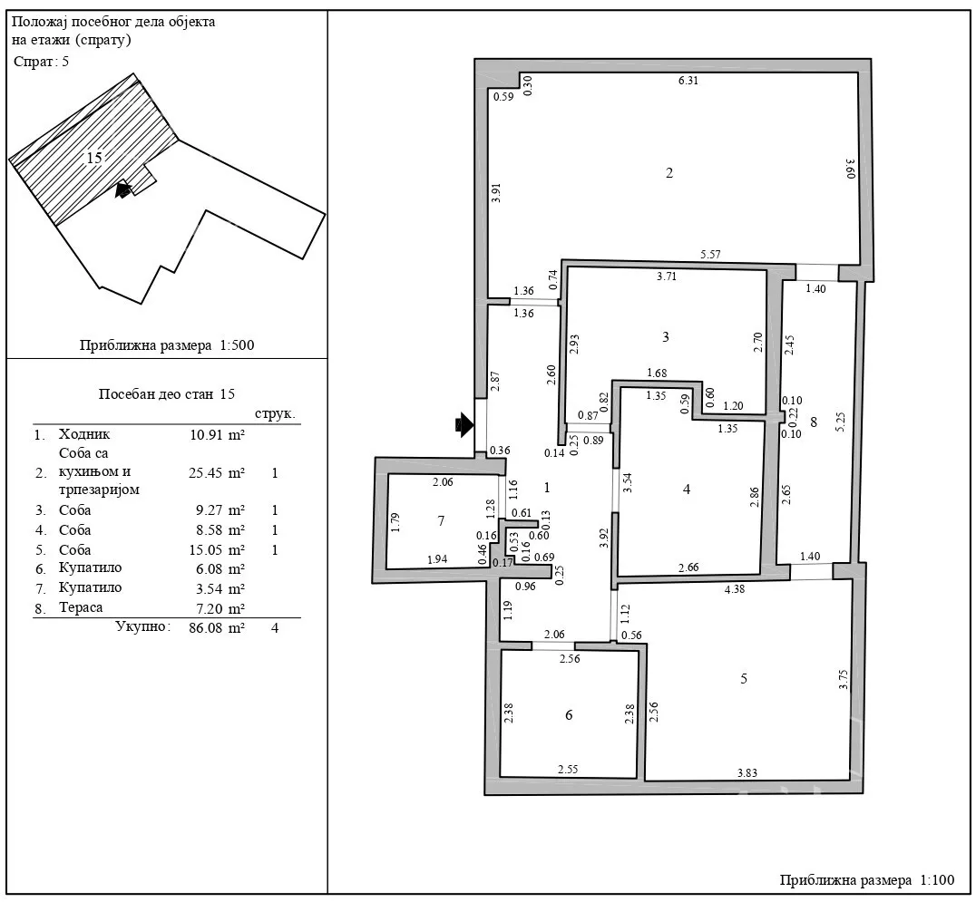
Troiposoban stan na prodaju, Centar, 193.500€, 86m²


























193.500 €
2.250 € / m2
- Stan u zgradi
- Etažno grejanje
- Novo
- Prostorije: kupatilo, toalet, terasa
- Opremljenost: Prazno - internet, ventilacija
- Pogled na: ulicu, dvorište
- Uknjiženo
- Oglas oglašava agencija pod reg. brojem 691
- Parking u dvorištu zgrade, javni parking u zoni, javni parking van zone
- Godina izgradnje: 2025.
- Zgrada poseduje: dvorište, alarm, ventilacija, video nadzor
- Tip interneta: optički
- Kablovska
- 1 telefonska linija
- Autobuske linije: 2
Opis oglasa
🌟 PREMIJUM PONUDA – LUKSUZNI STANOVI U CENTRU NIŠA odmah useljivi 🌟
Predstavljamo vam ekskluzivnu ponudu luksuznih stanova u samom centru Niša.
Objekat je projektovan i izveden po najvišim standardima — idealan za porodičan život, ali i kao investicija sa sigurnim povraćajem.
🏡 Stanovi troiposobne strukture
📏 Kvadratura: 86 m² – 117 m²
🛋️ Savršen raspored, maksimalno iskorišćen prostor
🔝 Vrhunac kvaliteta i komfora
- Hrastov parket premium klase
- Aluminijumska stolarija sa električnim roletnama
- Etažno grejanje – potpuna kontrola troškova
- Zastakljene terase visokokvalitetnim aluminijumskim kliznim sistemima, giljotinama
- Moderna, urbana arhitektura i reprezentativan ulaz
📍 Top lokacija – sve na dohvat ruke
- Neposredna blizina strogog centra
- 2 min od Delte
- Okruženi osnovnim i srednjim školama
- Mirna ulica, odlična povezanost, idealno za porodice
💼 Zašto baš ovi stanovi?
- Vrhunska gradnja
- Visok nivo završne obrade
- Luksuz koji traje
- Cena 2.250 €/m² sa PDV-om
- Povraćaj PDV-a (10% od cene), za kupce prvog stana
Dokumentacija i način kupovine:
Stanovi poseduju potpuno urednu dokumentaciju i mogu se kupiti kako za keš, tako i putem stambenog kredita.
Posetite naš sajt i pogledajte i druge ponude naše agencije ili zakažite razgledanje stanova.
Kontakt:
📞 tel: +38... (prikaži broj telefona)
📞 tel: +38... (prikaži broj telefona)
** DTS Nekretnine **upisani u registar posrednika pod brojem 691
*Sačuvaj oglas uz belešku i primaj obaveštenja o njihovom pojeftinjenju ili pojavljivanju sličnih
Prikaz stana na mapi
Parkovi u blizini
- Park heroja NOB-a11 min
- Park složnih komšija11 min
- Park Čair12 min

Obeležja kulture u blizini
- Čairska česma4 min
- Zgrada Oficirskog doma10 min
- Spomenik oslobodiocima Niša11 min

Škole/Fakulteti/Vrtići u blizini
- Osnovna škola (Osnovna škola Vožd Karađorđe)3 min
- Srednja škola (Gimnazija Bora Stanković)3 min
- Vrtić (Dečiji vrtić Cvetić)4 min
- Fakultet (Fakultet za pravne i poslovne studije Dr Lazar Vrkatić)4 min

- Bolnica (Urgentni centar Niš)5 min
- Klinika (VS Clinic and Beauty)2 min
- Teretana (Gym Town 2)4 min
- Prodavnica (Gomex market)4 min
- Restoran (Kafana Nišlijska mehana)3 min
- Kafana (Ministarstvo beer bar)7 min
- Taksi stajalište (Cool taksi)12 min
- Autobuska stanica (Crveni pevac)4 min
- Banka (Poštanska štedionica)6 min
- Pošta (Pošta Niš 7)5 min
Kontakt oglašivača

Krediti OTP banke
Saznaj više
Prikazana rata odnosi se na maksimalni period otplate. Kalkulator je informativnog karaktera.
* Nakon isteka 5 godina, prelazi se na varijabilnu kamatnu stopu

