Petosoban stan na prodaju, Jablanička 6, 460.000€, 256m²


















460.000 €
1.797 € / m2
- Penthaus
- Centralno grejanje
- Luksuzno
- Prostorije: kupatila (3+), kuhinja, ostava, terase (3+)
- Opremljenost: Prazno - internet, interfon, klima, ventilacija
- Uknjiženo
- Oglas oglašava firma
- Garaža u sklopu zgrade
- 3 parking mesta, parking u dvorištu zgrade
- 1 lift
- Zgrada poseduje: prilaz za invalide, dvorište, alarm, podrum, ventilacija, video nadzor
- Tip interneta: optički
- Kablovska
- 1 telefonska linija
Opis oglasa
Exkluzivna novogradnja u strogom centru
Ul. Jablanička br.6
SA PONOSOM VAM PRESTAVLJAMO EXKLUZIVNI, NOVI LUKSUZNI SMART STAMBENI OBJEKAT
Objekat je visoko kvalitetne gradnje A+ energetske efikasnosti, sa luksuznim stanovima na fenomenalnoj, eksluzivnoj lokaciji u samom centru grada sa privatnim dvorištem na samo 200m od TC Kalce, pešačke zone, i 250m od pravnog i ekonomoskog fakulteta.
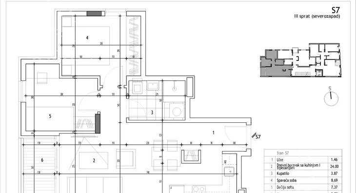
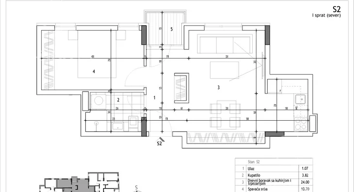
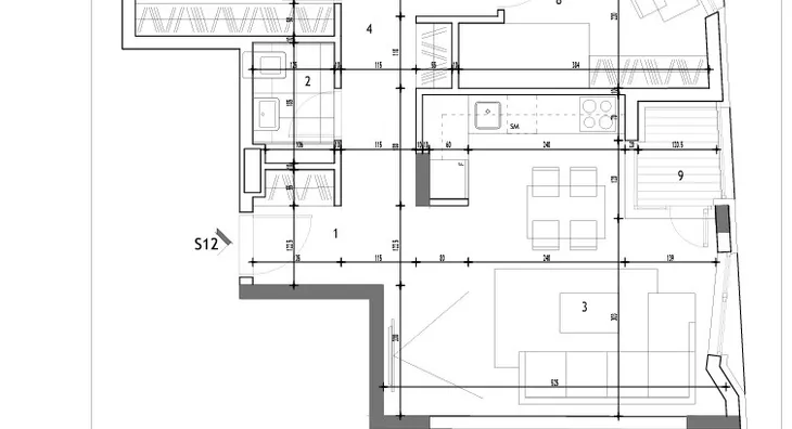
Prodaje se ceo sprat, stan površine 155kvm sa pripadajućom penthaus terasom površine 101kvm iznad stana.
Trenutno je razradjen plan za 3 nezavisna stana, koji možemo da spojimo u jedan i plan prostorija prilagodimo Vašim potrebama.
Na idealnoj, pristupacnoj lokaciji u samom centru sa mogucnoscu parkiranja u privatnom dvorištu pod video nadzorom, objekat je sklonjen od gradske vreve i buke, potpuno izolovan na mirnom i tihom mestu.
Idealan za miran porodicni zivot, poslovni prostor, idelano za studente I izdavanje
Našim kupcima nudimo uslugu profesionalnog iznajmljivanja nekretnine, kojom u periodu od 15 godina u potpunosti vršite povraćaj uloženog kapitala!
Prodaja stanova direktno od investitora sa dugogodisnjom reputacijom u izgradnji samo ekskluzivnih objekata, stanova vrhunskog kvaliteta i 100% ZADOVOLJSTVOM kupaca!
Prodaja isključivo direktna, bez posrednika i provizije!
POVRACAJ PDV-a !
Mogućnost kupovine na kredit.
Objekat poseduje svu potrebnu dokumentaciju.
Obezbedjena Vam je potpuna logistika oko provere i sklapanja ugovora (katastra, pravnika, notara…)
Objekat poseduje:
-Ventilisanu fasadu, termo blok, 15cm ventacusto kamena vune...
-Podrum (svakom stanu ide pripadajuci podrumski prostor),
-Privatno dvorište sa ulaznom rampom i parking mestima, prizemlje i 4 sprata,
-Bešumni elektronski Kone Lift,
-A+ visoko energetsku efikasnost,
-Azmafon zvučna izolacija
-Centralno grejanje sa kalorimetrima i alu radijatorima sa termo glavama, sistem je daleko funkcionalniji i ekonomicniji od klasicnih tipova grejanja ,
-Fenomenalne panoramske terase.
-Vrhunsku aluminijumsku stolariju sa troslojnim staklima punjeno argonom i motorizovanim alu roletnama
-Luksuznu Atlas Concorde keramiku, -Geberit ugradni vodokotlić sa konzolnom šoljom, smart slim digitalni bojler, staklena walk-in tuš kabina sa linijskim slivnikom, Hans Grohe sanitarije, bešumne cevi...
-Ulazna Bosal Lux protivpozarna sigurnosna vrata sa sertifikatom,
- Luksuzan Artinjan masivni višeslojni parket termotretiran, visoko otporan na oštećenja i vlagu(100€ kvm)
-Modularni sistem u svakoj sobi (kablovska, tv, telefon, internet),
-Hickvision video interfon sa ugradnim velikim touch screen ekranom u boji u stanu, sistem prepoznavanja lica i tablica
-Daljinski video nadzor kompletnog objekta, interfon sa karticom i elektronskom centralnom bravom, vrata sa termo prekidom, u svakoj prostoriji instalacija za klimatizaciju
Ostvarite svoj san i postanite vlasnik nekretnine o kojoj ste oduvek mastali!
Kontaktirajte nas slobodno, bice nam zadovoljstvo da vam lično pokazemo lokaciju, 3D katalog stanova, da Vas upoznamo sa našim prethodnim luksuznim objektima u gradu, pokažemo video snimke i slike stanova...
Naš tim arhitekti, dizajnera enterijera, prilagodiće stan vašim potrebama, odradiće 3D projekat interijera...naši timovi stolara, molera, električara...opciono opremiće kompletno Vaš stan do detalja...
Kontakt telefon:
063... (prikaži broj telefona)
*Sačuvaj oglas uz belešku i primaj obaveštenja o njihovom pojeftinjenju ili pojavljivanju sličnih
Prikaz stana na mapi
Parkovi u blizini
- Park heroja NOB-a16 min
- Park Čair19 min
- Park složnih komšija28 min

Obeležja kulture u blizini
- Donina česma4 min
- Vladičanski dvor7 min
- Kuća Stambolijskih7 min

Škole/Fakulteti/Vrtići u blizini
- Osnovna škola (Osnovna škola Dositej Obradović)4 min
- Srednja škola (Gimnazija Svetozar Marković)5 min
- Vrtić (Dečiji vrtić Neven)5 min
- Fakultet (Univerzitet u Nišu Fakultet sporta i fizičkog vaspitanja)4 min

- Bolnica (Urgentni centar Niš)9 min
- Klinika (Poliklinika Longa Vita)7 min
- Teretana (Gym Town 1)5 min
- Prodavnica (Gomex market)3 min
- Restoran (Restoran Mali podrum)2 min
- Kafana (Pivnica Nemir)8 min
- Taksi stajalište (Bros Taxi Niš)3 min
- Autobuska stanica (Obilićev Venac (šojka))3 min
- Banka (Erste Bank Ekspres ekspozitura)2 min
- Pošta (Pošta Niš 5)6 min
Kontakt oglašivača

Stambeni krediti

- Period otplate od
96 -360 meseca
- NKS 4.75%
EKS 5.74%
Fiksna kamatna stopa
- Bez troškova obrade kredita
Za iznos kredita ispod 30000 € poseti sajt banke.
Saznaj višestranici kreditnih kalkulatora
Keš krediti
Period otplate
13 meseci