Dvoiposoban stan na prodaju, Centar, 155.300€, 65m²






155.300 €
2.389 € / m2
- Stan u zgradi
- Etažno grejanje
- U izgradnji
- Prostorije: terasa
- Opremljenost: Prazno - klima
- Oglas oglašava agencija pod reg. brojem 1596
- 1 lift
Opis oglasa
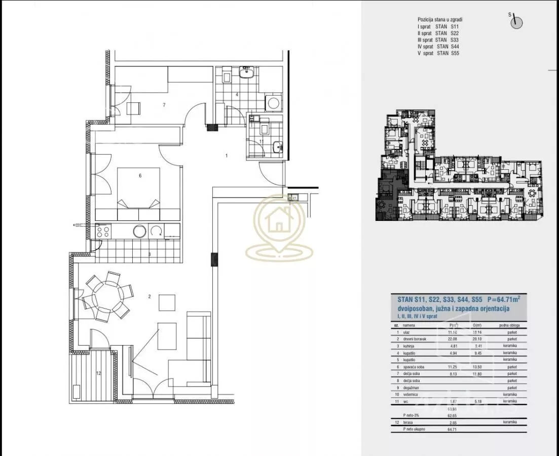
U ponudi je funkcionalan i savremeno projektovan stan u izgradnji, površine 65m², smešten na petom spratu zgrade od ukupno pet spratova. Završetak radova planiran je za avgust ove godine, što ovu nekretninu čini odličnom investicijom kako za život, tako i za izdavanje.
Stan se sastoji od prostrane dnevne sobe sa kuhinjom i trpezarijom, dve spavaće sobe, kupatila, dodatnog toaleta i terase koja pruža prijatan prostor za odmor.
Objekat se gradi po savremenim standardima, uz kvalitetne materijale i dobru organizaciju prostora koja obezbeđuje maksimalnu iskorišćenost svakog kvadrata.
Postoji mogućnost kupovine putem stambenog kredita.
Lokacija je izuzetno praktična i dobro povezana sa ostatkom grada. U neposrednoj blizini nalaze se prodavnice, škole, vrtići, kao i linije gradskog prevoza koje omogućavaju brzu komunikaciju sa centrom. Okruženje je mirno i pogodno za porodičan život, ali i dovoljno urbano za svakodnevne potrebe.
Za sve dodatne informacije i zakazivanje obilaska, slobodno se javite.
Agencijska provizija u skladu sa opštim uslovima poslovanja.
*Sačuvaj oglas uz belešku i primaj obaveštenja o njihovom pojeftinjenju ili pojavljivanju sličnih
Prikaz stana na mapi
Parkovi u blizini
- Park heroja NOB-a10 min
- Park Čair22 min
- Park složnih komšija29 min

Obeležja kulture u blizini
- Spomenik Stefanu Nemanji7 min
- Spomenik žrtvama NATO bombardovanja7 min
- Spomenik oslobodiocima Niša9 min

Škole/Fakulteti/Vrtići u blizini
- Osnovna škola (Osnovna škola Vuk Karadžić)8 min
- Srednja škola (Prehrambeno-hemijska škola)6 min
- Vrtić (Predškolska ustanova Dečiji kutak)10 min
- Fakultet (Univerzitet u Nišu Fakultet umetnosti)5 min

- Bolnica (Urgentni centar Niš)7 min
- Klinika (Poliklinika Longa Vita)4 min
- Teretana (Gym Town 1)5 min
- Prodavnica (Maxi Supermarket)3 min
- Restoran (Restoran Naiades)4 min
- Kafana (Kafana Tri fenjera)5 min
- Taksi stajalište (Bros Taxi Niš)10 min
- Autobuska stanica5 min
- Banka (Poštanska štedionica)8 min
- Pošta (Pošta Niš 4)5 min
Kontakt oglašivača
Krediti OTP banke
Saznaj više
Prikazana rata odnosi se na maksimalni period otplate. Kalkulator je informativnog karaktera.
* Nakon isteka 5 godina, prelazi se na varijabilnu kamatnu stopu


