Troiposoban stan na prodaju, Centar, 182.830€, 86m²


















182.830 €
2.126 € / m2
- Stan u zgradi
- Grejanje na gas
- Novo
- Opremljenost: Prazno - kanalizacija
- Oglas oglašava agencija pod reg. brojem 1152
- Kanalizacija
- Zgrada poseduje: lođa
Opis oglasa
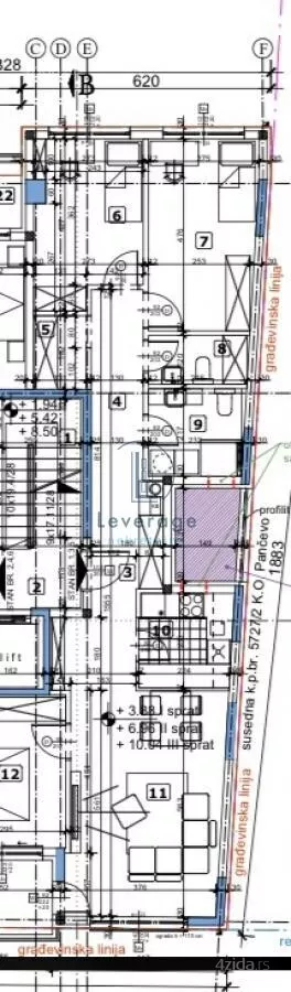
U prilici smo da Vam ponudimo troiposoban stan od 86.20 m2 u izgradnji na odličnoj lokaciji, u samom centru Pančeva.
Stan je dvostrano orijantisan, a na spratu se osim ovog nalazi samo još jedan stan, što pruža dodatni komfor i mir.
Izgradjen je od najkvalitetnijih materijala na tržištu, u modernom arhitektonskom stilu. Stan poseduje Koemmerling sedmokomornu stolariju sa troslojnim staklom i elektroroletnama, Coretec podove, Mitshubishi klima uredjaj, Slovarm nadzidni vodokotlić i najkvalitetniju keramiku, a svetla mera u stanu je 2,90m.
Grejanje je na gas, sa veoma ekonomičnom potrošnjom.
Lokacijski je odlično pozocionirano, budući da se nalazi u samom centru grada u blizini se nalaze svi neophodni sadržaji, put za Beograd je takođe veoma blizu, kao i autobuska stajališta.
Stan se sastoji od dnevnog boravka sa trpezarijom, kuhinje, tri spavaće sobe, toaleta, kupatila, ulaznog hodnika, pretprostora i lođe.
Uz stan ide i parking mesto GRATIS!
Rok završetka radova je 31.12.2026.
Na oglašenu cenu stana se dodaje 10% za PDV.
Postoji mogućnost povraćaja PDV-a za kupce prvog stana.
Agencijska provizija iznosi 3% od ukupne kupoprodajne cene.
Kontaktirajte nas za više informacija.
*Sačuvaj oglas uz belešku i primaj obaveštenja o njihovom pojeftinjenju ili pojavljivanju sličnih
Prikaz stana na mapi
Parkovi u blizini
- Park na Trgu kralja Petramanje od 1 min
- Narodna bašta Pančevo22 min
- Park Barutana26 min

Obeležja kulture u blizini
- Spomenik vojvodi Stevanu Šupljikcu7 min
- Zgrada Stare bolnice8 min
- Kompleks Svilara9 min

Škole/Fakulteti/Vrtići u blizini
- Osnovna škola (Osnovna škola Jovan Jovanović Zmaj)6 min
- Srednja škola (Privatna srednja stručna škola Vizija)5 min
- Vrtić (Predškolska ustanova Dečja radost Pančevo)9 min
- Fakultet (Stomatološki fakultet Pančevo)12 min

- Bolnica (Bolnica za očne bolesti Pančevo)6 min
- Klinika (Poliklinika MD)7 min
- Teretana (Fitnes klub Forma)4 min
- Prodavnica (Maxi Supermarket)2 min
- Restoran (Bistro Kokoschka)2 min
- Kafana (Stara Vajfertova pivara)6 min
- Taksi stajalište (Taxi stanica)5 min
- Autobuska stanica (Gradska uprava)2 min
- Banka (OTP banka)1 min
- Pošta (Pošta Pančevo 6)3 min
Kontakt oglašivača
Krediti OTP banke
Saznaj više
Prikazana rata odnosi se na maksimalni period otplate. Kalkulator je informativnog karaktera.
* Nakon isteka 5 godina, prelazi se na varijabilnu kamatnu stopu


