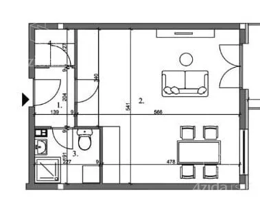
Jednosoban stan na prodaju, Branka Radičevića, 75.850€, 41m²








75.850 €
1.850 € / m2
Za ovaj oglas se neko interesovao. Pozovi ranije kako ne bi propustio priliku.
- Stan u zgradi
- Grejanje na gas
- U izgradnji
- Prostorije: kupatilo, toalet, terasa
- Opremljenost: Prazno - internet
- Pogled na: ulicu, dvorište
- Uknjiženo
- Oglas oglašava agencija pod reg. brojem 1299
- Parking u dvorištu zgrade
- 1 lift
- Godina izgradnje: 2027.
Opis oglasa
Novogradnja se nalazi u centralnom delu Pančeva, u ulici Branka Radičevica. Blizina tržnih, administrativnih, poslovnih i turističkih centara, kao i glavni gradski parkovi i pešačke ulice čine ovu lokaciju izuzetno atraktivnom.
Rok useljenja je septembar 2027. godine.
Prostor se prodaje u potpunosti završen korišcenjem visokokvalitetnih materijala za spoljnu i unutrašnju završnu obradu. Cena je 1.700 evra po m2 sa PDV-om, stan je 41,2 m2. Cena garaže je 12.000 evra.
Posrednička naknada je u skladu sa Opštim uslovima poslovanja posrednika kompanije "Etagi com" d.o.o.
Новостройка расположена в центральной части Панчева, на улице Бранка Радичевича. Близость торговых, административных, деловых и туристических центров, а также главных городских парков и пешеходных улиц делает эту локацию исключительно привлекательной.
Срок заселения – сентябрь 2027 года.
Объект продается полностью завершенным с использованием высококачественных материалов для внешней и внутренней отделки. Цена – 1 700 евро за м² с НДС.
*Sačuvaj oglas uz belešku i primaj obaveštenja o njihovom pojeftinjenju ili pojavljivanju sličnih
Prikaz stana na mapi
Parkovi u blizini
- Park na Trgu kralja Petra12 min
- Narodna bašta Pančevo31 min
- Park Barutana35 min

Obeležja kulture u blizini
- Spomenik vojvodi Stevanu Šupljikcu7 min
- Zgrada Stare bolnice8 min
- Spomen kompleks Stratište10 min

Škole/Fakulteti/Vrtići u blizini
- Osnovna škola (Osnovna škola Vasa Živković)5 min
- Srednja škola (Gimnazija Uroš Predić)4 min
- Vrtić (Dečiji vrtić Crvenkapa)5 min
- Fakultet (Stomatološki fakultet Pančevo)12 min

- Bolnica (Bolnica za očne bolesti Pančevo)7 min
- Klinika (Poliklinika MD)2 min
- Teretana (Be Fit Fitness Club)7 min
- Prodavnica (Gomex market)3 min
- Restoran (Restoran Citadela)4 min
- Kafana (Kafana Crni leptir)13 min
- Taksi stajalište (Taxi stanica)15 min
- Autobuska stanica (Preobraženjska Crkva)4 min
- Banka (Eurobank Direktna)12 min
- Pošta (Pošta Pančevo 6)4 min
Kontakt oglašivača
Za ovaj oglas se neko interesovao. Pozovi ranije kako ne bi propustio priliku.
Krediti OTP banke
Saznaj više
Prikazana rata odnosi se na maksimalni period otplate. Kalkulator je informativnog karaktera.
* Nakon isteka 5 godina, prelazi se na varijabilnu kamatnu stopu


