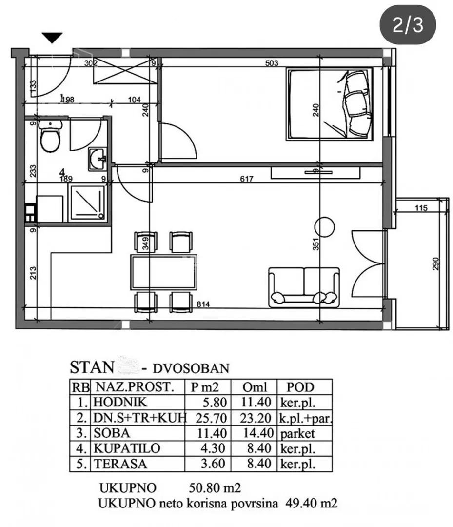
Dvosoban stan na prodaju, Centar, 91.800€, 51m²






91.800 €
1.800 € / m2
Za ovaj oglas se neko interesovao. Pozovi ranije kako ne bi propustio priliku.
- Etažno grejanje
- Prostorije: kupatilo, terasa
- Uknjiženo
- Oglas oglašava agencija pod reg. brojem 298
- 1 garažno mesto
- 1 lift
- 1 telefonska linija
Opis oglasa
Odlična cena u trenutnoj fazi gradnje 1.800 eura/m2+ 10% Pdv.
Mogućnost odloženog plaćanja uz cenu od 1.980 eura/m2 + Pdv.
Preporuka, kako za život u stanu, tako i kao investicija.
Uknjižen kao predbeležba u katastru.
Nalazi se na petom povučenom spratu.
Odličan raspored stana, sa odvojenom komfornom sobom.
Parket I klase, italijanska keramika, grejanje na gas, bešumni lift.
Veliki izbor slobodnih stanova.
Navedena cena je bez PDV-a. Kupac ima pravo na povraćaj PDV-a.
Mogućnost kupovine garažnog mesta po ceni od 9.500 eura sa Pdv-om.
Agencijska provizija za kupca 2%.
Broj agencije u Registru posrednika 298. Mapa je informativnog karaktera, ne prikazuje tačnu lokaciju nekretnine.
*Sačuvaj oglas uz belešku i primaj obaveštenja o njihovom pojeftinjenju ili pojavljivanju sličnih
Prikaz stana na mapi
Parkovi u blizini
- Park na Trgu kralja Petramanje od 1 min
- Narodna bašta Pančevo21 min
- Park Barutana24 min

Obeležja kulture u blizini
- Spomenik vojvodi Stevanu Šupljikcu7 min
- Zgrada Stare bolnice8 min
- Kompleks Svilara9 min

Škole/Fakulteti/Vrtići u blizini
- Osnovna škola (Osnovna škola Jovan Jovanović Zmaj)6 min
- Srednja škola (Privatna srednja stručna škola Vizija)3 min
- Vrtić (Predškolska ustanova Dečja radost Pančevo)8 min
- Fakultet (Stomatološki fakultet Pančevo)12 min

- Bolnica (Bolnica za očne bolesti Pančevo)6 min
- Klinika (Poliklinika MD)7 min
- Teretana (Fitnes klub Forma)4 min
- Prodavnica (Maxi Supermarket)2 min
- Restoran (Bistro Kokoschka)2 min
- Kafana (Stara Vajfertova pivara)5 min
- Taksi stajalište (Taxi stanica)5 min
- Autobuska stanica (Gradska uprava)2 min
- Banka (Eurobank Direktna)3 min
- Pošta (Pošta Pančevo 6)3 min
Kontakt oglašivača
Za ovaj oglas se neko interesovao. Pozovi ranije kako ne bi propustio priliku.
Krediti OTP banke
Saznaj više
Prikazana rata odnosi se na maksimalni period otplate. Kalkulator je informativnog karaktera.
* Nakon isteka 5 godina, prelazi se na varijabilnu kamatnu stopu


