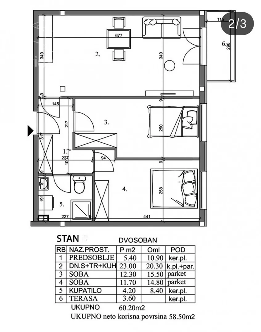
Dvosoban stan na prodaju, Centar, 108.000€, 60m²






108.000 €
1.800 € / m2
- Etažno grejanje
- Prostorije: kupatilo, terasa
- Uknjiženo
- Oglas oglašava agencija pod reg. brojem 298
- 1 garažno mesto
- 1 lift
- 1 telefonska linija
Opis oglasa
Stan u izgradnji, useljivost krajem godine. Odlična lokacija, nedaleko od samog centra.
Uknjižen kao predbeležba u katastru.
Parket prve klase, italijanska keramika, grejanje na gas, bešumni lift.
U zgradi ima još većih i manjih stambenih jedinica.
Navedena cena je bez PDV-a. Kupac ima pravo na povraćaj PDV-a.
Cena u trenutnoj fazi je 1.800 eura/m2+ 10% Pdv.
Cena za plaćanje u fazama (može biti mesečno) je 1.980 eura/m2 + Pdv.
Trenutna cena je znatno niža od cena novogradnje u centru grada.
Mogućnost kupovine garažnog mesta po ceni od 12.000 eura sa Pdv-om.
Agencijska provizija za kupca 2%.
Broj agencije u Registru posrednika 298. Mapa je informativnog karaktera, ne prikazuje tačnu lokaciju nekretnine.
*Sačuvaj oglas uz belešku i primaj obaveštenja o njihovom pojeftinjenju ili pojavljivanju sličnih
Prikaz stana na mapi
Parkovi u blizini
- Park na Trgu kralja Petramanje od 1 min
- Narodna bašta Pančevo21 min
- Park Barutana24 min

Obeležja kulture u blizini
- Spomenik vojvodi Stevanu Šupljikcu7 min
- Zgrada Stare bolnice8 min
- Kompleks Svilara9 min

Škole/Fakulteti/Vrtići u blizini
- Osnovna škola (Osnovna škola Jovan Jovanović Zmaj)6 min
- Srednja škola (Privatna srednja stručna škola Vizija)3 min
- Vrtić (Predškolska ustanova Dečja radost Pančevo)8 min
- Fakultet (Stomatološki fakultet Pančevo)12 min

- Bolnica (Bolnica za očne bolesti Pančevo)6 min
- Klinika (Poliklinika MD)7 min
- Teretana (Fitnes klub Forma)4 min
- Prodavnica (Maxi Supermarket)2 min
- Restoran (Bistro Kokoschka)2 min
- Kafana (Stara Vajfertova pivara)5 min
- Taksi stajalište (Taxi stanica)5 min
- Autobuska stanica (Gradska uprava)2 min
- Banka (Eurobank Direktna)3 min
- Pošta (Pošta Pančevo 6)3 min
Kontakt oglašivača
Krediti OTP banke
Saznaj više
Prikazana rata odnosi se na maksimalni period otplate. Kalkulator je informativnog karaktera.
* Nakon isteka 5 godina, prelazi se na varijabilnu kamatnu stopu


